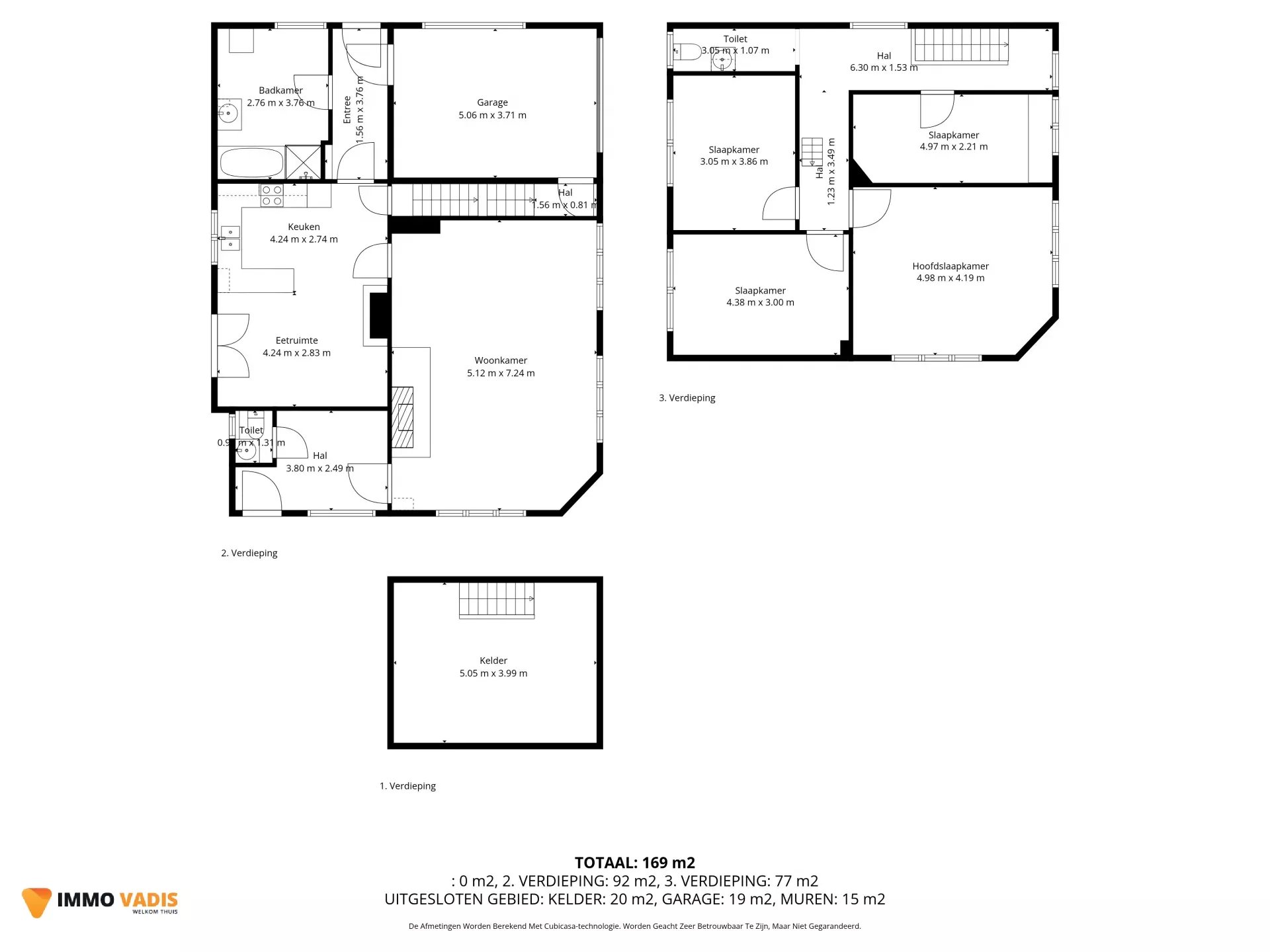
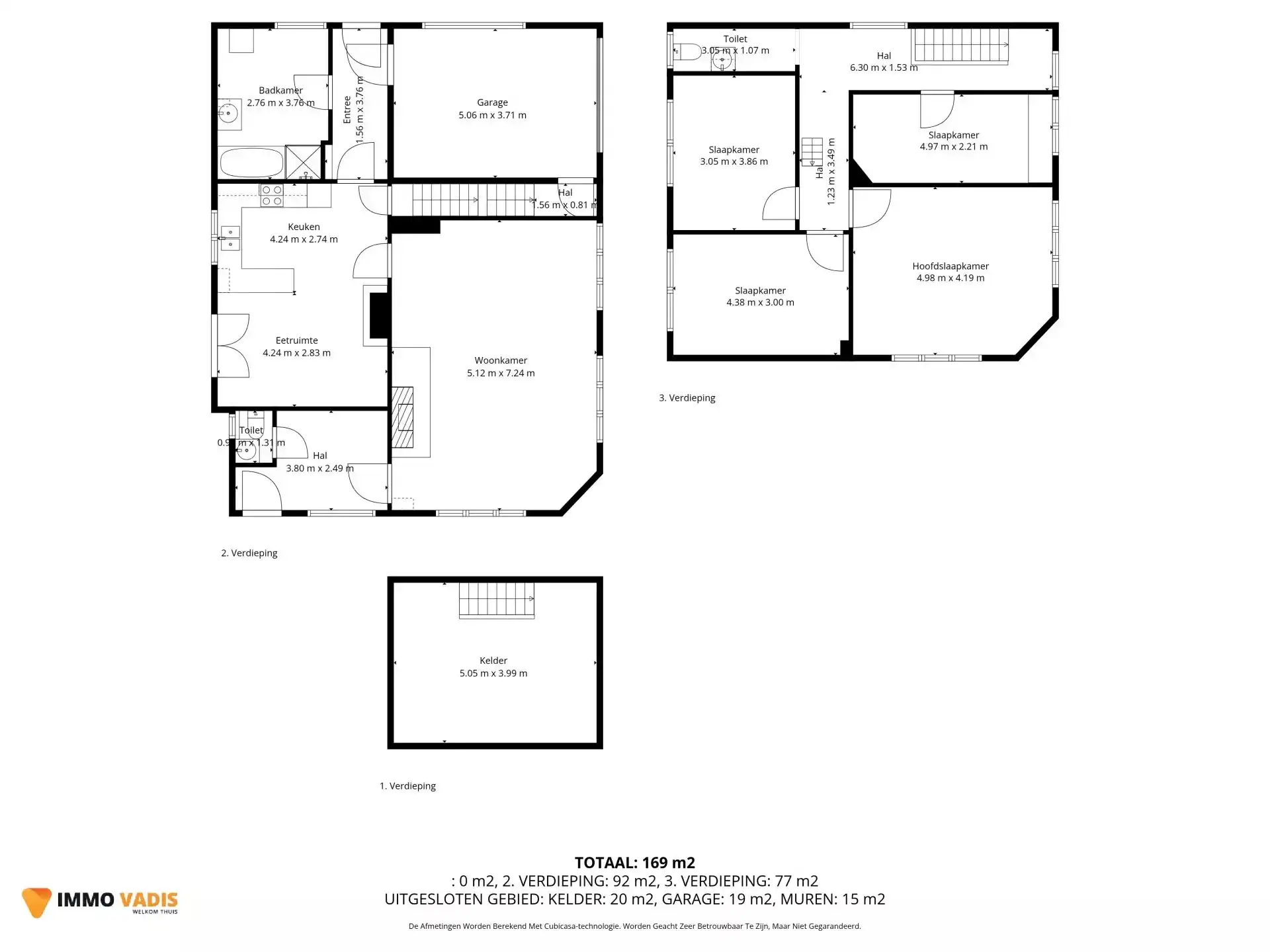
Vrijstaande woning met 4 slaapkamers
Een pand van Immovadis
Overzicht
- 210 m² bewoonbaar
- 585 m² grond
- 4 Slaapkamer(s)
- 1 Badkamer(s)
- 2 Toilet(ten)
- 2 Living(s)
- 1 Garage(s)
Beschrijving
Deze vrijstaande woning met 4 slaapkamers en inpandige garage op de verbindingsweg tussen Leuven en Aarschot staat te koop. Het pand is degelijk onderhouden, maar kan een opfrisbeurt gebruiken. Daarnaast geldt er een renovatieverplichting waardoor je de kans geboden wordt ze volledig naar eigen smaak en hedendaags comfort in te richten.
Dit is een ideale opportuniteit voor wie op zoek is naar een ruime gezinswoning in de buurt van Leuven. Alle voorzieningen qua scholen, winkels, openbaar vervoer en ontspanning zijn in de omgeving aanwezig.
Dit is een ideale opportuniteit voor wie op zoek is naar een ruime gezinswoning in de buurt van Leuven. Alle voorzieningen qua scholen, winkels, openbaar vervoer en ontspanning zijn in de omgeving aanwezig.
Energie
![]() |
- EPC Certificaat: 20251015-0003707885-RES-1
- Energieverbruik: 731 kWh/m²/jaar
- Verwarming: Butaangas
- Beglazing: Standaard dubbel
Let op, de renovatieverplichting in Vlaanderen verplicht de koper om deze woning na aankoop te renoveren tot een betere energieprestatie. Lees er alles over in dit artikel
Extra budget nodig voor je renovatie?
De overheid helpt je dit pand energetisch te renoveren! Hieronder zie je het premiebedrag dat je mogelijks van de overheid krijgt.
Het huidige EPC-label is:

Op de kaart

Financieel
| Prijs | |
|---|---|
| Kadastraal inkomen (niet geïndexeerd) | € 803 |
Berekening kosten
Je aankoopkosten? Die heb je snel berekent via de knop hieronder.
Bijkomende info
Gebouw
| Bouwjaar | 1949 |
|---|---|
| Renovatie jaar | 1975 |
| Is beschermd | Ja |
| Bouwcertificaat | Nee |
| Bewoonbaar (m²) | 210 |
| Verdieping | 0 |
| Gevels | 4 |
| Zolder | 1 |
| Badkamers | 1 |
| Slaapkamers | 4 |
| Verdiepingen | 0 |
| Garages | 1 |
| Leefruimtes | 2 |
| Kantoorruimtes | 1 |
| Toiletten | 2 |
Ruimtes
| Slaapkamer | 32 m² |
|---|---|
| Leefruimte | 34 m² |
| Kamer 1 | 17 m² |
| Kelder | 8 m² |
| Kamer 2 | 9 m² |
| Kamer 3 | 7 m² |
| Kamer 4 | 1 m² |
| Kamer 5 | 3.5 m² |
| Zolder | 50 m² |
| Slaapkamer | 19 m² |
| Leefruimte | 20 m² |
Faciliteiten
| Materiaal ramenomlijstingen | Aluminium |
|---|---|
| Beglazing | Standaard dubbel |
| Luiken | Ja |
| Primaire verwarmingsbron | Condensatieketel |
| Brandstof primaire verwarming | Butaangas |
| Primaire verwarming | Radiatoren |
| Warmwaterbron | Waterboiler |
| Elektrisch keuringsattest | Nee |
| Septische tank | Nee |
| Beerput | Nee |
Perceel
| Overstromingsgevoelig | Geen |
|---|---|
| Voorkeurrecht | Nee |
| Totale oppervlakte (m²) | 585 |
| Bebouwde oppervlakte (m²) | 210 |
| Oriëntatie voorgevel | Zuid |
Vergunning
| Vergunning | Vergunning beschikbaar |
|---|---|
| Verkavelingsvergunning | Geen beschikbaar |
Uitrusting
| Investeringspand | Nee |
|---|---|
| Geschikt als kangoeroewoning | Nee |
| Geschikt voor rolstoelgebruikers | Nee |
| Parking | Nee |
| Garage | Ja |
| Thuiskantoor | Ja |
| Kelder | Nee |
| Zolder | Ja |
| Opslagruimte | Nee |
| Tuin | Nee |
| Terras | Nee |
| Lift | Nee |
| Rioolaansluiting | Ja |
| Gasaansluiting | Ja |
| Wateraansluiting | Ja |
| Elektriciteitsaansluiting | Ja |
| TV aansluiting | Nee |
| Internetaansluiting | Ja |
| Zonnepanelen | Nee |
| Zonneboiler | Nee |
| Thuisbatterij | Nee |
| Alarm | Nee |
| Zwembad | Nee |
| Sauna | Nee |
| Jacuzzi | Nee |
| Videofoon | Nee |
| Domotica | Nee |
| Grondwaterput | Nee |
| Ventilatie | Ja |
Een pand van
Immovadis
Welkom Thuis
Geen alledaagse standaard makelaar!
ImmoVadis staat voor anders durven zijn, maar wel binnen de professionele kaders.
Wij pakken uw vastgoed professioneel, duidelijk (helder) en tijdgericht aan, waarbij u als klant ten allen tijde centraal staat en zich WELKOM THUIS voelt!
ImmoVadis gelooft in 'anders durven denken', samen met een realistische, no-nonsense aanpak. Daarnaast is vertrouwen, passie en een goede relatie met de klant van zeer groot belang.
Wij streven ernaar om onze klanten altijd tevreden te houden. ImmoVadis is dan ook een klantgericht kantoor met een hoogwaardig dienstverleningsniveau.
Team
Immovadis bestaat uit een team van medewerkers en partners, onder leiding van een vat vol ervaring op niveau van makelaardij, Guy Clerinx in samenwerking met een bouwkundig aannemer, Wim Lambrechts (ProMaCon BV).
Door deze samenwerking kunnen we op het vlak van bouwkundigheid een meerwaarde toevoegen aan het gebruikelijk takenpakket van een standaard makelaar.
Als klant krijgt u deze deskundige meerwaarde automatisch mee inbegrepen in onze dienstverlening.
86379453
Leer meer over vastgoed
Nieuw
24 November 2025
Uitgezocht voor jouw gemeente: Hoeveel stijgt de waarde van je woning door een renovatie?
22 October 2025
Hoeveel kan ik lenen om een huis te kopen?
11 June 2025
Huis kopen met bouwovertreding? Dit moet je weten
11 May 2025



