Charmante te renoveren woning op terrein van 500 m²
€ 279.000
Een pand van IMMO ID
Overzicht
- 185 m² bewoonbaar
- 500 m² grond
- 3 Slaapkamer(s)
- 1 Badkamer(s)
- 1 Tuin
- 1 Garage(s)
Beschrijving
Charmante Te Renoveren Woning op 500 m²
Ben je op zoek naar een rustige, vrijstaande woning die je volledig naar eigen smaak kunt renoveren? Deze woning biedt een perfecte gelegenheid om met enige creativiteit een zeer aangename gezinswoning te creëren.
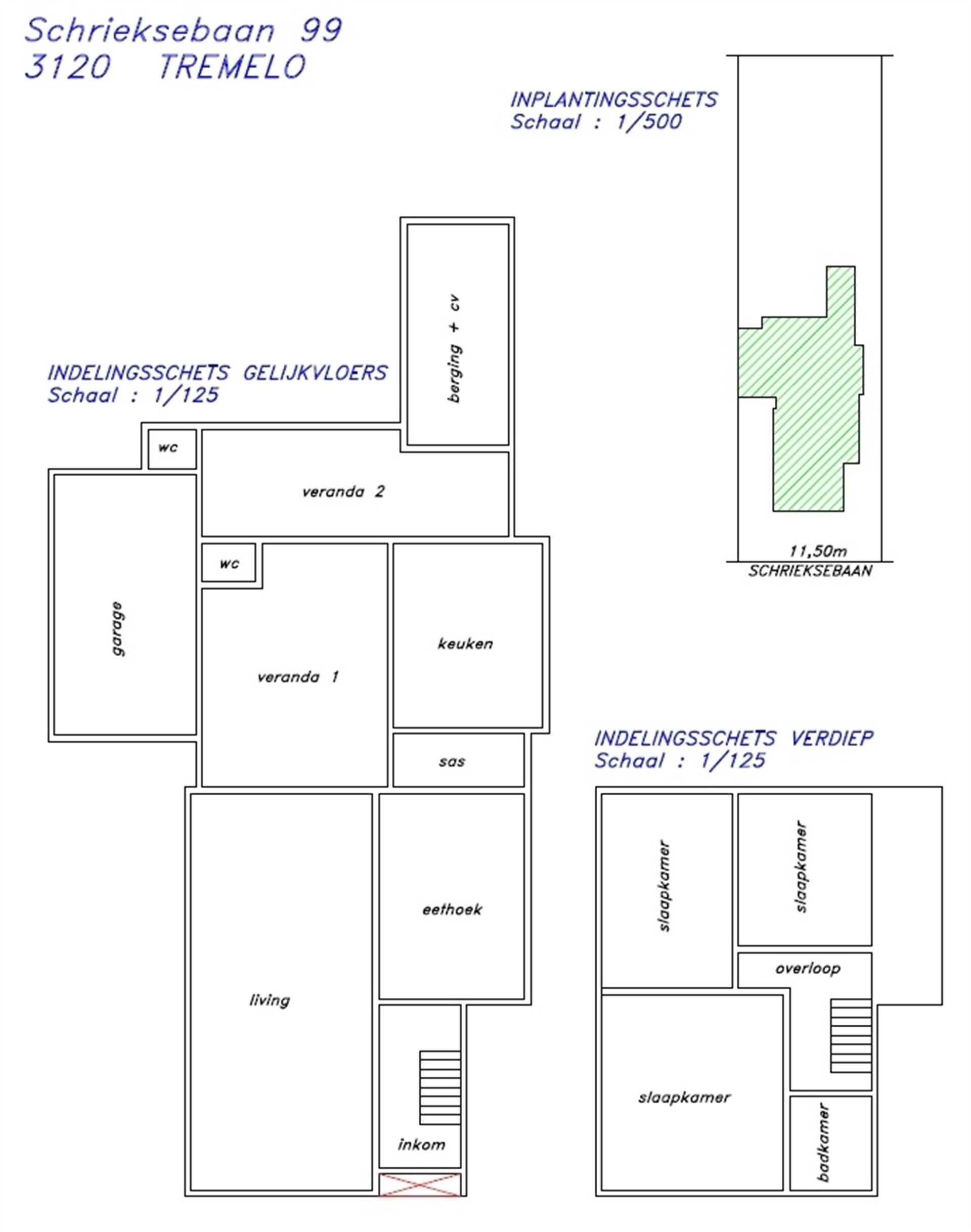
- Gelijkvloers:
- Inkomhal: Via de inkomhal krijg je toegang tot de ruime leefruimte.
- Leefruimte: Ruim en licht, ideaal voor gezellige familieavonden.
- Authentieke Keuken: Met toegang tot binnenpatio en veranda, die een prachtig uitzicht bieden op de groene tuin.
- Polyvalente Ruimte: Geschikt voor verschillende doeleinden zoals een thuiskantoor, extra slaapkamer of praktijkruimte.
- Apart Toilet en Veranda: Aansluitend op de tuin, perfect voor ontspanning in een groene omgeving.
- Eerste Verdieping:
- 3 Slaapkamers: 2 ruime kamers met veel potentieel en 1 kleinere kamer
- Badkamer: Voorzien van een bad en lavabo.
- Zolderruimte: Extra opbergruimte bereikbaar via een uitschuifbare trap.
- Droge Kelder: Voor nog meer opslagmogelijkheden.
Tuin: Geniet van de rust en het groen in de ruime tuin.
Garage en Oprit: Een aparte garage voor één auto en een ruime oprit ervoor.
Ligging: Op wandelafstand van het centrum, met zijn leuke winkels, terrasjes en heerlijk eten. Een ideale locatie voor gezinnen die willen genieten van zowel rust als de nabijheid van stadsvoorzieningen.
Neem gerust contact met ons op voor een bezichtiging ter plaatse. Samen kunnen we de vele mogelijkheden van deze woning bekijken en bespreken.
Maak van deze woning jouw droomhuis. Wij staan klaar om je te helpen bij elke stap van het renovatieproces.
Energie
![]() |
- EPC Certificaat: 3263492
- Energieverbruik: 499 kWh/m²/jaar
- E-peil: E0
- Beglazing: Standaard dubbel
Extra budget nodig voor je renovatie?

Op de kaart

Financieel
Prijs | |
---|---|
Kadastraal inkomen (niet geïndexeerd) | € 903 |
Kadastraal inkomen (geïndexeerd) | € 0 |
Berekening kosten
Je aankoopkosten? Die heb je snel berekent via de knop hieronder.
Bijkomende info
Gebouw
Bouwjaar | 1956 |
---|---|
Staat | Op te frissen |
Bouwcertificaat | Nee |
Bewoonbaar (m²) | 185 |
Verdieping | 0 |
Gevelbreedte | 6.4 |
Badkamers | 1 |
Slaapkamers | 3 |
Verdiepingen | 0 |
Garages | 1 |
Parkeerplaatsen | 2 |
Doucheruimtes | 0 |
Toiletten | 0 |
Faciliteiten
Keuken uitrusting | Standaard |
---|---|
Materiaal ramenomlijstingen | Hout |
Beglazing | Standaard dubbel |
Elektrisch keuringsattest | Nee |
Perceel
Breedte (m) | 11 |
---|---|
Overstromingsgevoelig | Geen |
P-score | A |
G-score | A |
Voorkeurrecht | Nee |
Totale oppervlakte (m²) | 500 |
Bebouwde oppervlakte (m²) | 0 |
Tuin oppervlakte (m²) | 260 |
Oppervlakte terras (m²) | 20 |
Vergunning
Vergunning | Vergunning beschikbaar |
---|---|
Verkavelingsvergunning | Geen beschikbaar |
Uitrusting
Investeringspand | Nee |
---|---|
Geschikt voor praktijk | Nee |
Parking | Ja |
Garage | Ja |
Thuiskantoor | Nee |
Kelder | Ja |
Zolder | Ja |
Tuin | Ja |
Terras | Ja |
Lift | Nee |
Rioolaansluiting | Nee |
Gasaansluiting | Nee |
Wateraansluiting | Nee |
Elektriciteitsaansluiting | Nee |
TV aansluiting | Nee |
Internetaansluiting | Nee |
Telefoonaansluiting | Nee |