Laagbouwvilla met registratierechten
€ 845.000
Een pand van IMMO ID
Overzicht
- 224 m² bewoonbaar
- 1051 m² grond
- 4 Slaapkamer(s)
- 1 Badkamer(s)
- 3 Toilet(ten)
- 1 Tuin
- 1 Garage(s)
Beschrijving
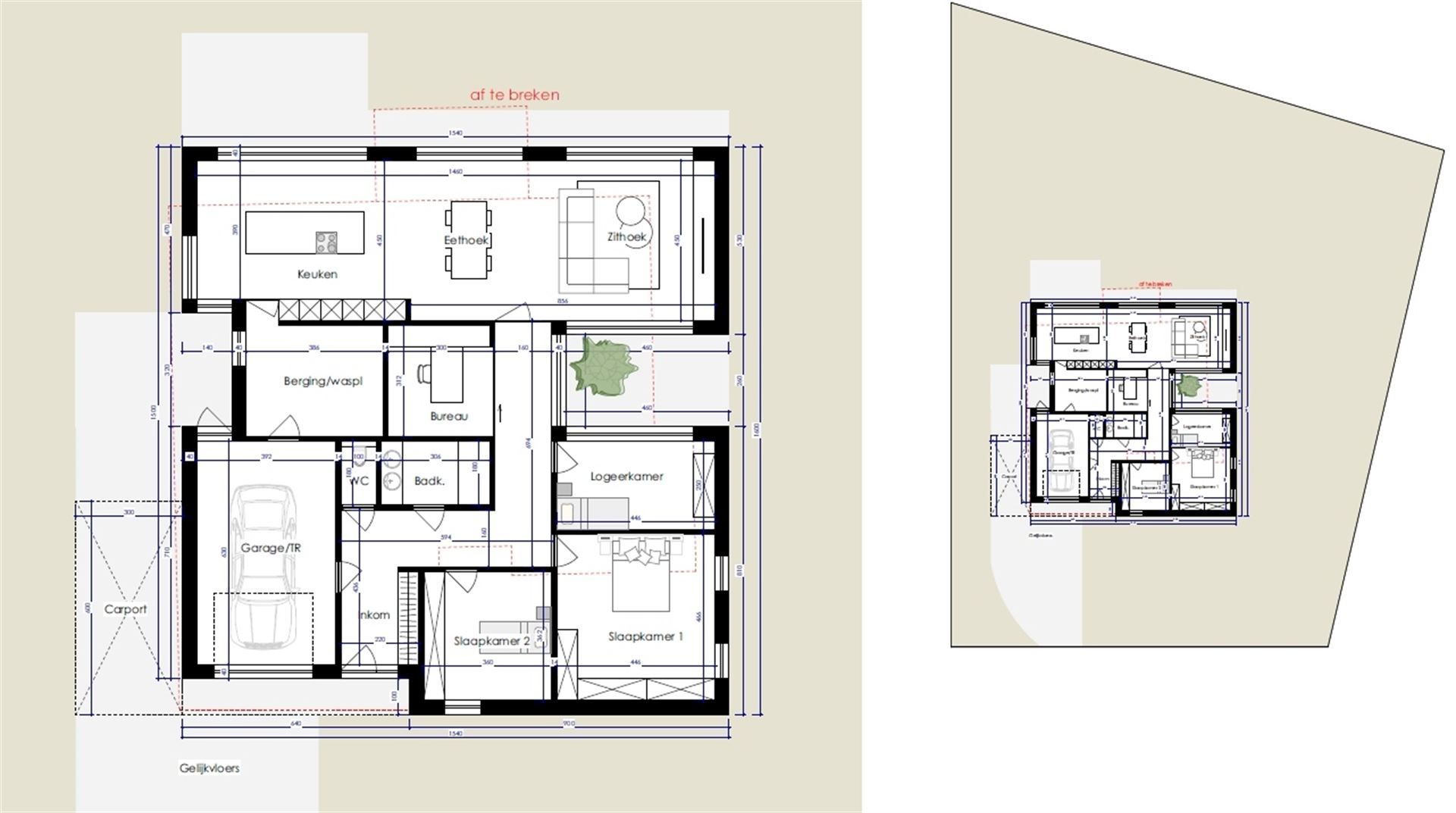
In een rustige en residentiële straat bevindt zich deze prachtige nieuwbouwvilla op een royaal perceel van 1051 m². De villa combineert doordachte architectuur met hedendaags wooncomfort en biedt een bewoonbare oppervlakte van 224 m², volledig op het gelijkvloers.
Bij het betreden van de woning ervaart u meteen de openheid en de overvloedige lichtinval dankzij het uitgekiende ontwerp, met als absolute eyecatcher de centrale patio. Deze groene oase zorgt niet alleen voor natuurlijke lichtinval, maar biedt ook zicht op het groen vanuit de leefruimte, het bureau en een slaapkamer/hobbyruimte, wat zorgt voor een unieke verbinding tussen binnen en buiten.
De ruime leefruimte is volledig opengewerkt en omvat een stijlvolle zitruimte, een gezellige eetplaats en een hoogwaardige, volledig geïnstalleerde keuken met zicht op de tuin. Aansluitend bevindt zich een praktische bureauruimte, die eveneens perfect dienst kan doen als speelhoek.
De woning is ingericht met 3 volwaardige slaapkamers, een inkomhal met gastentoilet en een moderne badkamer uitgerust met een ruime inloopdouche en een dubbel lavabomeubel.
Functioneel gemak is ook gegarandeerd dankzij de inpandige garage met automatische poort en een ruime berging met doorgang naar de keuken – ideaal voor dagelijkse boodschappen en extra opbergruimte en wasplaats. Buiten is er een extra carport voorzien.
De tuin biedt volledige privacy en vormt een idyllisch verlengstuk van de woning, perfect om te genieten van rust en natuur.
Deze villa is ideaal gelegen, op korte afstand van het centrum van Keerbergen en Tremelo, met vlotte bereikbaarheid naar invalswegen, scholen en winkels.
Een unieke kans om te wonen in een moderne, lichtrijke villa met alle comfort op het gelijkvloers, omgeven door groen en toch vlak bij alles. Verkoop onder registratierechten – geen btw van toepassing.
|
Energie
- EPC Certificaat: 2652773-RES-1
- E-peil: E20
- Beglazing: Onbekend
Op de kaart

Financieel
| Prijs | |
|---|---|
| Kadastraal inkomen (niet geïndexeerd) | € 0 |
| Kadastraal inkomen (geïndexeerd) | € 0 |
Berekening kosten
Je aankoopkosten? Die heb je snel berekent via de knop hieronder.
Bijkomende info
Gebouw
| Bouwjaar | 2026 |
|---|---|
| Staat | Nieuw |
| Bouwcertificaat | Nee |
| Bewoonbaar (m²) | 224 |
| Verdieping | 0 |
| Badkamers | 1 |
| Slaapkamers | 4 |
| Verdiepingen | 0 |
| Garages | 1 |
| Parkeerplaatsen | 0 |
| Doucheruimtes | 0 |
| Toiletten | 3 |
Faciliteiten
| Keuken uitrusting | Luxueus uitgerust |
|---|---|
| Elektrisch keuringsattest | Ja |
Perceel
| Diepte (m) | 44 |
|---|---|
| Breedte (m) | 28 |
| Overstromingsgevoelig | Geen |
| Voorkeurrecht | Nee |
| Totale oppervlakte (m²) | 1051 |
| Bebouwde oppervlakte (m²) | 0 |
| Tuin oppervlakte (m²) | 1311 |
| Oppervlakte terras (m²) | 0 |
Vergunning
| Vergunning | Vergunning beschikbaar |
|---|
Uitrusting
| Investeringspand | Nee |
|---|---|
| Geschikt voor praktijk | Nee |
| Parking | Nee |
| Garage | Ja |
| Thuiskantoor | Nee |
| Kelder | Nee |
| Zolder | Nee |
| Tuin | Ja |
| Terras | Nee |
| Lift | Nee |
| Rioolaansluiting | Nee |
| Gasaansluiting | Nee |
| Wateraansluiting | Nee |
| Elektriciteitsaansluiting | Nee |
| TV aansluiting | Nee |
| Internetaansluiting | Nee |
| Telefoonaansluiting | Nee |