In optie
Nieuw te bouwen woning in Haacht!
€ 512.250
Een pand van Century 21 Future Home
Overzicht
- 200 m² bewoonbaar
- 1889 m² grond
- 3 Slaapkamer(s)
- 2 Badkamer(s)
- 1 Tuin
Beschrijving
Nieuw te bouwen woning voor open bebouwing gelegen in Haacht!
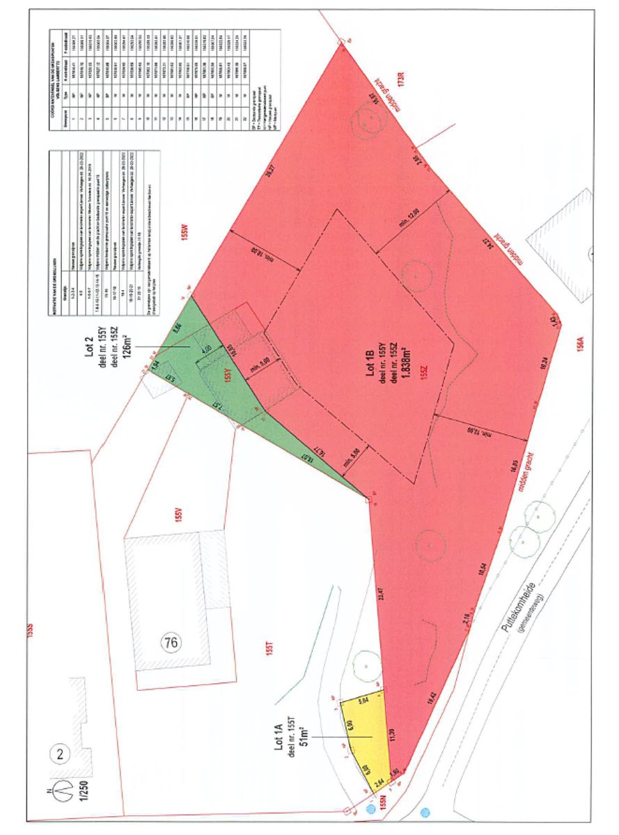
De bouwgrond is 18 are 89 ca groot en heeft een maximum bouwdiepte van 15 m.
De projectvoorstelling heeft hier een grootte van 9,5 m op 10,5 m maar kan ook groter.
Deze woning nu heeft 1 slaapkamer op het gelijkvloers en 2 slaapkamers op het verdiep telkens met een uitgeruste badkamer.
Er zijn 2 manieren van afwerking van de woning mogelijk:
CASCO totaalprijs € 512.250
€174.850 + €337.400 excl. BTW & registratierechten
Sleutel op de deur totaalprijs € 627.700
€290.300 + €337.400 excl. BTW & registratierechten
Tevens hebt u een keuze uit een reeks van kwalitatieve materialen, zoals een 25 tal- gevelstenen en vloeren ( 60x 60 ) , driedubbelglas met 20 kleuren voor de buitenkant van de raamprofielen, 10 zonnepanelen , warmtepomp Daikin met vloerverwarming , badkamer met bad en douche , dubbele lavabo met kolomkast en spiegel , 2 hangtoiletten waarvan 1 met een handwasser en douchecel , keuken met toestellen van Whirlpool of Siemens ter waarde van 12.000 €...............dit alles met een sterke isolatie van 12cm in de muren , 12 cm vloerisolatie en 22cm isolatie in het dak.
Wil jij hier je nieuwe thuis bouwen? Mail dan naar info@future-home.be of bel ons op 016 90 10 21.
Woongebied en agrarisch gebied, Geen voorkooprecht, Geen dagvaarding, Verkavelingsvergunning,
De bouwgrond is 18 are 89 ca groot en heeft een maximum bouwdiepte van 15 m.
De projectvoorstelling heeft hier een grootte van 9,5 m op 10,5 m maar kan ook groter.
Deze woning nu heeft 1 slaapkamer op het gelijkvloers en 2 slaapkamers op het verdiep telkens met een uitgeruste badkamer.
Er zijn 2 manieren van afwerking van de woning mogelijk:
CASCO totaalprijs € 512.250
€174.850 + €337.400 excl. BTW & registratierechten
Sleutel op de deur totaalprijs € 627.700
€290.300 + €337.400 excl. BTW & registratierechten
Tevens hebt u een keuze uit een reeks van kwalitatieve materialen, zoals een 25 tal- gevelstenen en vloeren ( 60x 60 ) , driedubbelglas met 20 kleuren voor de buitenkant van de raamprofielen, 10 zonnepanelen , warmtepomp Daikin met vloerverwarming , badkamer met bad en douche , dubbele lavabo met kolomkast en spiegel , 2 hangtoiletten waarvan 1 met een handwasser en douchecel , keuken met toestellen van Whirlpool of Siemens ter waarde van 12.000 €...............dit alles met een sterke isolatie van 12cm in de muren , 12 cm vloerisolatie en 22cm isolatie in het dak.
Wil jij hier je nieuwe thuis bouwen? Mail dan naar info@future-home.be of bel ons op 016 90 10 21.
Woongebied en agrarisch gebied, Geen voorkooprecht, Geen dagvaarding, Verkavelingsvergunning,
Nieuw te bouwen woning voor open bebouwing gelegen in Haacht!
De bouwgrond is 18 are 89 ca groot en heeft een maximum bouwdiepte van 15 m.
De projectvoorstelling heeft hier een grootte van 9,5 m op 10,5 m maar kan ook groter.
Deze woning nu heeft 1 slaapkamer op het gelijkvloers en 2 slaapkamers op het verdiep telkens met een uitgeruste badkamer.
Er zijn 2 manieren van afwerking van de woning mogelijk:
CASCO totaalprijs € 512.250
€174.850 + €337.400 excl. BTW & registratierechten
Sleutel op de deur totaalprijs € 627.700
€290.300 + €337.400 excl. BTW & registratierechten
Tevens hebt u een keuze uit een reeks van kwalitatieve materialen, zoals een 25 tal- gevelstenen en vloeren ( 60x 60 ) , driedubbelglas met 20 kleuren voor de buitenkant van de raamprofielen, 10 zonnepanelen , warmtepomp Daikin met vloerverwarming , badkamer met bad en douche , dubbele lavabo met kolomkast en spiegel , 2 hangtoiletten waarvan 1 met een handwasser en douchecel , keuken met toestellen van Whirlpool of Siemens ter waarde van 12.000 €...............dit alles met een sterke isolatie van 12cm in de muren , 12 cm vloerisolatie en 22cm isolatie in het dak.
Wil jij hier je nieuwe thuis bouwen? Mail dan naar info@future-home.be of bel ons op 016 90 10 21.
Woongebied en agrarisch gebied, Geen voorkooprecht, Geen dagvaarding, Verkavelingsvergunning
De bouwgrond is 18 are 89 ca groot en heeft een maximum bouwdiepte van 15 m.
De projectvoorstelling heeft hier een grootte van 9,5 m op 10,5 m maar kan ook groter.
Deze woning nu heeft 1 slaapkamer op het gelijkvloers en 2 slaapkamers op het verdiep telkens met een uitgeruste badkamer.
Er zijn 2 manieren van afwerking van de woning mogelijk:
CASCO totaalprijs € 512.250
€174.850 + €337.400 excl. BTW & registratierechten
Sleutel op de deur totaalprijs € 627.700
€290.300 + €337.400 excl. BTW & registratierechten
Tevens hebt u een keuze uit een reeks van kwalitatieve materialen, zoals een 25 tal- gevelstenen en vloeren ( 60x 60 ) , driedubbelglas met 20 kleuren voor de buitenkant van de raamprofielen, 10 zonnepanelen , warmtepomp Daikin met vloerverwarming , badkamer met bad en douche , dubbele lavabo met kolomkast en spiegel , 2 hangtoiletten waarvan 1 met een handwasser en douchecel , keuken met toestellen van Whirlpool of Siemens ter waarde van 12.000 €...............dit alles met een sterke isolatie van 12cm in de muren , 12 cm vloerisolatie en 22cm isolatie in het dak.
Wil jij hier je nieuwe thuis bouwen? Mail dan naar info@future-home.be of bel ons op 016 90 10 21.
Woongebied en agrarisch gebied, Geen voorkooprecht, Geen dagvaarding, Verkavelingsvergunning
Energie
Op de kaart

Financieel
| Prijs |
|---|
Berekening kosten
Je aankoopkosten? Die heb je snel berekend via de knop hieronder.
Bijkomende info
Gebouw
| Staat | Nieuw |
|---|---|
| Bewoonbaar (m²) | 200 |
| Gevels | 4 |
| Badkamers | 2 |
| Slaapkamers | 3 |
| Garages | 0 |
| Parkeerplaatsen | 0 |
Faciliteiten
| Type vloer |
|---|
Perceel
| Overstromingsgevoelig | Mogelijk overstromingsgevoelig |
|---|---|
| Voorkeurrecht | Ja |
| Totale oppervlakte (m²) | 1889 |
| Tuin oppervlakte (m²) | 0 |
Vergunning
| Vergunning | Geen beschikbaar |
|---|---|
| Verkavelingsvergunning | Vergunning beschikbaar |
| Bouwovertreding | Geen |
| Bouwovertreding dagvaardiging | Geen |
Uitrusting
| Parking | Ja |
|---|---|
| Garage | Nee |
| Tuin | Ja |
| Terras | Ja |
Een pand van
Century 21 Future Home
Uw vastgoedmakelaar in Tremelo en omstreken!
Maak kennis met Century 21 Future Home, deel van het grootste netwerk van vastgoedkantoren in België, gespecialiseerd in de verkoop en verhuur van huizen, appartementen en gronden. U kan ook bij Century 21 Future Home terecht voor de verkoop van nieuwbouwprojecten en projectgronden.
Wij willen met onze klanten een lange termijn relatie opbouwen, gebaseerd op vertrouwen, eerlijkheid en professionaliteit.
Hebt u vragen over de verkoop of verhuur van uw eigendom of het ontwikkelen van uw nieuwbouwproject? Dan staan wij voor u klaar met het juiste advies.
25/05404/910
Leer meer over vastgoed
Nieuw
01 March 2026
Wanneer heb ik een bouwvergunning of omgevingsvergunning nodig?
17 February 2026
Hoe breng ik een bod uit op een woning?
24 November 2025
Uitgezocht voor jouw gemeente: Hoeveel stijgt de waarde van je woning door een renovatie?
22 October 2025