Achtergelegen bouwgrond (OB) met oprijlaan op 12are
€ 208.000
Rijmenamsesteenweg 49A - 3150 Haacht
Een pand van Altro Vastgoed Mechelen
Favoriet
Jouw zoektocht
Jouw scoretabel voor dit pand
Aan het laden...
Jouw geplande bezichtigingen
Aan het laden...
Overzicht
- 1200 m² grond
Beschrijving
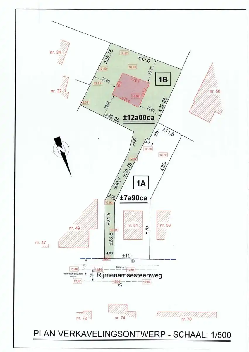
Deze bouwgrond voor open bebouwing ligt op slechts een steenworp van het centrum van Haacht (achterliggende bouwgrond aan de Rijmenamsesteenweg), maar biedt toch rust dankzij de ligging in een binnengebied. De privatieve oprit van ongeveer 53 m geeft toegang tot een perceel waar u de woning van uw dromen kunt realiseren. U kunt een woning bouwen met een maximaal vloeroppervlak van ongeveer 130 m² en een kroonlijsthoogte van maximaal 3,50 m. Daarnaast is er de mogelijkheid om een carport van maximaal 21 m² en een tuinberging van maximaal 12 m² te bouwen.
Komt in aanmerking voor afbraak en heropbouw - bouwen aan 6% BTW !!!!
Voor meer informatie over de voorschriften kunt u de details downloaden via www.altro-vastgoed.be. Heeft u altijd al een eigen woning gewild en wilt u snel starten? Neem dan contact op met uw makelaar via nico@altro-vastgoed.be.
Komt in aanmerking voor afbraak en heropbouw - bouwen aan 6% BTW !!!!
Voor meer informatie over de voorschriften kunt u de details downloaden via www.altro-vastgoed.be. Heeft u altijd al een eigen woning gewild en wilt u snel starten? Neem dan contact op met uw makelaar via nico@altro-vastgoed.be.
Deze bouwgrond voor open bebouwing ligt op slechts een steenworp van het centrum van Haacht (achterliggende bouwgrond aan de Rijmenamsesteenweg), maar biedt toch rust dankzij de ligging in een binnengebied. De privatieve oprit van ongeveer 53 m geeft toegang tot een perceel waar u de woning van uw dromen kunt realiseren. U kunt een woning bouwen met een maximaal vloeroppervlak van ongeveer 130 m² en een kroonlijsthoogte van maximaal 3,50 m. Daarnaast is er de mogelijkheid om een carport van maximaal 21 m² en een tuinberging van maximaal 12 m² te bouwen.
Komt in aanmerking voor afbraak en heropbouw - bouwen aan 6% BTW !!!!
Voor meer informatie over de voorschriften kunt u de details downloaden via www.altro-vastgoed.be.
U hebt een baksteen in de maag en wil spoedig starten aan uw droomwoning ? Dan kan dit de uwe worden, neem contact op met uw makelaar - nico@altro-vastgoed.be
Komt in aanmerking voor afbraak en heropbouw - bouwen aan 6% BTW !!!!
Voor meer informatie over de voorschriften kunt u de details downloaden via www.altro-vastgoed.be.
U hebt een baksteen in de maag en wil spoedig starten aan uw droomwoning ? Dan kan dit de uwe worden, neem contact op met uw makelaar - nico@altro-vastgoed.be
Energie
- Beglazing: Onbekend
Downloads
Financieel
| Prijs |
|---|
Berekening kosten
Je aankoopkosten? Die heb je snel berekend via de knop hieronder.
Bijkomende info
Gebouw
| Is beschermd | Nee |
|---|
Perceel
| Diepte (m) | 28 |
|---|---|
| Breedte (m) | 32 |
| Overstromingsgevoelig | Geen |
| P-score | A |
| Voorkeurrecht | Nee |
| Totale oppervlakte (m²) | 1200 |
Vergunning
| Vergunning | Geen beschikbaar |
|---|
Uitrusting
| Rioolaansluiting | Nee |
|---|---|
| Gasaansluiting | Nee |
| Wateraansluiting | Nee |
| Elektriciteitsaansluiting | Nee |
Een pand van
Altro Vastgoed Mechelen
Wij verkopen uw vastgoed, anders én beter!
Bij Altro Vastgoed vinden we een persoonlijke aanpak erg belangrijk, hierbij stellen we de klant steeds centraal en staan we hem/haar bij in het complexe proces van verkopen, aankopen, verhuren en huren van vastgoed. We beschikken over een kwalitatief kantorennetwerk in Vlaanderen en Brussel met een sterke, lokale verankering.
4203
Leer meer over vastgoed
23 March 2026
Op Spotto zoeken als een pro: 10 slimme tips
21 March 2026
Hoeveel kan ik lenen om een huis te kopen?
01 March 2026
Wanneer heb ik een bouwvergunning of omgevingsvergunning nodig?
17 February 2026