€ 275.000
Een pand van Dekrem Vastgoed & Landmeten
Favoriet
Jouw zoektocht
Jouw scoretabel voor dit pand
Aan het laden...
Jouw geplande bezichtigingen
Aan het laden...
Overzicht
- 1064 m² grond
- 1 Tuin
Beschrijving
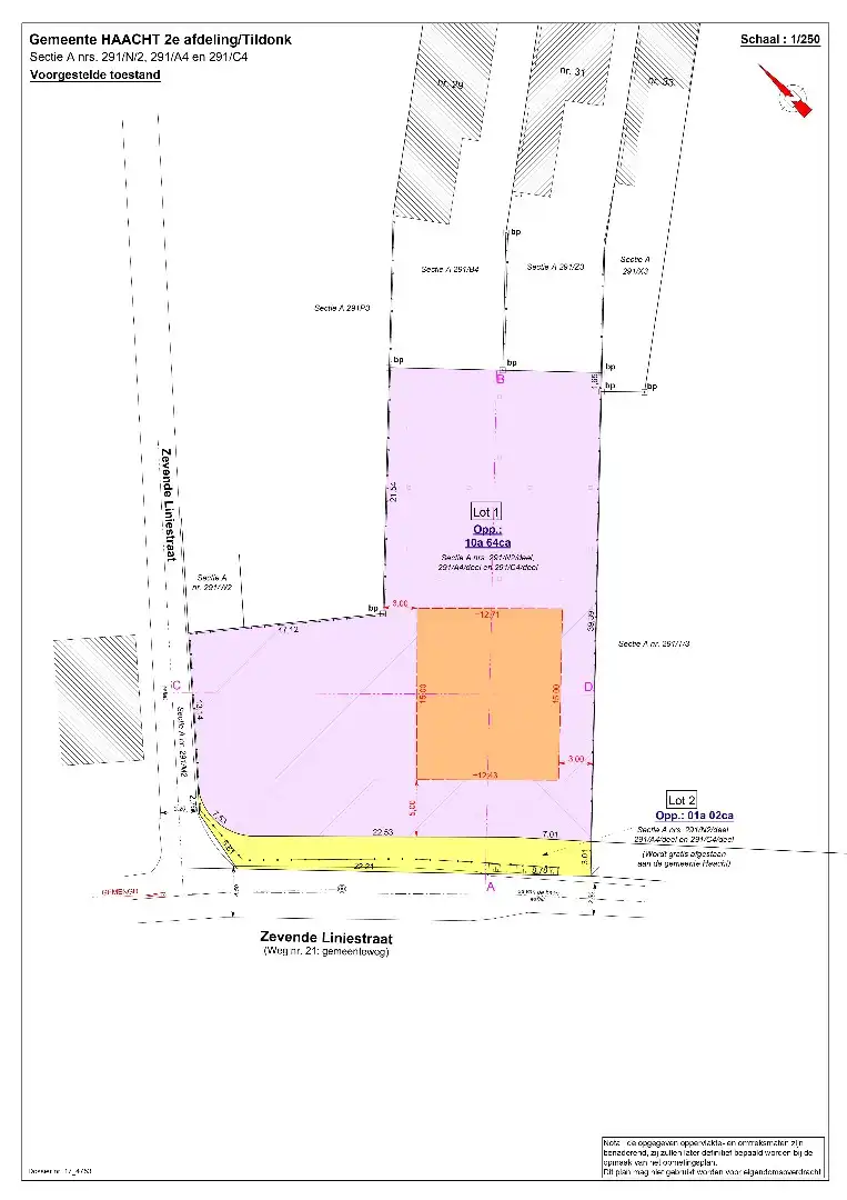
Rustig gelegen perceel bouwgrond voor open bebouwing met een oppervlakte van ± 10a 64ca. Bouwbreedte: ± 12,43m. Enige lot uit een goedgekeurde verkaveling (OMV_2025001264). Oriëntatie achtertuin: noordoosten. Oriëntatie zijtuin: noordwesten. Gvg, Wg, Gmo, Vkr, Vv. P-score: A / G-score: A.
STEDENBOUWKUNDIGE VOORSCHRIFTEN :
Zie downloads.
DIVERSEN :
De kosten van de opmeting bedragen € 850 + 21% BTW en zijn ten laste van de koper welke ook de kosten van de verkavelingsakte zal dragen.
STEDENBOUWKUNDIG :
Stedenbouwkundige vergunning : nee
Stedenbouwkundige bestemming : woongebied
Geen rechterlijke herstelmaatregel of bestuurlijke maatregel opgelegd.
Voorkooprecht : nee
Verkavelingsvergunning : ja (OMV_2025001264)
P-score: A / G-score: A
STEDENBOUWKUNDIGE VOORSCHRIFTEN :
Zie downloads.
DIVERSEN :
De kosten van de opmeting bedragen € 850 + 21% BTW en zijn ten laste van de koper welke ook de kosten van de verkavelingsakte zal dragen.
STEDENBOUWKUNDIG :
Stedenbouwkundige vergunning : nee
Stedenbouwkundige bestemming : woongebied
Geen rechterlijke herstelmaatregel of bestuurlijke maatregel opgelegd.
Voorkooprecht : nee
Verkavelingsvergunning : ja (OMV_2025001264)
P-score: A / G-score: A
Energie
- Verwarming: Geen
- Beglazing: Onbekend
Op de kaart

Downloads
- Bodemattest 291C4.pdf (PDF)
- Bodemattest 291A4.pdf (PDF)
- Bodemattest 291N.pdf (PDF)
- Vastgoedinformatie 291C4.pdf (PDF)
- Vastgoedinformatie 291A4.pdf (PDF)
- Stedenbouwkundige voorschriften.pdf (PDF)
- Overstromingsrapport 291N2.pdf (PDF)
- Overstromingsrapport 291C4.pdf (PDF)
- Overstromingsrapport 291A4.pdf (PDF)
- ontwerpplan.pdf (PDF)
- kadaster.pdf (PDF)
- gewestplan.jpg (JPG)
- Vastgoedinformatie 291N2.pdf (PDF)
Financieel
| Prijs | |
|---|---|
| Kadastraal inkomen (niet geïndexeerd) | € 0 |
| Kadastraal inkomen (geïndexeerd) | € 0 |
Berekening kosten
Je aankoopkosten? Die heb je snel berekend via de knop hieronder.
Bijkomende info
Gebouw
| Is beschermd | Nee |
|---|
Perceel
| Overstromingsgevoelig | Geen |
|---|---|
| P-score | A |
| Voorkeurrecht | Nee |
| Totale oppervlakte (m²) | 1064 |
| Oriëntatie tuin | Noordoost |
Vergunning
| Vergunning | Geen beschikbaar |
|---|---|
| Verkavelingsvergunning | Vergunning beschikbaar |
| Bouwovertreding dagvaardiging | Geen |
| Type gebied | Stedelijk |
Uitrusting
| Meerdere eigenaars | Nee |
|---|---|
| Rioolaansluiting | Nee |
| Gasaansluiting | Nee |
| Wateraansluiting | Nee |
| Elektriciteitsaansluiting | Nee |
| TV aansluiting | Nee |
| Internetaansluiting | Nee |
Een pand van
Dekrem Vastgoed & Landmeten
Dekrem Vastgoed & Landmeten
Sinds 1977 staat Wilfried Dekrem, medebestuurder, beëdigd landmeter-expert en erkend vastgoedmakelaar met zijn team voor je klaar.
Talrijke referenties vanuit de ganse vastgoedsector duiden op een professioneel, welbekend en betrouwbaar kantoor. In het residentiële segment hebben wij naast woningen ook een ruim aanbod aan bouwgronden in onze portefeuille.
De professionele aanpak, gebaseerd op een grondige kennis op juridisch, stedenbouwkundig en bouwtechnisch vlak, wordt al jarenlang door ons cliënteel gewaardeerd. Om jouw vragen zo snel en efficiënt mogelijk te beantwoorden zijn we 6 op 7 dagen bereikbaar!
6544
Leer meer over vastgoed
23 March 2026
Op Spotto zoeken als een pro: 10 slimme tips
21 March 2026
Hoeveel kan ik lenen om een huis te kopen?
01 March 2026
Wanneer heb ik een bouwvergunning of omgevingsvergunning nodig?
17 February 2026