€ 250.000
Een pand van Dekrem Vastgoed & Landmeten
Favoriet
Jouw zoektocht
Jouw scoretabel voor dit pand
Aan het laden...
Jouw geplande bezichtigingen
Aan het laden...
Overzicht
- 548 m² grond
- 1 Tuin
Overstromingsgevaar perceel
Beschrijving
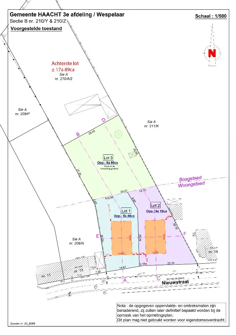
Perceel bouwgrond voor open bebouwing met een oppervlakte van ± 5a 48ca. Perceelbreedte: 14,91m. Bouwbreedte: ± 9m. Lot 1 uit een goedgekeurde verkaveling (OMV_2024066651). Oriëntatie: noord. Gvg, Wg, Gmo, Vkr, Vv. P-score: D / G-score: C. Achterliggende percelen van ± 26a 75ca kunnen eventueel bijgekocht worden. VP: € 20.000. (Gvg, Bg, Gmo, Vkr, Gvv - P-score: D / G-score: B).
STEDENBOUWKUNDIGE VOORSCHRIFTEN :
Zie downloads.
DIVERSEN :
Gas in de straat.
De kosten van de opmeting bedragen € 750 + 21% BTW en zijn ten laste van de koper (bij aankoop achtergrond bijkomend € 800 + 21% BTW) , welke ook zijn aandeel in de kosten van de verkavelingsakte zal dragen.
STEDENBOUWKUNDIG :
Stedenbouwkundige vergunning : nee
Stedenbouwkundige bestemming : woongebied
Geen rechterlijke herstelmaatregel of bestuurlijke maatregel opgelegd.
Voorkooprecht : ja
Verkavelingsvergunning : ja (OMV_2024066651)
P-score: D / G-score: C
STEDENBOUWKUNDIGE VOORSCHRIFTEN :
Zie downloads.
DIVERSEN :
Gas in de straat.
De kosten van de opmeting bedragen € 750 + 21% BTW en zijn ten laste van de koper (bij aankoop achtergrond bijkomend € 800 + 21% BTW) , welke ook zijn aandeel in de kosten van de verkavelingsakte zal dragen.
STEDENBOUWKUNDIG :
Stedenbouwkundige vergunning : nee
Stedenbouwkundige bestemming : woongebied
Geen rechterlijke herstelmaatregel of bestuurlijke maatregel opgelegd.
Voorkooprecht : ja
Verkavelingsvergunning : ja (OMV_2024066651)
P-score: D / G-score: C
Energie
- Verwarming: Geen
- Beglazing: Onbekend
Op de kaart

Downloads
- Overstromingsrapport 210Z.pdf (PDF)
- Gewestplan.jpg (JPG)
- kadastraal plan.pdf (PDF)
- ontwerpplan.jpg (JPG)
- Overstromingsrapport 210A2.pdf (PDF)
- Overstromingsrapport 210Y.pdf (PDF)
- Stedenbouwkundige voorschriften.pdf (PDF)
- Bodemattest 291A4.pdf (PDF)
- Bodemattest 291C4.pdf (PDF)
- Bodemattest 291N2.pdf (PDF)
- Vastgoedinformatie 210Z.pdf (PDF)
- Vastgoedinformatie 210A2.pdf (PDF)
- Vastgoedinformatie 210Y.pdf (PDF)
Financieel
| Prijs | |
|---|---|
| Kadastraal inkomen (niet geïndexeerd) | € 0 |
| Kadastraal inkomen (geïndexeerd) | € 0 |
Berekening kosten
Je aankoopkosten? Die heb je snel berekend via de knop hieronder.
Bijkomende info
Gebouw
| Is beschermd | Nee |
|---|
Perceel
| Overstromingsgevoelig | Geen |
|---|---|
| P-score | D |
| Voorkeurrecht | Ja |
| Totale oppervlakte (m²) | 548 |
| Oriëntatie tuin | Noord |
Vergunning
| Vergunning | Geen beschikbaar |
|---|---|
| Verkavelingsvergunning | Vergunning beschikbaar |
| Bouwovertreding dagvaardiging | Geen |
| Type gebied | Stedelijk |
Uitrusting
| Meerdere eigenaars | Nee |
|---|---|
| Rioolaansluiting | Ja |
| Gasaansluiting | Ja |
| Wateraansluiting | Ja |
| Elektriciteitsaansluiting | Ja |
| TV aansluiting | Nee |
| Internetaansluiting | Nee |
Een pand van
Dekrem Vastgoed & Landmeten
Dekrem Vastgoed & Landmeten
Sinds 1977 staat Wilfried Dekrem, medebestuurder, beëdigd landmeter-expert en erkend vastgoedmakelaar met zijn team voor je klaar.
Talrijke referenties vanuit de ganse vastgoedsector duiden op een professioneel, welbekend en betrouwbaar kantoor. In het residentiële segment hebben wij naast woningen ook een ruim aanbod aan bouwgronden in onze portefeuille.
De professionele aanpak, gebaseerd op een grondige kennis op juridisch, stedenbouwkundig en bouwtechnisch vlak, wordt al jarenlang door ons cliënteel gewaardeerd. Om jouw vragen zo snel en efficiënt mogelijk te beantwoorden zijn we 6 op 7 dagen bereikbaar!
6089
Leer meer over vastgoed
23 March 2026
Op Spotto zoeken als een pro: 10 slimme tips
21 March 2026
Hoeveel kan ik lenen om een huis te kopen?
01 March 2026
Wanneer heb ik een bouwvergunning of omgevingsvergunning nodig?
17 February 2026