Uitblinker in leefkwaliteit, ruimtegevoel en buitenbeleving
€ 533.000
Een pand van Lissens
Jouw zoektocht
Overzicht
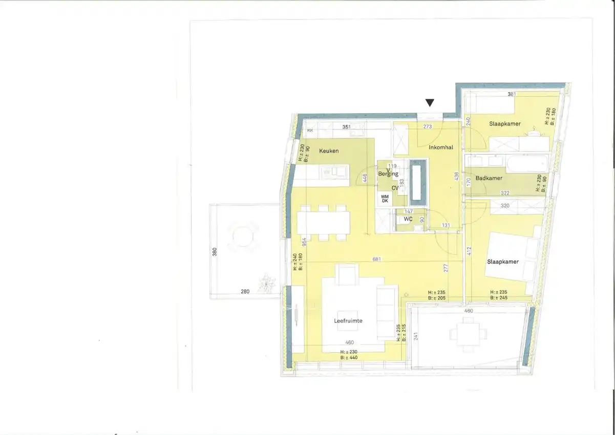
- 115 m² bewoonbaar
- 2 Slaapkamer(s)
- 1 Badkamer(s)
- 1 Toilet(ten)
- 1 Tuin
Beschrijving
Royaal gelijkvloers appartement met overdekt terras van +20 m² in het hart van de Bonenwijk (Orléansplein -Dils-site)
In de gegeerde Bonenwijk, op de kwalitatieve Dils-site in Aarschot, bevindt zich dit bijzonder aangename gelijkvloerse appartement met een uitzonderlijk ruime en lichtrijke leefruimte en een overdekt terras dat als volwaardige buitenkamer kan worden ingericht.
De leefruimte is opvallend royaal en geniet dankzij de grote raampartijen van een overvloed aan natuurlijk licht. De connectie met het inpandige, overdekte terras van meer dan 20 m² zorgt voor een unieke woonbeleving. Dit terras kan perfect worden ingericht met zowel een loungehoek als een volwaardige eethoek en vormt zo een extra leefruimte gedurende het hele jaar.
Daarnaast beschikt het appartement nog over een tweede, niet-overdekt terras met zicht op groen, wat extra diepte en rust creëert. De ligging achteraan de site garandeert een aangename, rustigere woonomgeving met veel privacy.
De hoofdslaapkamer geeft rechtstreeks uit op het overdekte terras en creëert een subtiel hotelgevoel. De tweede kamer kan flexibel worden ingericht als kinderkamer, dressing of bureauruimte. In de inkomhal bevindt zich bovendien een ruime nis die zich perfect leent tot het creëren van een grote inbouwkast of zelfs een compacte inloopkast.
De badkamer beschikt over een raam een zeldzame en bijzonder aangename troef en is uitgerust met een badkamermeubel en ligbad met douchescherm. Indien gewenst, kan het ligbad eenvoudig worden vervangen door een ruime inloopdouche.
Verder is er een praktische berging aanwezig, een privatieve kelderberging én een ondergrondse autostaanplaats die zich vlak bij de liftuitgang bevindt wat het comfort aanzienlijk verhoogt.
De centrale ligging in de Bonenwijk combineert rust met onmiddellijke nabijheid van handelszaken, een grote voedingswinkel, openbaar vervoer en verbindingswegen. Hier woont u groen en rustig, maar toch midden in het centrum van Aarschot.
Een appartement dat vooral uitblinkt in leefkwaliteit, ruimtegevoel en buitenbeleving.
Energie
- E-peil: E0
- Beglazing: Onbekend
Op de kaart

Financieel
| Prijs | |
|---|---|
| Kadastraal inkomen (niet geïndexeerd) | € 0 |
| Kadastraal inkomen (geïndexeerd) | € 0 |
Berekening kosten
Je aankoopkosten? Die heb je snel berekend via de knop hieronder.
Bijkomende info
Gebouw
| Bouwcertificaat | Nee |
|---|---|
| Bewoonbaar (m²) | 115 |
| Verdieping | 0 |
| Badkamers | 1 |
| Slaapkamers | 2 |
| Verdiepingen | 0 |
| Garages | 0 |
| Parkeerplaatsen | 1 |
| Doucheruimtes | 0 |
| Toiletten | 1 |
Faciliteiten
| Elektrisch keuringsattest | Nee |
|---|
Perceel
| Overstromingsgevoelig | Geen |
|---|---|
| Voorkeurrecht | Ja |
| Bebouwde oppervlakte (m²) | 0 |
| Tuin oppervlakte (m²) | 9 |
| Oppervlakte terras (m²) | 14 |
Vergunning
| Vergunning | Geen beschikbaar |
|---|---|
| Verkavelingsvergunning | Geen beschikbaar |
Uitrusting
| Investeringspand | Nee |
|---|---|
| Geschikt voor praktijk | Nee |
| Parking | Ja |
| Garage | Nee |
| Thuiskantoor | Nee |
| Kelder | Ja |
| Zolder | Nee |
| Tuin | Ja |
| Terras | Ja |
| Lift | Ja |
| Rioolaansluiting | Nee |
| Gasaansluiting | Nee |
| Wateraansluiting | Nee |
| Elektriciteitsaansluiting | Nee |
| TV aansluiting | Nee |
| Internetaansluiting | Nee |
| Telefoonaansluiting | Nee |
Appartementsblok
| Lift | Ja |
|---|