Hoogwaardige, vrijstaande nieuwbouwwoning (Casco)
€ 366.000
Een pand van Immo Liv'it
Jouw zoektocht
Overzicht
- 158 m² bewoonbaar
- 736 m² grond
- 3 Slaapkamer(s)
- 2 Toilet(ten)
Beschrijving
Moderne casco nieuwbouwwoning te Langdorp
Deze moderne houtskelet woning bevindt zich langs Het Hazepad te Langdorp.
Energiezuinigheid, kwalitatieve materialen en hedendaagse ruimtes zijn de voornaamste eigenschappen van deze woning.
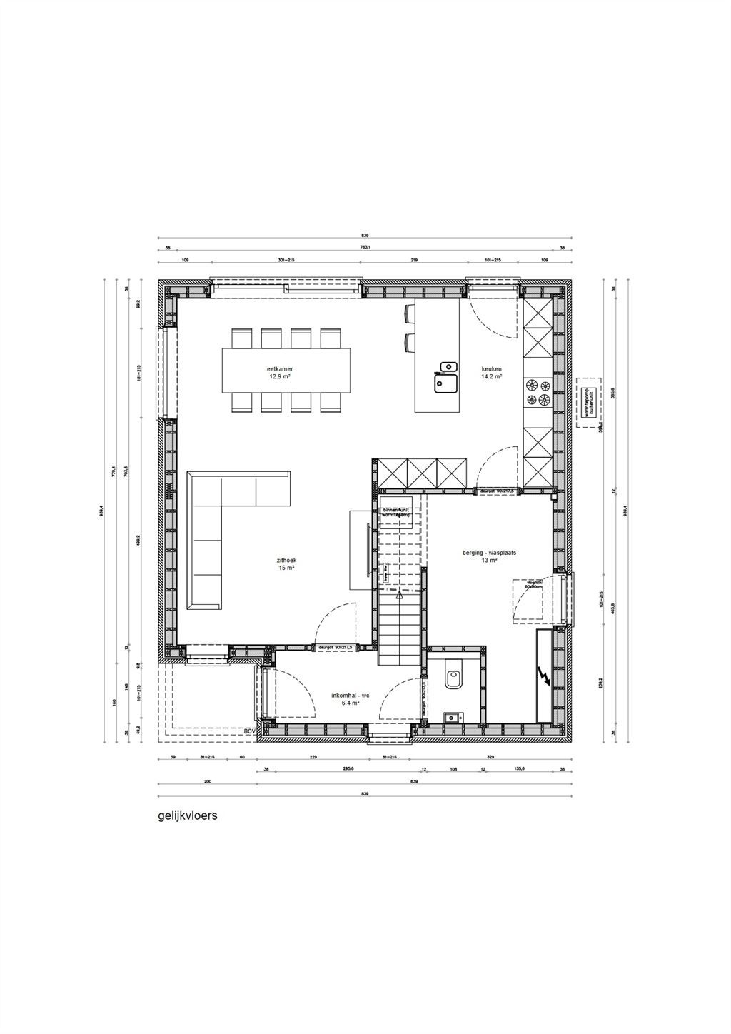
Via de inkomhal met ruimte voor vestiaire en een gastentoilet komt u binnen in de ruime leefruimte.
Op de eerste verdieping zijn 3 ruime slaapkamers, een badkamer en een apart toilet voorzien.
De drie slaapkamers genieten allemaal van een mooie oppervlakte. Zo beschikt de ruime masterbedroom (16,1m²) over haar eigen dressing.
Ook aan extra opbergruimte geen gebrek. In de technische bergruimte is tevens ook plaats en aansluiting voorzien voor uw wasmachine en/of droogkast.
*"Hazepad" is momenteel in ontwikkeling en belooft bij voltooiing een prachtige woonplek te zijn. Aankoop onder het BTW-tarief van 21% op de constructie, 12% registratierechten op de aankoop van de grond.
In de fotoreportage kan u de verdere afwerking van de reeds verkochte woning terugvinden te Hazepad 7B Langdorp.
Indien u graag deze woning komt bezichtigen aarzel dan zeker niet om ons te contacteren voor een afspraak.
Zo krijgt u een tastbaar idee/beeld van de mogelijkheden bij aankoop van het Hazepad 7A te Langdorp, volledig afgewerkt of casco.
Indien u wenst kan deze woning ook volledig afgewerkt worden, dit met oog voor detail en kwalitatieve materialen.
Benieuwd naar deze woningen? Maak snel een afspraak via 0470 55 64 24 of info@immolivit.be
Energie
![]() |
- Energieverbruik: 15 kWh/m²/jaar
- E-peil: E0
- Beglazing: Standaard dubbel
Op de kaart

Financieel
| Prijs | |
|---|---|
| Kadastraal inkomen (niet geïndexeerd) | € 0 |
| Kadastraal inkomen (geïndexeerd) | € 0 |
Berekening kosten
Je aankoopkosten? Die heb je snel berekend via de knop hieronder.
Bijkomende info
Gebouw
| Bouwjaar | 2025 |
|---|---|
| Staat | Nieuw |
| Bouwcertificaat | Nee |
| Bewoonbaar (m²) | 158 |
| Verdieping | 2 |
| Gevelbreedte | 8.39 |
| Badkamers | 0 |
| Slaapkamers | 3 |
| Verdiepingen | 0 |
| Garages | 0 |
| Parkeerplaatsen | 0 |
| Doucheruimtes | 0 |
| Toiletten | 2 |
Faciliteiten
| Materiaal ramenomlijstingen | PVC |
|---|---|
| Beglazing | Standaard dubbel |
| Elektrisch keuringsattest | Nee |
Perceel
| Breedte (m) | 14 |
|---|---|
| Overstromingsgevoelig | Geen |
| P-score | A |
| Voorkeurrecht | Nee |
| Totale oppervlakte (m²) | 736 |
| Bebouwde oppervlakte (m²) | 75 |
| Tuin oppervlakte (m²) | 0 |
| Oppervlakte terras (m²) | 0 |
| Oriëntatie tuin | Zuid |
Vergunning
| Vergunning | Vergunning beschikbaar |
|---|---|
| Verkavelingsvergunning | Vergunning beschikbaar |
Uitrusting
| Investeringspand | Nee |
|---|---|
| Geschikt voor praktijk | Nee |
| Parking | Nee |
| Garage | Nee |
| Thuiskantoor | Nee |
| Kelder | Nee |
| Zolder | Nee |
| Tuin | Nee |
| Terras | Nee |
| Lift | Nee |
| Rioolaansluiting | Nee |
| Gasaansluiting | Nee |
| Wateraansluiting | Nee |
| Elektriciteitsaansluiting | Nee |
| TV aansluiting | Nee |
| Internetaansluiting | Nee |
| Telefoonaansluiting | Nee |
