Open nieuwbouw eengezinswoning met 4 ruime slaapkamers, rustig gelegen op 5a40ca
€ 599.000
Een pand van Dupont Vastgoed
Favoriet
Jouw zoektocht
Jouw scoretabel voor dit pand
Aan het laden...
Jouw geplande bezichtigingen
Aan het laden...
Overzicht
- 209 m² bewoonbaar
- 540 m² grond
- 4 Slaapkamer(s)
- 1 Badkamer(s)
- 2 Toilet(ten)
Beschrijving
Vrijstaande nieuwbouw woning gelegen in een landelijke omgeving te Rillaar, op een steenworp van Aarschot met gunstige verbinding naar Leuven. LOT 5A aangeduid op het opmetingsplan.
Strakke hedendaagse nieuwbouw gelegen op een noord west georiënteerd perceel van 540m² met een bewoonbare oppervlakte van 209m². Deze woning wordt volledig afgewerkt opgeleverd met kwalitatieve materialen op maat van uw wensen. U hebt volledige inspraak in keuze vloeren, keuken, badkamer.
Oplevering verwacht 10 juli 2026.
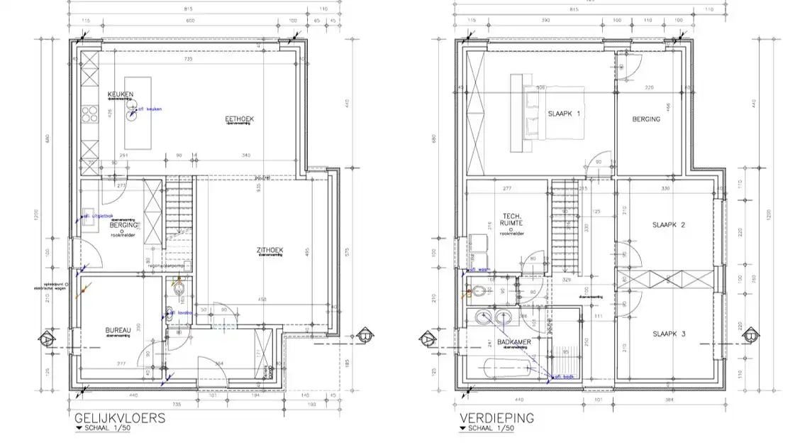
- gelijkvloers : inkomhal, gastentoilet, ruime woonkamer met open keuken die een prachtig zicht op de tuin bieden. Voorraadberging. Bureaukamer of slaapkamer op het gelijkvloers.
- 1ste verdiep: 3 ruime slaapkamers, dressing of extra berging. Badkamer, apart toilet. Technische ruimte.
De verkoopprijs van 599.000 euro excl BTW en notariskosten betreft een volledig afgewerkte woning volgens lastenboek met hoogwaardige materialen en correcte budgetten:
- overal vloerverwarming met warmtepomp
- parket in woonkamer, laminaat in slaapkamers, overigens tegels
- keuken en badkamer worden op maat gemaakt door schrijnwerker - kwalitatieve afwerking
- Ventilatiesysteem D
- 8 zonnepanelen
Lastenboek met alle details kan u verkrijgen op aanvraag. Voor meer inlichtingen nodigen wij u dan ook graag uit bij Dupont Vastgoed, maak gerust uw afspraak op 015 15 15 15
Fotomateriaal is louter illustratief en wijkt af van de actuele bouw.
Strakke hedendaagse nieuwbouw gelegen op een noord west georiënteerd perceel van 540m² met een bewoonbare oppervlakte van 209m². Deze woning wordt volledig afgewerkt opgeleverd met kwalitatieve materialen op maat van uw wensen. U hebt volledige inspraak in keuze vloeren, keuken, badkamer.
Oplevering verwacht 10 juli 2026.
- gelijkvloers : inkomhal, gastentoilet, ruime woonkamer met open keuken die een prachtig zicht op de tuin bieden. Voorraadberging. Bureaukamer of slaapkamer op het gelijkvloers.
- 1ste verdiep: 3 ruime slaapkamers, dressing of extra berging. Badkamer, apart toilet. Technische ruimte.
De verkoopprijs van 599.000 euro excl BTW en notariskosten betreft een volledig afgewerkte woning volgens lastenboek met hoogwaardige materialen en correcte budgetten:
- overal vloerverwarming met warmtepomp
- parket in woonkamer, laminaat in slaapkamers, overigens tegels
- keuken en badkamer worden op maat gemaakt door schrijnwerker - kwalitatieve afwerking
- Ventilatiesysteem D
- 8 zonnepanelen
Lastenboek met alle details kan u verkrijgen op aanvraag. Voor meer inlichtingen nodigen wij u dan ook graag uit bij Dupont Vastgoed, maak gerust uw afspraak op 015 15 15 15
Fotomateriaal is louter illustratief en wijkt af van de actuele bouw.
Energie
- EPC Certificaat: EPC bouw in opmaak
- E-peil: E0
- Beglazing: Standaard dubbel
Op de kaart

Financieel
| Prijs |
|---|
Bijkomende info
Gebouw
| Bouwjaar | 2025 |
|---|---|
| Staat | Nieuw |
| Bewoonbaar (m²) | 209 |
| Badkamers | 1 |
| Slaapkamers | 4 |
| Verdiepingen | 0 |
| Garages | 0 |
| Parkeerplaatsen | 0 |
| Toiletten | 2 |
Faciliteiten
| Keuken uitrusting | Goed uitgerust |
|---|---|
| Beglazing | Standaard dubbel |
| Septische tank | Nee |
Perceel
| Totale oppervlakte (m²) | 540 |
|---|---|
| Bebouwde oppervlakte (m²) | 0 |
| Oriëntatie tuin | Noordwest |
Vergunning
| Verkavelingsvergunning | Vergunning beschikbaar |
|---|
Uitrusting
| Investeringspand | Nee |
|---|---|
| Parking | Nee |
| Garage | Nee |
| Opslagruimte | Ja |
| Lift | Nee |
| Rioolaansluiting | Ja |
| Gasaansluiting | Nee |
| Wateraansluiting | Ja |
| Elektriciteitsaansluiting | Ja |
| Internetaansluiting | Ja |
| Telefoonaansluiting | Nee |
| Zonnepanelen | Ja |
| Zonneboiler | Nee |
| Alarm | Nee |
| Videofoon | Nee |
| Grondwaterput | Ja |
Een pand van
Dupont Vastgoed
Dupont Vastgoed
Bent u op zoek naar een nieuwe thuis? Of wenst u de waarde te kennen van uw eigendom om het aan te bieden op de vastgoedmarkt?
Dan is samenwerken met Dupont Vastgoed zeker de juiste beslissing.
Dupont Vastgoed is kiezen voor kwaliteit en professionaliteit!
U mag rekenen op een uitmuntende dienstverlening, een persoonlijk contact en een aanpak waarbij wij het verschil maken.
Wij zijn een kantoor met een oprechte manier van werken waarbij we zowel de koper als de verkoper zo goed mogelijk begeleiden.
Vlot verkopen aan de correcte prijs is onze prioriteit!
Afgewerkt Meyerveldstraat Lot 5A Aarschot
Leer meer over vastgoed
23 March 2026
Op Spotto zoeken als een pro: 10 slimme tips
21 March 2026
Hoeveel kan ik lenen om een huis te kopen?
01 March 2026
Wanneer heb ik een bouwvergunning of omgevingsvergunning nodig?
17 February 2026