Nieuw Virtual tour
Woning te koop in landelijk Rillaar
€ 235.000
Een pand van Immo Persyn
Overzicht
- 118 m² bewoonbaar
- 1166 m² grond
- 3 Slaapkamer(s)
- 1 Badkamer(s)
- 1 Toilet(ten)
- 1 Garage(s)
Overstromingsgevaar gebouw
Overstromingsgevaar perceel
Beschrijving
Op de verbindingsweg tussen Rillaar en Tielt-Winge vinden we deze leuke op te frissen woning op een perceel van maar liefst 1166 m². De woning dateert van 1967 maar heeft door de jaren toch al enkele verbeteringen ondergaan. Deze woning had een inpandig kapsalon waardoor de mogelijkheid bestaat om deze ruimte opnieuw in te richten als kantoorruimte/handelsruimte. Deze ruimte was oorspronkelijk de leefruimte en kan dus gemakkelijk opnieuw bij de woning betrokken worden.
Indeling:
Gelijkvloers: inkomhal, handelsruimte/living, keuken + zitgedeelte, nachthal, 3 slaapkamers, badkamer, toilet
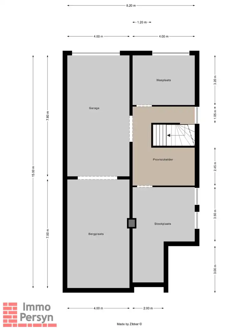
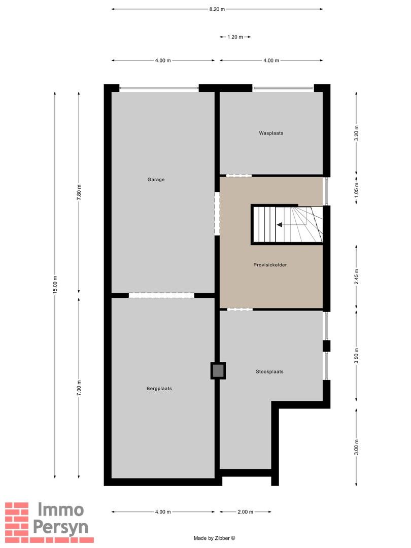
zolder: stockage
Kelder: stockage
Is jouw interesse gewekt? Neem dan vandaag nog contact op met ons via info@immopersyn.be of 013 444 008
Indeling:
Gelijkvloers: inkomhal, handelsruimte/living, keuken + zitgedeelte, nachthal, 3 slaapkamers, badkamer, toilet
zolder: stockage
Kelder: stockage
Is jouw interesse gewekt? Neem dan vandaag nog contact op met ons via info@immopersyn.be of 013 444 008
Energie
![]() |
- EPC Certificaat: 20250703-0003639528-RES-1
- Energieverbruik: 857 kWh/m²/jaar
- E-peil: E0
- Verwarming: Gas
- Beglazing: Standaard dubbel
Let op, de renovatieverplichting in Vlaanderen verplicht de koper om deze woning na aankoop te renoveren tot een betere energieprestatie. Lees er alles over in dit artikel
Extra budget nodig voor je renovatie?
De overheid helpt je dit pand energetisch te renoveren! Hieronder zie je het premiebedrag dat je mogelijks van de overheid krijgt.
Het huidige EPC-label is:

Op de kaart

Financieel
| Prijs | |
|---|---|
| Kadastraal inkomen (niet geïndexeerd) | € 798 |
Berekening kosten
Je aankoopkosten? Die heb je snel berekent via de knop hieronder.
Bijkomende info
Gebouw
| Bouwjaar | 1967 |
|---|---|
| Bewoonbaar (m²) | 118 |
| Verdieping | 1 |
| Badkamers | 1 |
| Slaapkamers | 3 |
| Verdiepingen | 1 |
| Garages | 1 |
| Parkeerplaatsen | 0 |
| Toiletten | 1 |
Faciliteiten
| Beglazing | Standaard dubbel |
|---|---|
| Brandstof primaire verwarming | Gas |
| Septische tank | Ja |
Perceel
| Overstromingsgevoelig | Geen |
|---|---|
| P-score | D |
| G-score | D |
| Totale oppervlakte (m²) | 1166 |
| Bebouwde oppervlakte (m²) | 0 |
| Oriëntatie tuin | Noordoost |
Vergunning
| Verkavelingsvergunning | Vergunning beschikbaar |
|---|
Uitrusting
| Investeringspand | Nee |
|---|---|
| Parking | Nee |
| Garage | Ja |
| Opslagruimte | Ja |
| Lift | Nee |
| Rioolaansluiting | Ja |
| Gasaansluiting | Nee |
| Wateraansluiting | Nee |
| Elektriciteitsaansluiting | Ja |
| Internetaansluiting | Ja |
| Telefoonaansluiting | Ja |
| Zonnepanelen | Nee |
| Zonneboiler | Nee |
| Alarm | Nee |
| Videofoon | Nee |
| Grondwaterput | Ja |
Een pand van
Immo Persyn
Wij staan voor u klaar om u te begeleiden in de zoektocht naar uw thuis
U, als klant, staat bij ons centraal.
Wij maken graag tijd voor u.
Wij stellen onze expertise ten dienste van u.
Wij gaan niet voor kwantiteit, maar voor kwaliteit.
Daarom dat wij ook ’s avonds en op zaterdag beschikbaar zijn voor u.
RILTIE177CC
Leer meer over vastgoed
24 November 2025
Uitgezocht voor jouw gemeente: Hoeveel stijgt de waarde van je woning door een renovatie?
22 October 2025
Hoeveel kan ik lenen om een huis te kopen?
11 June 2025
Huis kopen met bouwovertreding? Dit moet je weten
11 May 2025



