PELLENBERG - Exculsief bouwperceel op 25a68ca - OB
€ 540.000
Een pand van Immo3000
Favoriet
Jouw zoektocht
Jouw scoretabel voor dit pand
Aan het laden...
Overzicht
- 2568 m² grond
Beschrijving
Immo3000 heeft een bouwperceel te koop met een mooie opportuniteit voor wie op zoek is naar een ruim en rustig gelegen perceel in landelijk gebied. Droom je om te wonen op een toplocatie, midden in het groen maar vlak bij Leuven?
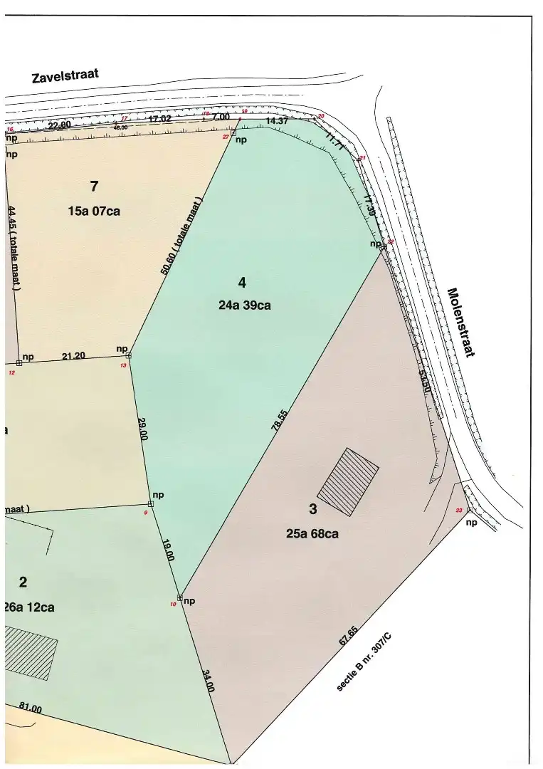
Ontdek dit prachtig gelegen grondperceel (lot 3) van 2.568 m² in de rustige Molenstraat te Pellenberg. Breedte aan de straatzijde = 53,50 m, perceeldiepte = gem. 70 m.
Het perceel is geschikt voor op het oprichten van een nieuwbouw in open bebouwing (afbraak bestaande constructies) of een totale renovatie van de bestaande constructie.
Binnen de voorziene bouwzone is een open bebouwing mogelijk met maximum 2 bewoonbare niveaus. De hoogte tussen het normale grondpeil en de kroonlijst is min. 3 m en max. 6m, constructie te voorzien van een zadeldak en een max. bouwdiepte van 15m.
✅ Open bebouwing volgens stedenbouwkundige voorschriften en voorschriften Agentschap Natuur en Bos.
✅ Straatbreedte 53,50 m – diepte gemiddeld 70 m
👉 Grijp deze unieke kans – contacteer ons voor meer info of een bezoek!
016 60 3000 of info@immo3000.be
Ontdek dit prachtig gelegen grondperceel (lot 3) van 2.568 m² in de rustige Molenstraat te Pellenberg. Breedte aan de straatzijde = 53,50 m, perceeldiepte = gem. 70 m.
Het perceel is geschikt voor op het oprichten van een nieuwbouw in open bebouwing (afbraak bestaande constructies) of een totale renovatie van de bestaande constructie.
Binnen de voorziene bouwzone is een open bebouwing mogelijk met maximum 2 bewoonbare niveaus. De hoogte tussen het normale grondpeil en de kroonlijst is min. 3 m en max. 6m, constructie te voorzien van een zadeldak en een max. bouwdiepte van 15m.
✅ Open bebouwing volgens stedenbouwkundige voorschriften en voorschriften Agentschap Natuur en Bos.
✅ Straatbreedte 53,50 m – diepte gemiddeld 70 m
👉 Grijp deze unieke kans – contacteer ons voor meer info of een bezoek!
016 60 3000 of info@immo3000.be
Energie
![]() |
- EPC Certificaat: 20260115-0003776508-RES-1
- Energieverbruik: 720 kWh/m²/jaar
- Verwarming: Geen
- Beglazing: Onbekend
Op de kaart

Financieel
| Prijs | |
|---|---|
| Kadastraal inkomen (niet geïndexeerd) | € 1.021 |
| Kadastraal inkomen (geïndexeerd) | € 2.292 |
Berekening kosten
Je aankoopkosten? Die heb je snel berekend via de knop hieronder.
Bijkomende info
Gebouw
| Is beschermd | Nee |
|---|
Perceel
| Overstromingsgevoelig | Geen |
|---|---|
| P-score | C |
| Voorkeurrecht | Nee |
| Totale oppervlakte (m²) | 2568 |
Vergunning
| Vergunning | Vergunning beschikbaar |
|---|---|
| Verkavelingsvergunning | Vergunning beschikbaar |
| Bouwovertreding dagvaardiging | Geen |
Uitrusting
| Meerdere eigenaars | Nee |
|---|---|
| Rioolaansluiting | Ja |
| Gasaansluiting | Nee |
| Wateraansluiting | Ja |
| Elektriciteitsaansluiting | Ja |
| TV aansluiting | Nee |
| Internetaansluiting | Nee |
Een pand van
Immo3000
Immo3000, dat is vast & zeker goed gekozen
Immo3000 werd opgericht door burgerlijk ingenieur Willem Vandevelde. Dankzij zijn expertise en marktkennis groeide het kantoor op korte tijd uit tot een gevestigde waarde in en rond 3000 Leuven. In 2023 vierden wij ons 15-jarig bestaan.
Vandaag bestaat onze werking reeds uit 2 kantoren met 7 gemotiveerde collega’s.
2026_PEL028
Leer meer over vastgoed
Nieuw
23 March 2026
Op Spotto zoeken als een pro: 10 slimme tips
Nieuw
21 March 2026
Hoeveel kan ik lenen om een huis te kopen?
01 March 2026
Wanneer heb ik een bouwvergunning of omgevingsvergunning nodig?
17 February 2026
