Nieuw
Charmante te moderniseren woning met nieuwe keuken op toplocatie in Scherpenheuvel-Zichem
Een pand van Immo Persyn
Favoriet
Jouw zoektocht
Jouw scoretabel voor dit pand
Aan het laden...
Overzicht
- 164 m² bewoonbaar
- 280 m² grond
- 3 Slaapkamer(s)
- 1 Badkamer(s)
- 1 Toilet(ten)
Beschrijving
Deze woning, gelegen in de Houwaartstraat 413 te Scherpenheuvel-Zichem, biedt u de perfecte combinatie van een rustige woonomgeving en een uitstekende bereikbaarheid. Met slechts 1 minuut rijden naar de E314 is deze locatie ideaal voor pendelaars. De woning is weliswaar te moderniseren, maar beschikt over een splinternieuwe keuken en een EPC-label D, wat betekent dat er géén renovatieverplichting geldt. Hierdoor kunt u direct van start met het creëren van uw droomwoning op uw eigen tempo en budget!
Bovendien is dit huis een droom voor wie potentieel zoekt. Door het plaatsen van een vaste trap naar de ruime dakverdieping, kan hier met gemak een zeer royale masterbedroom of extra hobbyruimte gerealiseerd worden op zolder. In de lichtrijke veranda kan u makkelijk een ruimte creëren om tot rust te komen tijdens elk seizoen van jaar. De makkelijk te onderhouden tuin met grote tuinberging is toegankelijk via de veranda en een garagepoort. Het perceel is overzichtelijk en onderhoudsvriendelijk, zodat u meer tijd heeft om te genieten.
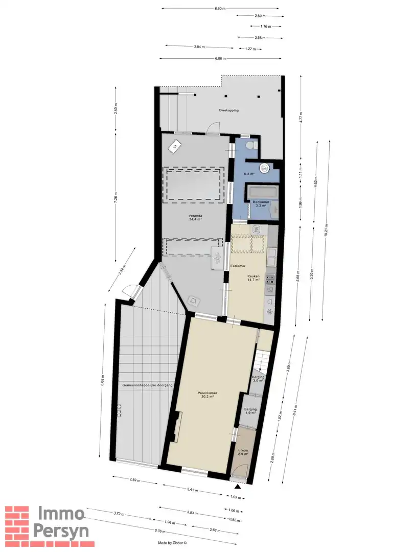
INDELING
Gelijkvloers: Inkomhal, toilet, trap, woonkamer, keuken (nieuw), badkamer, veranda, technische ruimte, berging.
1ste verdieping: 3 slaapkamers.
Dakverdieping: Ruime zolderruimte
Ervaar zelf de vele voordelen en de fantastische potentie van deze woning tijdens een persoonlijke rondleiding. Maak vandaag nog uw afspraak.
Mail naar sander@immopersyn.be of bel 013 444 008.
Bovendien is dit huis een droom voor wie potentieel zoekt. Door het plaatsen van een vaste trap naar de ruime dakverdieping, kan hier met gemak een zeer royale masterbedroom of extra hobbyruimte gerealiseerd worden op zolder. In de lichtrijke veranda kan u makkelijk een ruimte creëren om tot rust te komen tijdens elk seizoen van jaar. De makkelijk te onderhouden tuin met grote tuinberging is toegankelijk via de veranda en een garagepoort. Het perceel is overzichtelijk en onderhoudsvriendelijk, zodat u meer tijd heeft om te genieten.
INDELING
Gelijkvloers: Inkomhal, toilet, trap, woonkamer, keuken (nieuw), badkamer, veranda, technische ruimte, berging.
1ste verdieping: 3 slaapkamers.
Dakverdieping: Ruime zolderruimte
Ervaar zelf de vele voordelen en de fantastische potentie van deze woning tijdens een persoonlijke rondleiding. Maak vandaag nog uw afspraak.
Mail naar sander@immopersyn.be of bel 013 444 008.
Energie
![]() |
- Energieverbruik: 320 kWh/m²/jaar
- E-peil: E0
- Beglazing: Onbekend
Extra budget nodig voor je renovatie?
De overheid helpt je dit pand energetisch te renoveren! Hieronder zie je het premiebedrag dat je mogelijks van de overheid krijgt.
Het huidige EPC-label is:

Op de kaart

Financieel
| Prijs |
|---|
Berekening kosten
Je aankoopkosten? Die heb je snel berekend via de knop hieronder.
Bijkomende info
Gebouw
| Bouwjaar | 1900 |
|---|---|
| Bewoonbaar (m²) | 164 |
| Badkamers | 1 |
| Slaapkamers | 3 |
| Verdiepingen | 0 |
| Garages | 0 |
| Parkeerplaatsen | 0 |
| Toiletten | 1 |
Faciliteiten
| Septische tank | Nee |
|---|
Perceel
| Diepte (m) | 39 |
|---|---|
| Breedte (m) | 7 |
| Overstromingsgevoelig | Geen |
| P-score | A |
| G-score | A |
| Totale oppervlakte (m²) | 280 |
| Bebouwde oppervlakte (m²) | 0 |
| Oriëntatie tuin | Noord |
Vergunning
| Verkavelingsvergunning | Geen beschikbaar |
|---|
Uitrusting
| Investeringspand | Nee |
|---|---|
| Parking | Nee |
| Garage | Nee |
| Zolder | Ja |
| Opslagruimte | Ja |
| Lift | Nee |
| Rioolaansluiting | Ja |
| Gasaansluiting | Nee |
| Wateraansluiting | Ja |
| Elektriciteitsaansluiting | Ja |
| Internetaansluiting | Nee |
| Telefoonaansluiting | Nee |
| Zonnepanelen | Nee |
| Zonneboiler | Nee |
| Alarm | Nee |
| Videofoon | Nee |
| Grondwaterput | Nee |
Een pand van
Immo Persyn
Wij staan voor u klaar om u te begeleiden in de zoektocht naar uw thuis
U, als klant, staat bij ons centraal.
Wij maken graag tijd voor u.
Wij stellen onze expertise ten dienste van u.
Wij gaan niet voor kwantiteit, maar voor kwaliteit.
Daarom dat wij ook ’s avonds en op zaterdag beschikbaar zijn voor u.
SCHHOU413CC
Leer meer over vastgoed
Nieuw
23 March 2026
Op Spotto zoeken als een pro: 10 slimme tips
01 March 2026
Wanneer heb ik een bouwvergunning of omgevingsvergunning nodig?
17 February 2026
Hoe breng ik een bod uit op een woning?
24 November 2025


