Nieuw
2 huizen te koop: 1 gerenoveerd + 1 te renoveren
Een pand van Immo Persyn
Overzicht
- 104 m² grond
Beschrijving
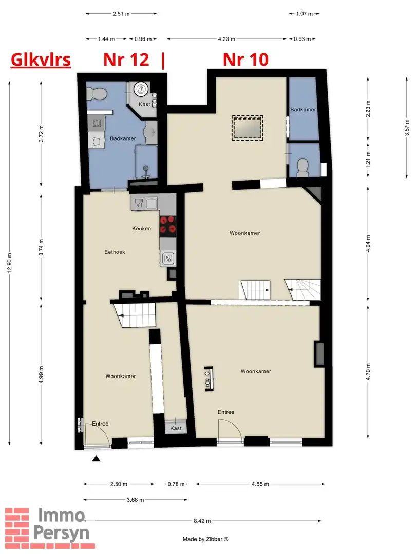
In de Cobergerstraat in hartje Scherpenheuvel vinden we deze 2 rijwoningen, die tesamen verkocht worden. Eentje is helemaal gerenoveerd, en wordt momenteel verhuurd als vakantiehuisje. Het andere is te renoveren. Dit is een ideaal aanbod voor starters of investeerders. Je woont in 1 huis, je renoveert het andere. Of je verhuurt 1 of beide. De bijgevoegde grondplannetjes zijn van de 2 woningen samen.
De gerenoveerde woning in de Corbergerstraat 12 is helemaal in orde, wat zich ondermeer reflecteert in een EPC label B en een conforme elektriciteit installatie. Er is geen asbest. De grondoppervlakte bedraagt 54 ca, en het basis KI bedraagt 351 euro.
De te renoveren woning is gelegen in de Corbergerstraat 10, heeft een grondoppervlakte van 50ca, een EPC label F en het basis KI bedraagt 215 euro.
INDELING van de gerenoveerde woning
Gelijkvloers: woonkamer, eethoek met keuken, badkamer met toilet.
1ste verdieping: slaapkamer, bureau, apart toilet.
2de verdieping: tweede slaapkamer.
INDELING van de te renoveren woning
Gelijkvloers: 3 ruimtes, apart toilet.
1ste verdieping: 1 grote ruimte.
Zolder.
Keldertje.
Ervaar zelf de vele voordelen van deze 2 woningen tijdens een persoonlijke rondleiding. Maak vandaag nog je afspraak. Mail naar info@immopersyn.be of bel 013 444 008.
De gerenoveerde woning in de Corbergerstraat 12 is helemaal in orde, wat zich ondermeer reflecteert in een EPC label B en een conforme elektriciteit installatie. Er is geen asbest. De grondoppervlakte bedraagt 54 ca, en het basis KI bedraagt 351 euro.
De te renoveren woning is gelegen in de Corbergerstraat 10, heeft een grondoppervlakte van 50ca, een EPC label F en het basis KI bedraagt 215 euro.
INDELING van de gerenoveerde woning
Gelijkvloers: woonkamer, eethoek met keuken, badkamer met toilet.
1ste verdieping: slaapkamer, bureau, apart toilet.
2de verdieping: tweede slaapkamer.
INDELING van de te renoveren woning
Gelijkvloers: 3 ruimtes, apart toilet.
1ste verdieping: 1 grote ruimte.
Zolder.
Keldertje.
Ervaar zelf de vele voordelen van deze 2 woningen tijdens een persoonlijke rondleiding. Maak vandaag nog je afspraak. Mail naar info@immopersyn.be of bel 013 444 008.
Energie
![]() |
- Energieverbruik: 158 kWh/m²/jaar
- E-peil: E0
- Beglazing: Onbekend
Op de kaart

Financieel
| Prijs |
|---|
Berekening kosten
Je aankoopkosten? Die heb je snel berekend via de knop hieronder.
Bijkomende info
Gebouw
| Badkamers | 0 |
|---|---|
| Slaapkamers | 0 |
| Verdiepingen | 0 |
| Garages | 0 |
| Parkeerplaatsen | 0 |
| Toiletten | 0 |
Faciliteiten
| Septische tank | Nee |
|---|
Perceel
| Overstromingsgevoelig | Geen |
|---|---|
| P-score | A |
| G-score | A |
| Totale oppervlakte (m²) | 104 |
| Bebouwde oppervlakte (m²) | 0 |
| Oriëntatie tuin | Noordoost |
Vergunning
| Verkavelingsvergunning | Geen beschikbaar |
|---|
Uitrusting
| Investeringspand | Nee |
|---|---|
| Parking | Nee |
| Garage | Nee |
| Lift | Nee |
| Rioolaansluiting | Nee |
| Gasaansluiting | Nee |
| Wateraansluiting | Nee |
| Elektriciteitsaansluiting | Nee |
| Internetaansluiting | Nee |
| Telefoonaansluiting | Nee |
| Zonnepanelen | Nee |
| Zonneboiler | Nee |
| Alarm | Nee |
| Videofoon | Nee |
| Grondwaterput | Nee |
Een pand van
Immo Persyn
Wij staan voor u klaar om u te begeleiden in de zoektocht naar uw thuis
U, als klant, staat bij ons centraal.
Wij maken graag tijd voor u.
Wij stellen onze expertise ten dienste van u.
Wij gaan niet voor kwantiteit, maar voor kwaliteit.
Daarom dat wij ook ’s avonds en op zaterdag beschikbaar zijn voor u.
SCHCOB10-12C
Leer meer over vastgoed
24 November 2025
Uitgezocht voor jouw gemeente: Hoeveel stijgt de waarde van je woning door een renovatie?
22 October 2025
Hoeveel kan ik lenen om een huis te kopen?
11 June 2025
Huis kopen met bouwovertreding? Dit moet je weten
11 May 2025
