Droomlocatie aan de Basiliek: Woon- en Handelspand met Ongekend Potentieel!
€ 365.000
Een pand van Immo Persyn
Overzicht
- 237 m² bewoonbaar
- 110 m² grond
Beschrijving
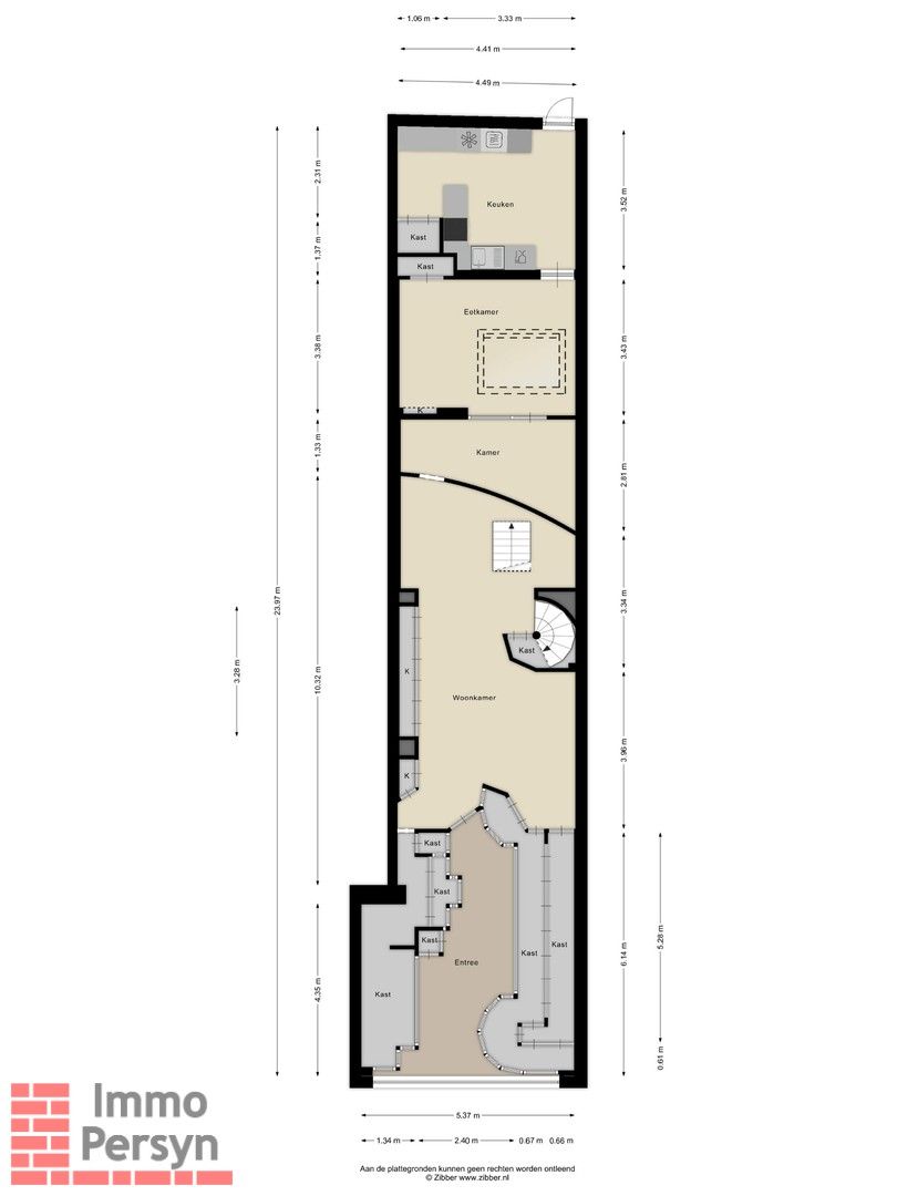
Droomt u van een unieke investering op een absolute toplocatie? Dan is dit pand aan het Isabellaplein 10 in Scherpenheuvel dé buitenkans waar u op wachtte! Met een adembenemend uitzicht op de iconische basiliek geniet u hier van een uitzonderlijke zichtbaarheid en een levendige omgeving. Dit pand, dat momenteel een grondige renovatie behoeft, biedt een leeg canvas om uw visie op een luxueuze woning te combineren met een bloeiende commerciële activiteit. Het is de perfecte basis om uw droomproject te realiseren, met alle potentieel om een parel te worden in het hart van Scherpenheuvel.
Met een indrukwekkend totaal bruikbaar vloeroppervlak van 237 m², waarvan 103 m² is toegewezen aan de handelsruimte en 134 m² aan de woning, zijn de mogelijkheden legio. De ruime handelsruimte is uitermate geschikt voor diverse zelfstandige beroepen, zoals een tandarts, kinesist, architect, dokter of andere dienstverlenende activiteiten die baat hebben bij een prominente locatie. Bovenop de handelsruimte biedt de woning maar liefst 5 slaapkamers, wat talloze opties biedt voor een groot gezin, gastenkamers, of zelfs de creatie van thuiskantoren. De dubbele ingang, zowel aan de voor- als achterzijde van het pand, zorgt voor een optimale functionaliteit en bereikbaarheid. Hoewel het pand een EPC-label F heeft, biedt dit net de kans om te renoveren met oog voor energiezuinigheid en zo een toekomstbestendige investering te realiseren. Grijp deze unieke gelegenheid om wonen en werken perfect te combineren op een van de meest gewilde locaties van Scherpenheuvel!
Voel jij de potentie van dit pand om jouw ideeën werkelijkheid te maken? Laat deze unieke kans niet liggen en neem contact op met Sander via sander@immopersyn.be of bel 013 444 008 voor een exclusieve kijk!
Met een indrukwekkend totaal bruikbaar vloeroppervlak van 237 m², waarvan 103 m² is toegewezen aan de handelsruimte en 134 m² aan de woning, zijn de mogelijkheden legio. De ruime handelsruimte is uitermate geschikt voor diverse zelfstandige beroepen, zoals een tandarts, kinesist, architect, dokter of andere dienstverlenende activiteiten die baat hebben bij een prominente locatie. Bovenop de handelsruimte biedt de woning maar liefst 5 slaapkamers, wat talloze opties biedt voor een groot gezin, gastenkamers, of zelfs de creatie van thuiskantoren. De dubbele ingang, zowel aan de voor- als achterzijde van het pand, zorgt voor een optimale functionaliteit en bereikbaarheid. Hoewel het pand een EPC-label F heeft, biedt dit net de kans om te renoveren met oog voor energiezuinigheid en zo een toekomstbestendige investering te realiseren. Grijp deze unieke gelegenheid om wonen en werken perfect te combineren op een van de meest gewilde locaties van Scherpenheuvel!
Voel jij de potentie van dit pand om jouw ideeën werkelijkheid te maken? Laat deze unieke kans niet liggen en neem contact op met Sander via sander@immopersyn.be of bel 013 444 008 voor een exclusieve kijk!
Energie
![]() |
- Energieverbruik: 516 kWh/m²/jaar
- E-peil: E0
- Beglazing: Onbekend
Let op, de renovatieverplichting in Vlaanderen verplicht de koper om deze woning na aankoop te renoveren tot een betere energieprestatie. Lees er alles over in dit artikel
Extra budget nodig voor je renovatie?
De overheid helpt je dit pand energetisch te renoveren! Hieronder zie je het premiebedrag dat je mogelijks van de overheid krijgt.
Het huidige EPC-label is:

Op de kaart

Financieel
| Prijs |
|---|
Berekening kosten
Je aankoopkosten? Die heb je snel berekent via de knop hieronder.
Bijkomende info
Gebouw
| Bouwjaar | 1850 |
|---|---|
| Staat | Te renoveren |
| Bewoonbaar (m²) | 237 |
| Badkamers | 0 |
| Slaapkamers | 0 |
| Verdiepingen | 0 |
| Garages | 0 |
| Parkeerplaatsen | 0 |
| Toiletten | 0 |
Faciliteiten
| Septische tank | Nee |
|---|
Perceel
| Diepte (m) | 24 |
|---|---|
| Overstromingsgevoelig | Geen |
| P-score | A |
| G-score | A |
| Totale oppervlakte (m²) | 110 |
| Bebouwde oppervlakte (m²) | 0 |
Vergunning
| Verkavelingsvergunning | Geen beschikbaar |
|---|
Uitrusting
| Investeringspand | Nee |
|---|---|
| Parking | Nee |
| Garage | Nee |
| Lift | Nee |
| Rioolaansluiting | Nee |
| Gasaansluiting | Ja |
| Wateraansluiting | Ja |
| Elektriciteitsaansluiting | Nee |
| Internetaansluiting | Nee |
| Telefoonaansluiting | Nee |
| Zonnepanelen | Nee |
| Zonneboiler | Nee |
| Alarm | Nee |
| Videofoon | Nee |
| Grondwaterput | Nee |
Een pand van
Immo Persyn
Wij staan voor u klaar om u te begeleiden in de zoektocht naar uw thuis
U, als klant, staat bij ons centraal.
Wij maken graag tijd voor u.
Wij stellen onze expertise ten dienste van u.
Wij gaan niet voor kwantiteit, maar voor kwaliteit.
Daarom dat wij ook ’s avonds en op zaterdag beschikbaar zijn voor u.
SCHISA10 CC
Leer meer over vastgoed
Nieuw
24 November 2025
Uitgezocht voor jouw gemeente: Hoeveel stijgt de waarde van je woning door een renovatie?
22 October 2025
Hoeveel kan ik lenen om een huis te kopen?
11 June 2025
Huis kopen met bouwovertreding? Dit moet je weten
11 May 2025



