Nieuw
Woning met loods en aangrenzende bouwgrond te koop. 27 are
€ 429.000
Een pand van Immo Persyn
Favoriet
Jouw zoektocht
Jouw scoretabel voor dit pand
Aan het laden...
Jouw geplande bezichtigingen
Aan het laden...
Overzicht
- 128 m² bewoonbaar
- 2697 m² grond
- 3 Slaapkamer(s)
- 1 Badkamer(s)
- 1 Tuin
- 1 Garage(s)
Overstromingsgevaar perceel
Beschrijving
Zoek je een project met talloze mogelijkheden? Dit pand op de Mannenberg biedt je een zeldzame combinatie van een vrijstaande woning met grote loods (nummer 148) en een aanpalende bouwgrond voor open bebouwing (nummer146). De vraagprijs is voor het geheel, dus woning, loods en bouwgrond. De bouwgrond maakt momenteel deel uit van de mooi aangelegde tuin. Als je de grond nu niet zou bebouwen, blijft dit een uitstekende investering voor de toekomst. Achterliggend is alles agrarisch gebied, wat je zicht naar achteren toe vrijwaart. De grondoppervlakte van de bouwgrond is 1.324 m², de woning ligt op 1.373 m² grond, wat het geheel dus bijna 27 are groot maakt. Het geheel is gelegen aan een belangrijke invalsweg naar het centrum, en combineert een uitstekende visibiliteit met een vlotte ontsluiting dankzij de directe nabijheid van de snelweg.
Wat de bestaande woning écht bijzonder maakt, zijn de faciliteiten voor de actieve doe-het-zelver of zelfstandige. Je beschikt over een ruime loods met een achterliggende stockage ruimte, dan nog eens een grote garage en tot slot een ruime oprit waar je een 20-tal auto's kwijt kunt. De mooi aangelegde en volledig omheinde tuin is via een zijdelingse weg zelfs met een vrachtwagen bereikbaar, wat ideaal is voor leveringen of zwaar materieel.
De afmetingen van de vergunde bijgebouwen zijn:
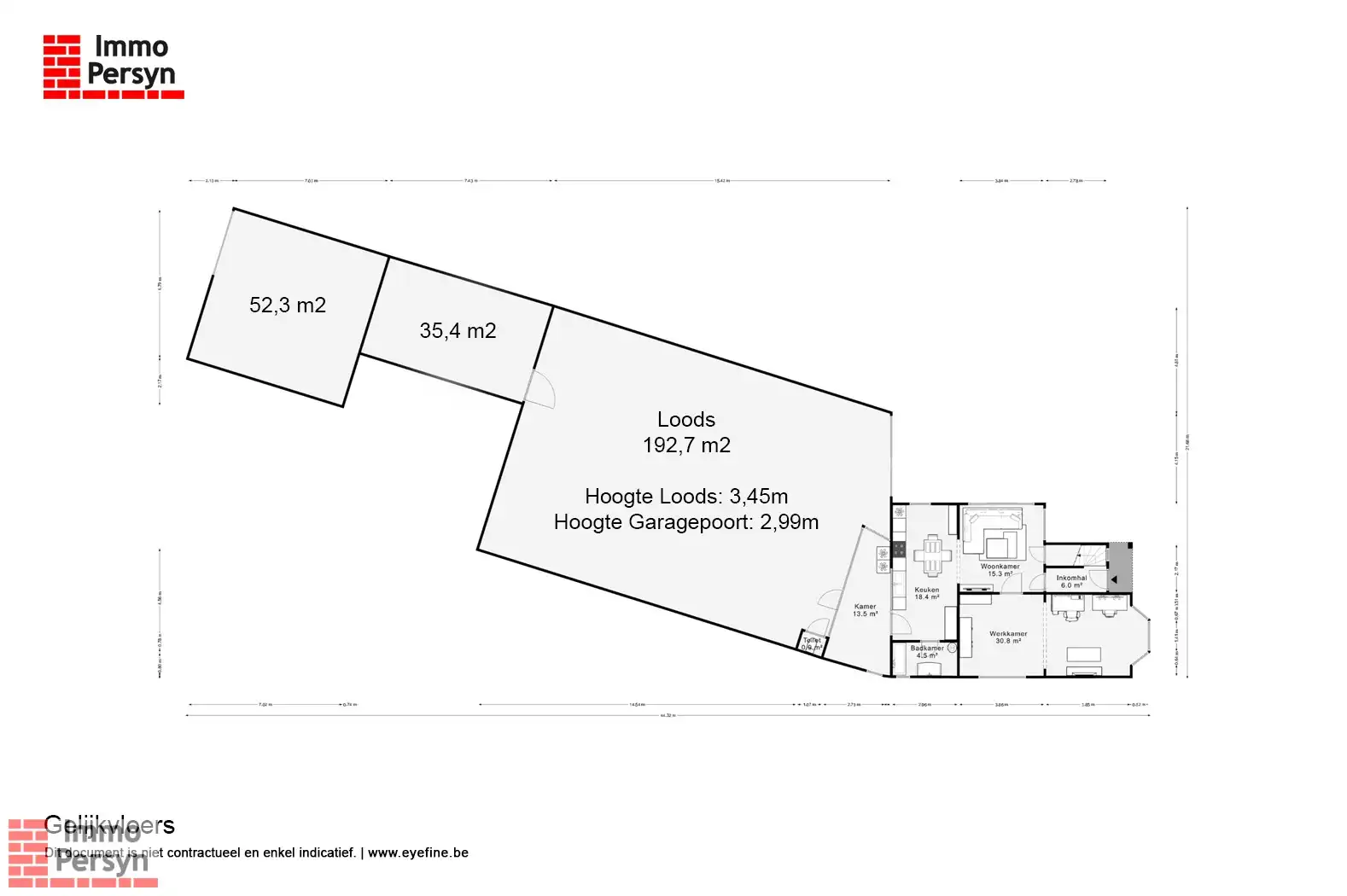
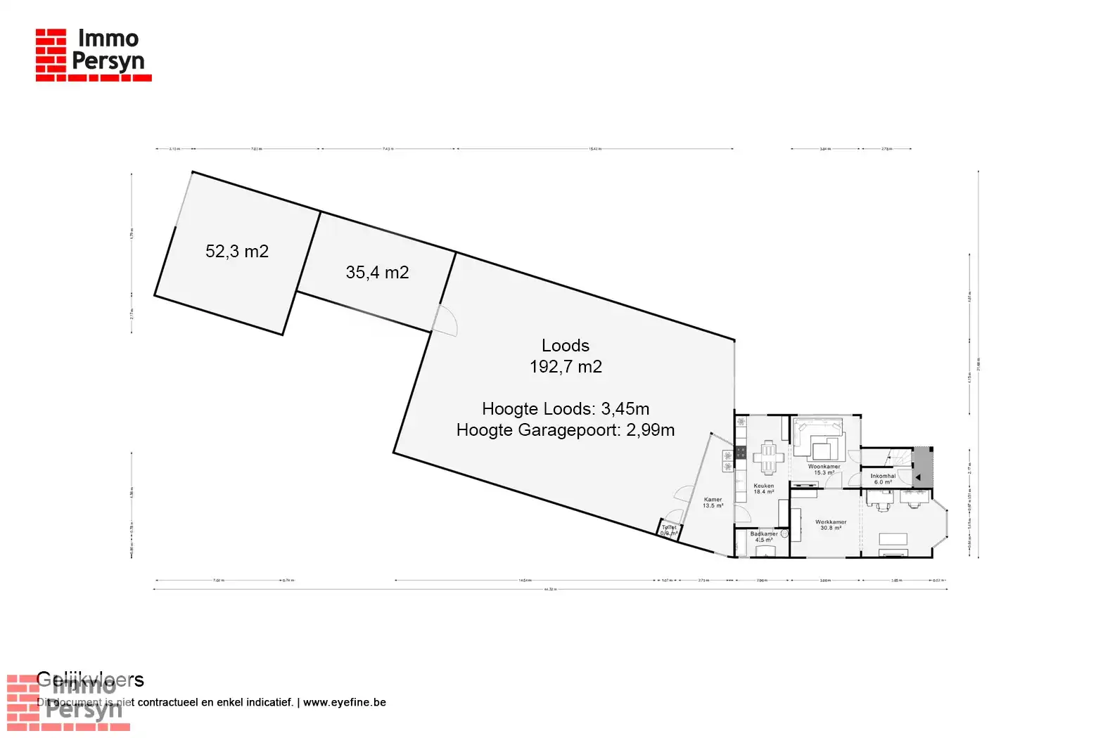
INDELING WONING
Gelijkvloers: inkom, woonkamer met open keuken, tweede woonkamer, bureau, badkamer, loods bestaande uit twee delen met smeerput, grote garage.
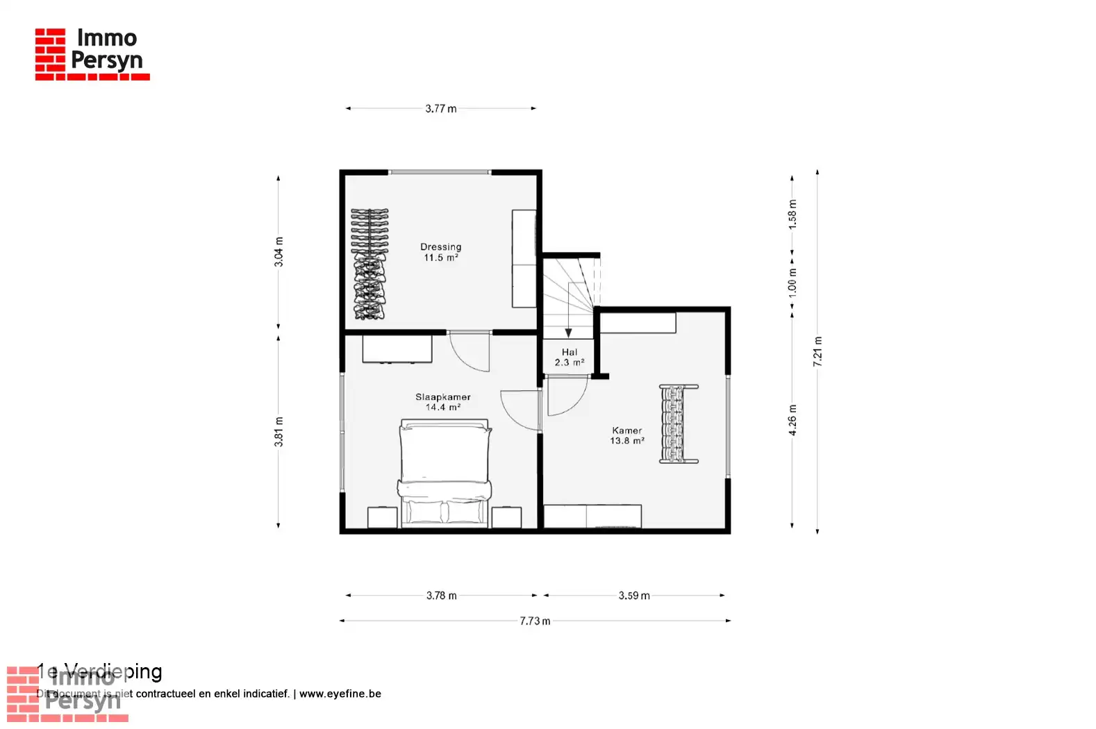
1ste verdieping: nachthal, 3 slaapkamers.
Tuin: prachtig aangelegde en volledig afgespannen tuin, zijdelings bereikbaar via erfdienstbaarheid.
Kelder: kelderruimte.
BOUWVOORSCHRIFTEN NAASTLIGGENDE GROND SAMENGEVAT:
Ervaar zelf de vele voordelen van dit pand tijdens een persoonlijke rondleiding.
Maak vandaag nog je afspraak.
Mail naar info@immopersyn.be of bel 013 444 008.
Wat de bestaande woning écht bijzonder maakt, zijn de faciliteiten voor de actieve doe-het-zelver of zelfstandige. Je beschikt over een ruime loods met een achterliggende stockage ruimte, dan nog eens een grote garage en tot slot een ruime oprit waar je een 20-tal auto's kwijt kunt. De mooi aangelegde en volledig omheinde tuin is via een zijdelingse weg zelfs met een vrachtwagen bereikbaar, wat ideaal is voor leveringen of zwaar materieel.
De afmetingen van de vergunde bijgebouwen zijn:
- Een loods van maar liefst 193 m² met een bruikbare hoogte van 3,45 meter en een poorthoogte van 2,99 meter;
- Een tweede stockageruimte achterliggend van 35 m²;
- En achterliggend nog een garage van 52 m².
INDELING WONING
Gelijkvloers: inkom, woonkamer met open keuken, tweede woonkamer, bureau, badkamer, loods bestaande uit twee delen met smeerput, grote garage.
1ste verdieping: nachthal, 3 slaapkamers.
Tuin: prachtig aangelegde en volledig afgespannen tuin, zijdelings bereikbaar via erfdienstbaarheid.
Kelder: kelderruimte.
BOUWVOORSCHRIFTEN NAASTLIGGENDE GROND SAMENGEVAT:
- Voor open bebouwing, 2 bouwlagen met dak.
- Maximale gevelbreedte: 6,60 meter.
- Maximale bouwdiepte gelijkvloers: 17 meter.
- Maximale bouwdiepte verdiep: 12 meter.
- Maximale kroonlijsthoogte 5,5 meter, maximale nokhoogte 8,50 meter.
- Een vrijstaand bijgebouw van maximaal 40 m².
Ervaar zelf de vele voordelen van dit pand tijdens een persoonlijke rondleiding.
Maak vandaag nog je afspraak.
Mail naar info@immopersyn.be of bel 013 444 008.
Energie
![]() |
- EPC Certificaat: 20240324-0003186941-RES-1
- Energieverbruik: 933 kWh/m²/jaar
- E-peil: E0
- Beglazing: Onbekend
Let op, de renovatieverplichting in Vlaanderen verplicht de koper om deze woning na aankoop te renoveren tot een betere energieprestatie. Lees er alles over in dit artikel
Extra budget nodig voor je renovatie?
De overheid helpt je dit pand energetisch te renoveren! Hieronder zie je het premiebedrag dat je mogelijks van de overheid krijgt.
Het huidige EPC-label is:

Op de kaart

Financieel
| Prijs | |
|---|---|
| Kadastraal inkomen (niet geïndexeerd) | € 815 |
Berekening kosten
Je aankoopkosten? Die heb je snel berekend via de knop hieronder.
Bijkomende info
Gebouw
| Bouwjaar | 1951 |
|---|---|
| Bewoonbaar (m²) | 128 |
| Gevelbreedte | 7 |
| Badkamers | 1 |
| Slaapkamers | 3 |
| Verdiepingen | 2 |
| Garages | 1 |
| Parkeerplaatsen | 0 |
| Toiletten | 0 |
Faciliteiten
| Septische tank | Ja |
|---|
Perceel
| Diepte (m) | 59 |
|---|---|
| Breedte (m) | 32 |
| Overstromingsgevoelig | Geen |
| P-score | D |
| G-score | A |
| Totale oppervlakte (m²) | 2697 |
| Bebouwde oppervlakte (m²) | 0 |
| Tuin oppervlakte (m²) | 0 |
| Oriëntatie tuin | Zuid |
Vergunning
| Verkavelingsvergunning | Geen beschikbaar |
|---|
Uitrusting
| Investeringspand | Nee |
|---|---|
| Parking | Nee |
| Garage | Ja |
| Thuiskantoor | Ja |
| Kelder | Ja |
| Opslagruimte | Ja |
| Tuin | Ja |
| Lift | Nee |
| Rioolaansluiting | Ja |
| Gasaansluiting | Ja |
| Wateraansluiting | Ja |
| Elektriciteitsaansluiting | Ja |
| Internetaansluiting | Nee |
| Telefoonaansluiting | Ja |
| Zonnepanelen | Nee |
| Zonneboiler | Nee |
| Alarm | Nee |
| Videofoon | Nee |
| Grondwaterput | Ja |
Een pand van
Immo Persyn
Wij staan voor u klaar om u te begeleiden in de zoektocht naar uw thuis
U, als klant, staat bij ons centraal.
Wij maken graag tijd voor u.
Wij stellen onze expertise ten dienste van u.
Wij gaan niet voor kwantiteit, maar voor kwaliteit.
Daarom dat wij ook ’s avonds en op zaterdag beschikbaar zijn voor u.
SCHMAN146-148
Leer meer over vastgoed
23 March 2026
Op Spotto zoeken als een pro: 10 slimme tips
21 March 2026
Hoeveel kan ik lenen om een huis te kopen?
01 March 2026
Wanneer heb ik een bouwvergunning of omgevingsvergunning nodig?
17 February 2026



