Knappe nieuwbouwwoning met 4slk nabij de bossen
€ 400.000
Een pand van Lissens
Jouw zoektocht
Overzicht
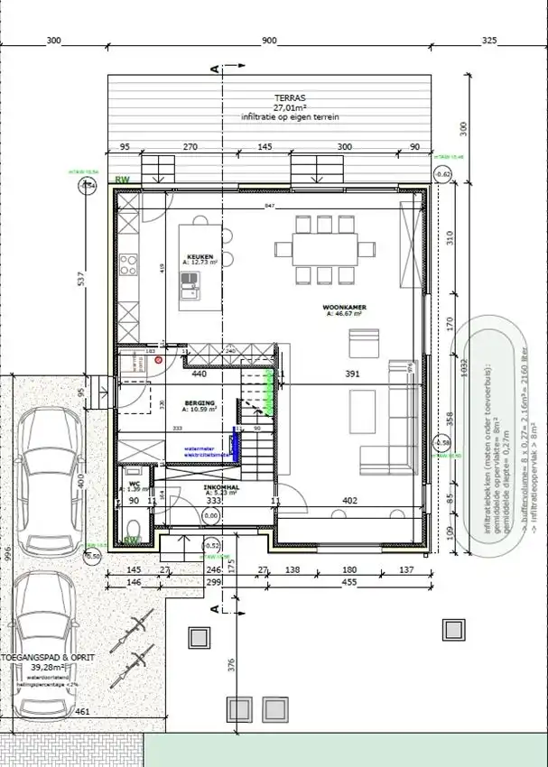
- 190 m² bewoonbaar
- 567 m² grond
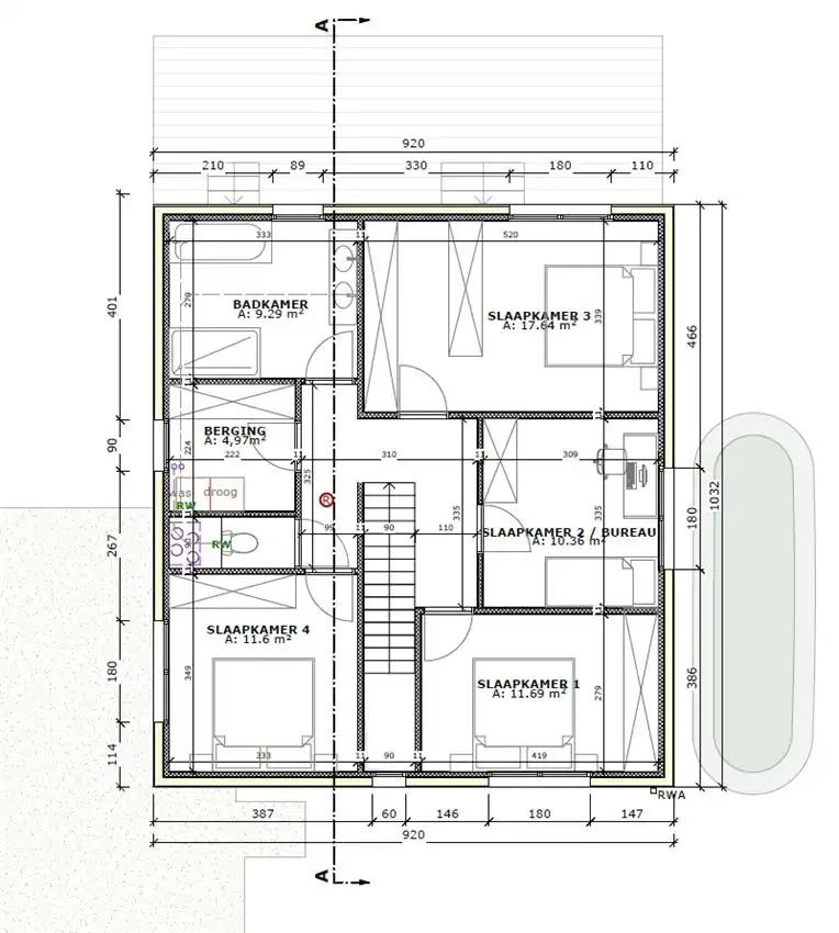
- 4 Slaapkamer(s)
- 1 Badkamer(s)
- 2 Toilet(ten)
- 1 Tuin
Overstromingsgevaar perceel
Beschrijving
In een rustige, verkeersluwe straat aan de rand van de Averbodse bossen verrijst deze knappe nieuwbouwwoning op een aangenaam perceel van 5a67ca. De ligging combineert pure rust met een vlotte bereikbaarheid richting Diest, Aarschot, Westerlo en Scherpenheuvel, en biedt onmiddellijke toegang tot natuur, wandelroutes en fietspaden. Bij het binnenkomen verwelkomt de inkomhal met gastentoilet je op een logische en strakke indeling zonder verloren vierkante meters. De leefruimte van 47 m² baadt in het licht en sluit naadloos aan op het terras en de tuin, ideaal voor wie houdt van openheid en contact met buiten. De open keuken van 13 m² vormt het hart van de woning en biedt alle ruimte voor een stijlvol kookeiland of royale werkzone. Achter de keuken bevindt zich een ruime berging van 10,5 m². Op de verdieping zorgt een lichtrijke nachthal met raam voor een aangename circulatie. Drie volwaardige kinderkamers bieden elk plaats voor een dubbel bed en kast of kunnen perfect een bureau, dressing of sportkamer huisvesten, terwijl de master bedroom ruimer is opgevat en vlot de mogelijkheid biedt om een eigen dressing te integreren. De badkamer is uitgerust voor maximaal comfort met een inloopdouche, ligbad en dubbele lavabo. Een apart toilet en extra bergruimte vervolledigen deze praktische bovenverdieping. Een modern ontwerp, een perfecte indeling en een locatie die rust en natuur combineert met bereikbaarheid maken van deze woning een buitenkans in Averbode. Voor deze woning betaal je incl. alle kosten zo'n 483.000 euro. Oplevering 2027. Contacteer ons voor een werfbezoek.
Energie
![]() |
- E-peil: E0
- Beglazing: Hoog efficient driedubbel
Op de kaart

Financieel
| Prijs | |
|---|---|
| Kadastraal inkomen (niet geïndexeerd) | € 0 |
| Kadastraal inkomen (geïndexeerd) | € 0 |
Berekening kosten
Je aankoopkosten? Die heb je snel berekend via de knop hieronder.
Bijkomende info
Gebouw
| Bouwjaar | 2026 |
|---|---|
| Staat | Nieuw |
| Bouwcertificaat | Nee |
| Bewoonbaar (m²) | 190 |
| Verdieping | 0 |
| Badkamers | 1 |
| Slaapkamers | 4 |
| Verdiepingen | 0 |
| Garages | 0 |
| Parkeerplaatsen | 0 |
| Doucheruimtes | 0 |
| Toiletten | 2 |
Faciliteiten
| Beglazing | Hoog efficient driedubbel |
|---|---|
| Elektrisch keuringsattest | Ja |
Perceel
| Overstromingsgevoelig | Geen |
|---|---|
| P-score | D |
| G-score | A |
| Voorkeurrecht | Ja |
| Totale oppervlakte (m²) | 567 |
| Bebouwde oppervlakte (m²) | 0 |
| Tuin oppervlakte (m²) | 0 |
| Oppervlakte terras (m²) | 20 |
| Oriëntatie tuin | Oost |
Vergunning
| Vergunning | Aanvraag ingediend |
|---|---|
| Verkavelingsvergunning | Aanvraag ingediend |
Uitrusting
| Investeringspand | Nee |
|---|---|
| Geschikt voor praktijk | Nee |
| Parking | Nee |
| Garage | Nee |
| Thuiskantoor | Nee |
| Kelder | Nee |
| Zolder | Nee |
| Tuin | Ja |
| Terras | Ja |
| Lift | Nee |
| Rioolaansluiting | Nee |
| Gasaansluiting | Nee |
| Wateraansluiting | Nee |
| Elektriciteitsaansluiting | Nee |
| TV aansluiting | Nee |
| Internetaansluiting | Nee |
| Telefoonaansluiting | Nee |
