In optie
Gezinswoning met lichtrijke orangerie op gegeerde, groene locatie in Scherpenheuvel-Zichem
€ 349.000
Een pand van Immo Persyn
Favoriet
Jouw zoektocht
Jouw scoretabel voor dit pand
Aan het laden...
Jouw geplande bezichtigingen
Aan het laden...
Overzicht
- 155 m² bewoonbaar
- 1783 m² grond
- 3 Slaapkamer(s)
- 1 Badkamer(s)
- 1 Toilet(ten)
- 1 Garage(s)
Beschrijving
Ontdek deze open bebouwing aan de Brabantsebaan 49 in Scherpenheuvel-Zichem, gelegen op een gegeerde locatie dankzij de rustige ligging en de groene omgeving. Het ruime perceel van 1783 m² en de bewoonbare oppervlakte van circa 155 m² bieden een aangename woonervaring. De woning uit 1959 is grotendeels instapklaar en beschikt over een moderne leefruimte met keramisch parket. De keuken is praktisch ingedeeld en geeft toegang tot de een aansluitende lichtrijke orangerie.
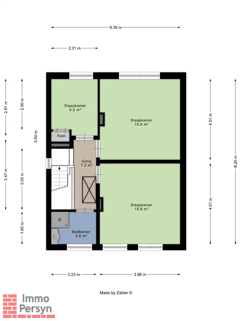
Verder omvat de woning drie slaapkamers, een badkamer, een apart toilet en een vrijstaande garage. Achteraan de woning is er ook nog een berging aanwezig en een technische (verwarmings)ruimte. Hoewel het pand een EPC-label E heeft en dus renovatieplichtig is, toont de EPC-simulatie aan dat een eenvoudige vervanging van de stookolieketel door een gasketel volstaat om het label naar D te verbeteren.
Met haar sterke basis, uitzonderlijk perceel en bijzonder rustige, groene ligging is deze woning een unieke kans voor wie op zoek is naar een comfortabele en goed gelegen woonst met toekomstpotentieel.
INDELING
Kelder: Kelderruimte
Gelijkvloers: inkomhal, woonkamer, eetkamer, keuken, veranda, apart toilet, berging, technische ruimte
Eerste verdieping: 3 slaapkamers, badkamer, nachthal
Contacteer ons vandaag nog voor een afspraak. Mail naar sander@immopersyn.be of bel 013 444 008.
Verder omvat de woning drie slaapkamers, een badkamer, een apart toilet en een vrijstaande garage. Achteraan de woning is er ook nog een berging aanwezig en een technische (verwarmings)ruimte. Hoewel het pand een EPC-label E heeft en dus renovatieplichtig is, toont de EPC-simulatie aan dat een eenvoudige vervanging van de stookolieketel door een gasketel volstaat om het label naar D te verbeteren.
Met haar sterke basis, uitzonderlijk perceel en bijzonder rustige, groene ligging is deze woning een unieke kans voor wie op zoek is naar een comfortabele en goed gelegen woonst met toekomstpotentieel.
INDELING
Kelder: Kelderruimte
Gelijkvloers: inkomhal, woonkamer, eetkamer, keuken, veranda, apart toilet, berging, technische ruimte
Eerste verdieping: 3 slaapkamers, badkamer, nachthal
Contacteer ons vandaag nog voor een afspraak. Mail naar sander@immopersyn.be of bel 013 444 008.
Energie
![]() |
- Energieverbruik: 440 kWh/m²/jaar
- E-peil: E0
- Beglazing: Onbekend
Let op, de renovatieverplichting in Vlaanderen verplicht de koper om deze woning na aankoop te renoveren tot een betere energieprestatie. Lees er alles over in dit artikel
Extra budget nodig voor je renovatie?
De overheid helpt je dit pand energetisch te renoveren! Hieronder zie je het premiebedrag dat je mogelijks van de overheid krijgt.
Het huidige EPC-label is:

Op de kaart

Financieel
| Prijs |
|---|
Berekening kosten
Je aankoopkosten? Die heb je snel berekend via de knop hieronder.
Bijkomende info
Gebouw
| Bouwjaar | 1959 |
|---|---|
| Renovatie jaar | 2014 |
| Staat | Goed onderhouden |
| Bewoonbaar (m²) | 155 |
| Badkamers | 1 |
| Slaapkamers | 3 |
| Verdiepingen | 0 |
| Garages | 1 |
| Parkeerplaatsen | 0 |
| Toiletten | 1 |
Faciliteiten
| Keuken uitrusting | Goed uitgerust |
|---|---|
| Septische tank | Nee |
Perceel
| Overstromingsgevoelig | Geen |
|---|---|
| P-score | C |
| G-score | C |
| Totale oppervlakte (m²) | 1783 |
| Bebouwde oppervlakte (m²) | 0 |
| Oriëntatie tuin | Noordwest |
Vergunning
| Verkavelingsvergunning | Geen beschikbaar |
|---|
Uitrusting
| Investeringspand | Nee |
|---|---|
| Parking | Nee |
| Garage | Ja |
| Zolder | Ja |
| Opslagruimte | Ja |
| Lift | Nee |
| Rioolaansluiting | Nee |
| Gasaansluiting | Nee |
| Wateraansluiting | Ja |
| Elektriciteitsaansluiting | Ja |
| Internetaansluiting | Ja |
| Telefoonaansluiting | Ja |
| Zonnepanelen | Nee |
| Zonneboiler | Nee |
| Alarm | Nee |
| Videofoon | Nee |
| Grondwaterput | Nee |
Een pand van
Immo Persyn
Wij staan voor u klaar om u te begeleiden in de zoektocht naar uw thuis
U, als klant, staat bij ons centraal.
Wij maken graag tijd voor u.
Wij stellen onze expertise ten dienste van u.
Wij gaan niet voor kwantiteit, maar voor kwaliteit.
Daarom dat wij ook ’s avonds en op zaterdag beschikbaar zijn voor u.
ZICBRA49CC
Leer meer over vastgoed
24 April 2026
Duurzaam gelegen woning? Check je Mobiscore
23 March 2026
Op Spotto zoeken als een pro: 10 slimme tips
21 March 2026
Hoeveel kan ik lenen om een huis te kopen?
01 March 2026



