2 te renoveren panden/projectgrond | VANAF 175.000 EURO
€ 175.000
Een pand van Wijns Vastgoed
Overzicht
- 428 m² grond
Beschrijving
Te renoveren panden in het centrum van de gemeente Testelt met het station op wandelafstand.
Deze woningen kan u renoveren naar eigen smaak en budget of u kan ze afbreken en een nieuwbouwproject realiseren.
Het bouwen van vier appartementen of twee gezinswoningen (GB en HOB) zijn mogelijke opties die door de eigenaar reeds werden besproken met de gemeente.
Uiteraard dient u zelf uw wensen en plannen tot realisatie te bevragen bij de dienst ruimtelijke ordening van de gemeente Scherpenheuvel-Zichem.
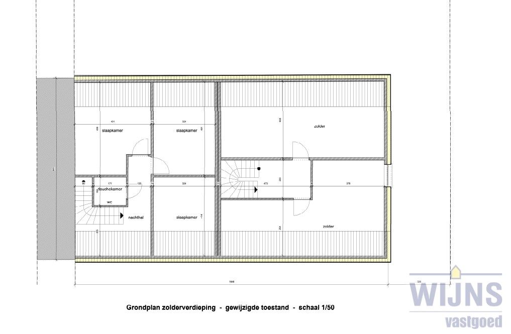
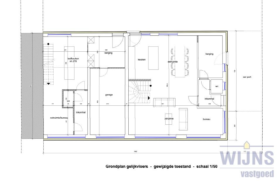
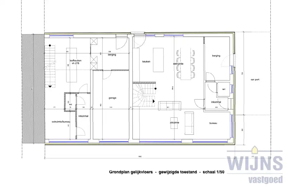
Plannen van de huidige toestand en eventuele realisatie kan u vinden bij de foto's.
De oppervlakte van beide percelen bedraagt samen 428 m² en de totale straatbreedte bedraagt 19.75 meter.
Wanneer u beslist om de panden niet af te breken is de renovatieplicht van toepassing (energielabel F).
Voor meer info of een bezoek ter plaatse kan u Wim contacteren via 0475335566 of mail wim@wijns.be.
Deze woningen kan u renoveren naar eigen smaak en budget of u kan ze afbreken en een nieuwbouwproject realiseren.
Het bouwen van vier appartementen of twee gezinswoningen (GB en HOB) zijn mogelijke opties die door de eigenaar reeds werden besproken met de gemeente.
Uiteraard dient u zelf uw wensen en plannen tot realisatie te bevragen bij de dienst ruimtelijke ordening van de gemeente Scherpenheuvel-Zichem.
Plannen van de huidige toestand en eventuele realisatie kan u vinden bij de foto's.
De oppervlakte van beide percelen bedraagt samen 428 m² en de totale straatbreedte bedraagt 19.75 meter.
Wanneer u beslist om de panden niet af te breken is de renovatieplicht van toepassing (energielabel F).
Voor meer info of een bezoek ter plaatse kan u Wim contacteren via 0475335566 of mail wim@wijns.be.
Energie
![]() |
- Energieverbruik: 1030 kWh/m²/jaar
- E-peil: E0
- Beglazing: Onbekend
Let op, de renovatieverplichting in Vlaanderen verplicht de koper om deze woning na aankoop te renoveren tot een betere energieprestatie. Lees er alles over in dit artikel
Op de kaart

Financieel
| Prijs |
|---|
Berekening kosten
Je aankoopkosten? Die heb je snel berekend via de knop hieronder.
Bijkomende info
Perceel
| P-score | A |
|---|---|
| Totale oppervlakte (m²) | 428 |
Vergunning
| Verkavelingsvergunning | Geen beschikbaar |
|---|
Uitrusting
| Investeringspand | Nee |
|---|---|
| Rioolaansluiting | Nee |
| Gasaansluiting | Nee |
| Wateraansluiting | Nee |
| Elektriciteitsaansluiting | Nee |
| Internetaansluiting | Nee |
| Telefoonaansluiting | Nee |
Een pand van
Wijns Vastgoed
Wijns Vastgoed - meer dan 20 jaar ervaring!
Vastgoedbemiddeling is meer dan ooit een zaak voor professionelen die er zich voltijds mee bezig houden.
Immers de verkoop van een onroerend goed is meer dan alleen maar tot een overeenkomst komen van een bepaalde prijs. We blijven er dan ook op hameren dat een vastgoedtransactie te belangrijk is om het gauw even zelf te doen.
WC/120525C
Leer meer over vastgoed
01 March 2026
Wanneer heb ik een bouwvergunning of omgevingsvergunning nodig?
17 February 2026
Hoe breng ik een bod uit op een woning?
24 November 2025
Uitgezocht voor jouw gemeente: Hoeveel stijgt de waarde van je woning door een renovatie?
22 October 2025
