Unieke bouwgrond op een prachtige locatie!
€ 195.000
Een pand van Immo Liv'it
Jouw zoektocht
Overzicht
- 285.36 m² bewoonbaar
- 754 m² grond
- 1 Tuin
Beschrijving
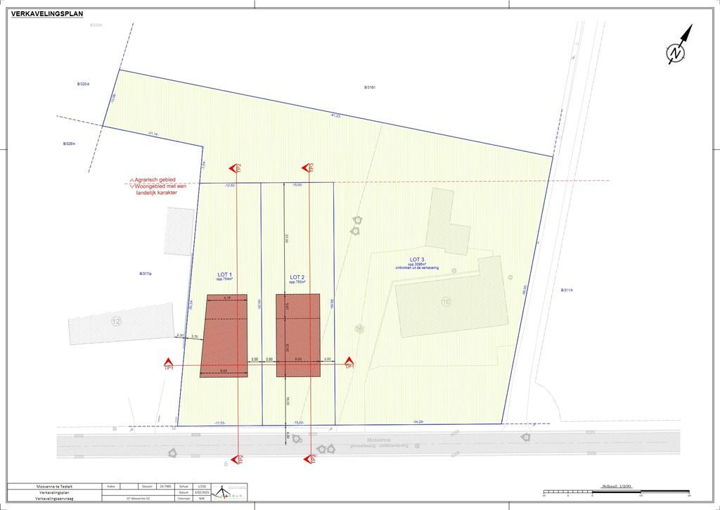
Deze prachtige bouwgrond, 7a 54ca groot, is gelegen op een rustige locatie te midden van velden met een knap uitzicht.
Deze bouwgrond is voorzien voor het realiseren een open bebouwing, waarbij de gevel tot wel 9m 84cm meter breed mag zijn.
De bouwdiepte op het gelijkvloers bedraagt maar liefst 17m, op de 1e verdieping 12m.
Dit maakt dat u een riante woning kan realiseren van 285m² bewoonbare oppervlakte!
Nog niet genoeg? Een derde verdieping onder het dak? Dat kan zeker!
Een bijgebouw is enkel toegestaan in de achtertuin.
- Het bijgebouw heeft maximaal 1 bouwlaag.
- Het bijgebouw heeft een max. dakoppervlakte van 40m².
Tevens mag u ook nog een terras aanleggen tot wel 30m².
Ook een ingegraven of op de grond geplaatst zwembad/-vijver met aanhorigheden met een totale maximale oppervlakte van 40m² en een maximale hoogte van 1.50m is toegelaten in de achtertuin.
En de locatie, die is top!
Zeer rustig gelegen doch dichtbij alles wat u maar nodig heeft.
Winkels, scholen, bakker, treinstation... evenals de verbindingswegen die u dagdagelijks moet gebruiken.
Is deze unieke bouwgrond iets voor u? Zie je jezelf hier al wonen? Neem contact op voor meer info via info@immolivit.be of 016 15 31 15.
Energie
- E-peil: E0
- Beglazing: Onbekend
Op de kaart

Financieel
| Prijs | |
|---|---|
| Kadastraal inkomen (niet geïndexeerd) | € 0 |
| Kadastraal inkomen (geïndexeerd) | € 0 |
Berekening kosten
Je aankoopkosten? Die heb je snel berekend via de knop hieronder.
Bijkomende info
Gebouw
| Bouwcertificaat | Nee |
|---|
Perceel
| Diepte (m) | 50 |
|---|---|
| Breedte (m) | 17 |
| Overstromingsgevoelig | Geen |
| P-score | A |
| Voorkeurrecht | Nee |
| Totale oppervlakte (m²) | 754 |
| Oriëntatie tuin | Noord |
Vergunning
| Vergunning | Geen beschikbaar |
|---|---|
| Verkavelingsvergunning | Vergunning beschikbaar |
Uitrusting
| Investeringspand | Nee |
|---|---|
| Rioolaansluiting | Nee |
| Gasaansluiting | Nee |
| Wateraansluiting | Nee |
| Elektriciteitsaansluiting | Nee |
| TV aansluiting | Nee |
| Internetaansluiting | Nee |
| Telefoonaansluiting | Nee |