Mooie bouwgrond voor driegevelwoning, grenzend aan bos
€ 120.000
Een pand van Lissens
Overzicht
- 543 m² grond
Beschrijving
Heel landelijk, maar toch centraal (nabij invalswegen tussen Scherpenheuvel en Aarschot, op wandelafstand van het station van Testelt, uitstekende verbinding met E 314), alsook mooi hoger gelegen perceel bouwgrond voor driegevelwoning, grenzend aan bos. Testelt heeft een leuke commerciële kern met onder meer Carrefour, apotheek, fruitwinkel, traiteur en een aantal modewinkels.
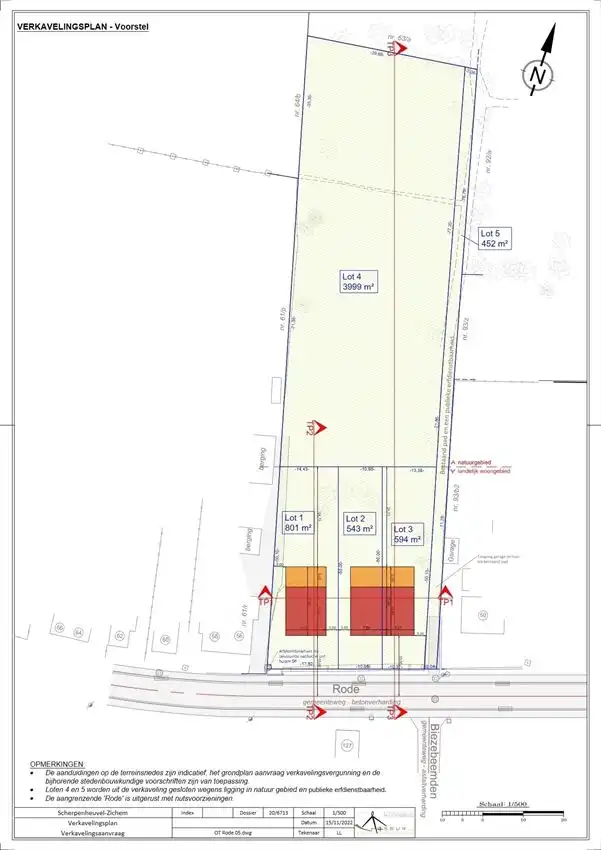
Lot 2 is een perceel bouwgrond voor een ééngezinswoning in halfopen verband met noordwestgerichte tuinzijde en heeft een gemeten oppervlakte van 5 a 43 ca. Straatbreedte is 10,88m, waardoor gevelbreedte 7,86m is. Je mag 17m diep bouwen op het gelijkvloers en een volwaardige verdieping van 12m diepte optrekken. De meeste gangbare dakvormen zijn toegestaan. Louter gebogen daken niet. Complementaire functie of beroepsruimte met geringere oppervlakte dan de woonfunctie toegelaten. Afzonderlijk garagebouw, carport en/of kelder toegelaten.
De verkavelings- en overige voorschriften (met betrekking tot zwembaden, verhardingen, afsluitingen enz.) waarvan de meeste conform het vrijstellingsbesluit, kunnen worden opgevraagd bij ons kantoor.
Energie
- E-peil: E0
- Beglazing: Onbekend
Op de kaart

Downloads
- bodemattest ABA_24105C006200C000_20230778741.pdf
- Gewestinfo-O2023-0553431-29_6_2023.pdf
- Herstelvorderingen-O2023-0553436-29_6_2023.pdf
- metingsplan 02082023.pdf
- OngeschiktOnbewoonbaar-O2023-0553437-29_6_2023.pdf
- OnroerendErfgoed-O2023-0553434-29_6_2023.pdf
- Overstromingsgevaar-O2023-0553432-29_6_2023.pdf
- PV vredegerecht 15092022.pdf
- RechtVanVoorkoop-O2023-0553433-29_6_2023.pdf
- sted uittr VIP-00036874.pdf
- verkavelingsplan Rode - Biezebeemde 9.3.2023.pdf
Financieel
| Prijs | |
|---|---|
| Kadastraal inkomen (niet geïndexeerd) | € 0 |
| Kadastraal inkomen (geïndexeerd) | € 0 |
Berekening kosten
Je aankoopkosten? Die heb je snel berekent via de knop hieronder.
Bijkomende info
Gebouw
| Bouwcertificaat | Nee |
|---|
Perceel
| Breedte (m) | 10 |
|---|---|
| Overstromingsgevoelig | Geen |
| P-score | A |
| Voorkeurrecht | Nee |
| Totale oppervlakte (m²) | 543 |
| Oriëntatie tuin | Noordwest |
Vergunning
| Vergunning | Geen beschikbaar |
|---|---|
| Verkavelingsvergunning | Vergunning beschikbaar |
Uitrusting
| Investeringspand | Nee |
|---|---|
| Rioolaansluiting | Nee |
| Gasaansluiting | Nee |
| Wateraansluiting | Nee |
| Elektriciteitsaansluiting | Nee |
| TV aansluiting | Nee |
| Internetaansluiting | Nee |
| Telefoonaansluiting | Nee |