Dakappartement Patershof
 € 375.000  
Een pand van Immo Diest
Overzicht
- 82 m² bewoonbaar
 - 2 Slaapkamer(s)
 - 1 Badkamer(s)
 - 1 Toilet(ten)
 - 1 Tuin
 
Beschrijving
RESIDENTIE PORTIERSWONING EN PATERSHOF STAAN VOOR COMFORT, CENTRAAL WONEN IN EEN PARK
Wil je centraal wonen aan de rand van Stadspark Cerckel te Diest?
Deze moderne nieuwbouw omvat twee appartementen met ruim terras, private tuin, en telkens een autostaanplaats en fietsenberging.
Afwerking volgens de hoogste standaarden op gebied van esthetiek, comfort en energieverbruik.
Adres: Michel Theysstraat 8A1 Diest - Patershof
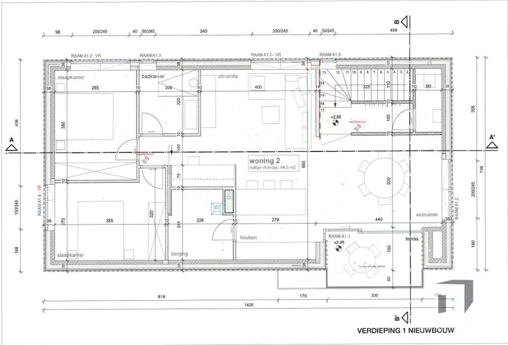
Het appartement op de eerste verdieping heeft:
- twee slaapkamers;
- mooi terras van 12 m²;
- een private tuin van 94 m²;
- toegang tot een gemeenschappelijke tuin;
- een private autostaanplaats;
- ruimte voor fietsen en vuilnisverzameling;
Label A+: verwarming met warmtepomp, zonnepanelen en vloerverwarming, ook warm water wordt hiermee aangemaakt.
Mogelijkheid tot aankoop casco-plus+ voor 375 000 Euro + BTW.
Mogelijkheid tot aankoop met volledige afwerking ( = inclusief bevloering, sanitair, binnendeuren en keuken... ) voor 399 998 Euro + BTW.
Je koopt aan 6% BTW indien je aan de voorwaarden voldoet.
Mogelijkheid tot aankoop van een ondergrondse garagebox in Residentie Cerckel aan 25 000 Euro + 12% registratierechten.
Je kan intreden tegen maart 2025.
Ook gecharmeerd? Plan uw bezoek op www.immodiest.be of 013/31.25.22 of beter nog bel Jan op 0498 52 64 52 of mail naar jan@immodiest.be
Jan Vanonckelen geeft U dan een persoonlijke rondleiding.
Immo Diest, dè pionier in verkoop van nieuwbouwvastgoed, verkocht reeds meer dan 600 nieuwbouwpanden te Diest en Tessenderlo en Halen. Steeds het grootste aanbod in nieuwbouw!
Energie
![]()  | 
- E-peil: E0
 - Verwarming: Gas
 - Beglazing: Standaard dubbel
 
Op de kaart

Financieel
| Prijs | |
|---|---|
| Kadastraal inkomen (niet geïndexeerd) | € 0 | 
| Kadastraal inkomen (geïndexeerd) | € 0 | 
Berekening kosten
Je aankoopkosten? Die heb je snel berekent via de knop hieronder.
Bijkomende info
Gebouw
| Bouwjaar | 2024 | 
|---|---|
| Staat | Goed onderhouden | 
| Bouwcertificaat | Nee | 
| Bewoonbaar (m²) | 82 | 
| Verdieping | 1 | 
| Badkamers | 1 | 
| Slaapkamers | 2 | 
| Verdiepingen | 1 | 
| Garages | 0 | 
| Parkeerplaatsen | 1 | 
| Doucheruimtes | 0 | 
| Toiletten | 1 | 
Faciliteiten
| Keuken uitrusting | Luxueus uitgerust | 
|---|---|
| Materiaal ramenomlijstingen | Aluminium | 
| Beglazing | Standaard dubbel | 
| Brandstof primaire verwarming | Gas | 
| Elektrisch keuringsattest | Ja | 
Perceel
| Overstromingsgevoelig | Mogelijk overstromingsgevoelig | 
|---|---|
| Voorkeurrecht | Nee | 
| Bebouwde oppervlakte (m²) | 0 | 
| Tuin oppervlakte (m²) | 96 | 
| Oppervlakte terras (m²) | 12 | 
| Oriëntatie tuin | West | 
Vergunning
| Vergunning | Vergunning beschikbaar | 
|---|
Uitrusting
| Investeringspand | Nee | 
|---|---|
| Geschikt voor praktijk | Nee | 
| Parking | Ja | 
| Garage | Nee | 
| Thuiskantoor | Nee | 
| Kelder | Nee | 
| Zolder | Nee | 
| Tuin | Ja | 
| Terras | Ja | 
| Lift | Nee | 
| Rioolaansluiting | Nee | 
| Gasaansluiting | Nee | 
| Wateraansluiting | Nee | 
| Elektriciteitsaansluiting | Nee | 
| TV aansluiting | Nee | 
| Internetaansluiting | Nee | 
| Telefoonaansluiting | Nee | 
Appartementsblok
| Aantal verdiepingen | 1 | 
|---|---|
| Lift | Nee | 
