VOLLEDIG AFGEWERKTE EN ENERGIEZUINIGE NIEUWBOUWWONING OP PERCEEL VAN 4A88CA TE SCHAFFEN
€ 515.000
Een pand van Het Vastgoedkantoor
Overzicht
- 262 m² bewoonbaar
- 488 m² grond
- 3 Slaapkamer(s)
- 1 Garage(s)
Beschrijving
Volledig afgewerkte en energiezuinige nieuwbouwwoning op perceel van 4are88ca te Schaffen.
Belangrijkste troeven:
- Centrale doch zeer rustige ligging
- Kwalitatief afgewerkt volgens lastenboek
- Praktisch ingedeelde 262m² bewoonbare oppervlakte!
- 3 tot 5 slaapkamers mogelijk
- Daikin Warmtepomp
- Zonnepanelen (3600 Wp)
- Buitenaanleg en omheining inbegrepen
- Oplevering Augustus 2026
- Vaste trap naar zolder
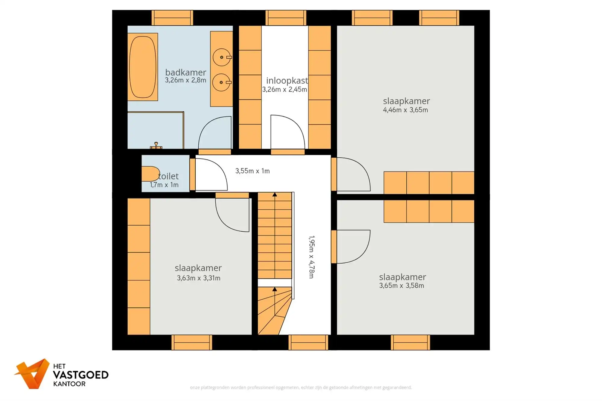
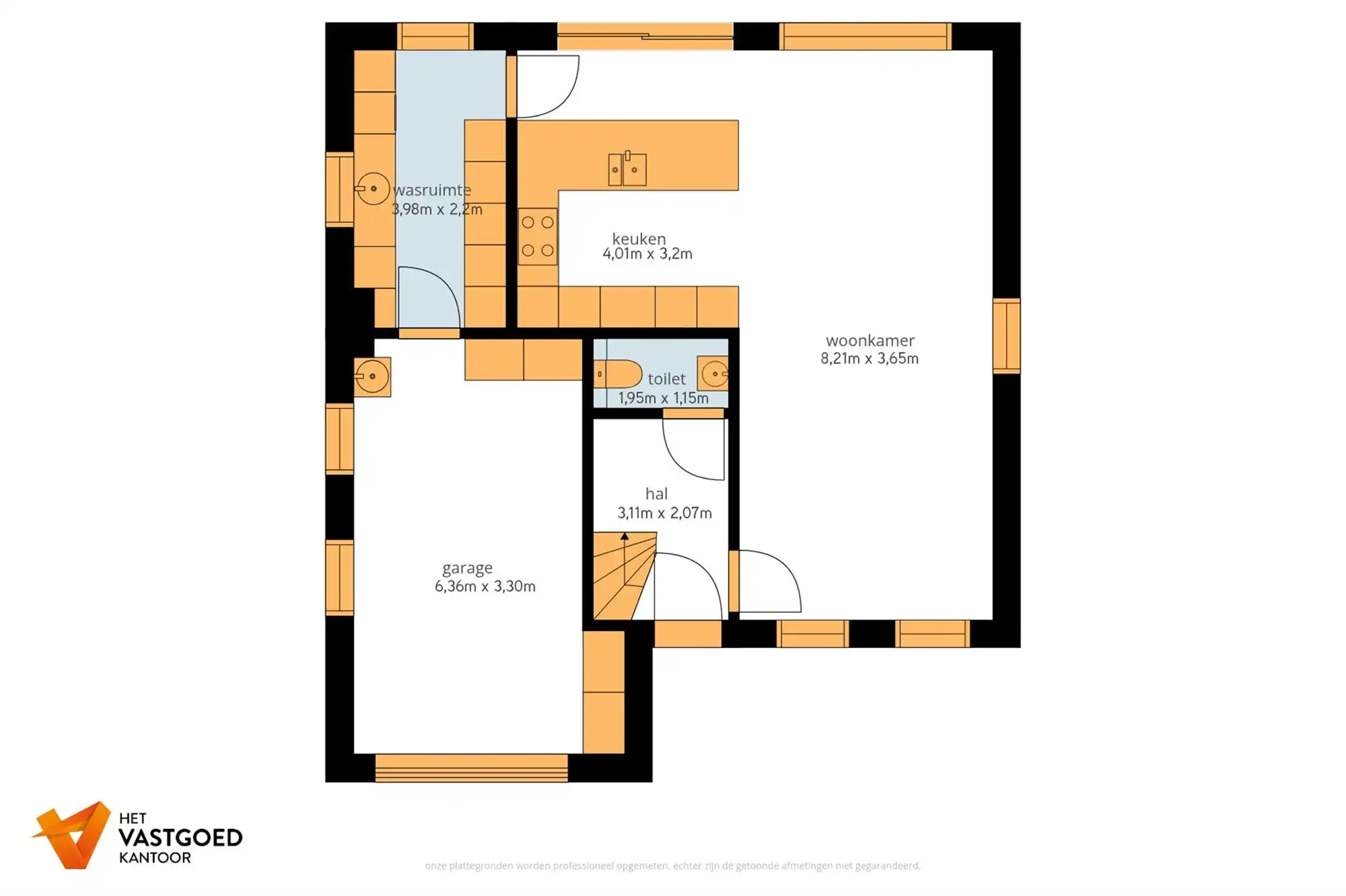
Bekijk zeker ook de grondplannen met de afmetingen. Zo krijgt u van thuis uit al een perfect beeld van wat deze woning te bieden heeft!
Wenst u meer info of een vrijblijvende bezichtiging, contacteer dan ons kantoor op het nummer 011 85 15 15 en wij helpen u graag verder.
Energie
- E-peil: E20
- Beglazing: Standaard dubbel
Op de kaart

Financieel
| Prijs | |
|---|---|
| Kadastraal inkomen (niet geïndexeerd) | € 0 |
| Kadastraal inkomen (geïndexeerd) | € 0 |
Berekening kosten
Je aankoopkosten? Die heb je snel berekend via de knop hieronder.
Bijkomende info
Gebouw
| Bouwjaar | 2026 |
|---|---|
| Staat | Nieuw |
| Bouwcertificaat | Nee |
| Bewoonbaar (m²) | 262 |
| Verdieping | 2 |
| Gevelbreedte | 10 |
| Badkamers | 0 |
| Slaapkamers | 3 |
| Verdiepingen | 0 |
| Garages | 1 |
| Parkeerplaatsen | 0 |
| Doucheruimtes | 0 |
| Toiletten | 0 |
Faciliteiten
| Materiaal ramenomlijstingen | PVC |
|---|---|
| Beglazing | Standaard dubbel |
| Elektrisch keuringsattest | Nee |
Perceel
| Diepte (m) | 30 |
|---|---|
| Breedte (m) | 17 |
| Overstromingsgevoelig | Geen |
| P-score | B |
| G-score | A |
| Voorkeurrecht | Nee |
| Totale oppervlakte (m²) | 488 |
| Bebouwde oppervlakte (m²) | 0 |
| Tuin oppervlakte (m²) | 0 |
| Oppervlakte terras (m²) | 0 |
Vergunning
| Vergunning | Vergunning beschikbaar |
|---|---|
| Verkavelingsvergunning | Vergunning beschikbaar |
Uitrusting
| Investeringspand | Nee |
|---|---|
| Geschikt voor praktijk | Nee |
| Parking | Nee |
| Garage | Ja |
| Thuiskantoor | Nee |
| Kelder | Nee |
| Zolder | Ja |
| Tuin | Nee |
| Terras | Nee |
| Lift | Nee |
| Rioolaansluiting | Ja |
| Gasaansluiting | Nee |
| Wateraansluiting | Ja |
| Elektriciteitsaansluiting | Ja |
| TV aansluiting | Ja |
| Internetaansluiting | Ja |
| Telefoonaansluiting | Ja |