Perceel bouwgrond te Molenstede voor vrijstaande woning (6a33ca)
 € 158.000  
Een pand van Immo Diest
Overzicht
- 633 m² grond
 - 1 Tuin
 
Beschrijving
In Molenstede verkoopt Immo Diest een perceel bouwgrond, bestemd voor een vrijstaande woning:
Lot 1 met een oppervlakte van 6a 33ca en met volgende afmetingen volgens verkavelingsplan:
- breedte perceel straatzijde (Langenberg): 16m
- gevelbreedte: 10m
- mogelijke bouwdiepte gelijkvloers: 15m, verdieping: 12m
- dakvorm: vrij te kiezen (dakhelling tussen 0° en 50°)
Perceel grenst achteraan quasi tegen de Turnhoutsebaan.
Centrum en station Diest op fietsafstand.
Vrij te bezichtigen. Verdere bouwvoorschriften op aanvraag te bekomen.
Uw eigen woning bouwen in Molenstede? Hier kan het.
Het perceel is vrij van aannemer en architect.
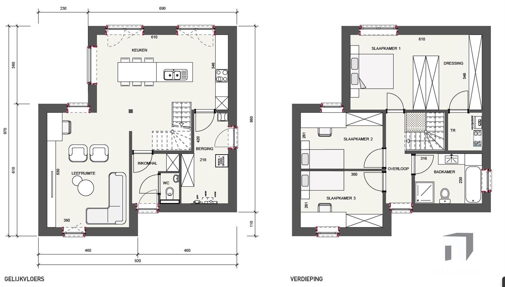
Om je een eerste idee te geven van de bouwkost en mogelijkheden werden er enkele 3d-beelden en plannen toegevoegd van de bouwfirma AVL.
Een moderne A+ woning met een oppervlakte van 152m² en 3 slaapkamers bouw je met AVL al voor zo'n 280.000 Euro (btw, architect en veiligheidscoördinator inbegrepen).
Bel Immo Diest voor meer info: 013 31 25 22
Energie
- E-peil: E0
 - Beglazing: Onbekend
 
Op de kaart

Financieel
| Prijs | |
|---|---|
| Kadastraal inkomen (niet geïndexeerd) | € 0 | 
| Kadastraal inkomen (geïndexeerd) | € 0 | 
Berekening kosten
Je aankoopkosten? Die heb je snel berekent via de knop hieronder.
Bijkomende info
Gebouw
| Bouwcertificaat | Nee | 
|---|
Perceel
| Breedte (m) | 16 | 
|---|---|
| Overstromingsgevoelig | Geen | 
| P-score | C | 
| Voorkeurrecht | Nee | 
| Totale oppervlakte (m²) | 633 | 
Vergunning
| Vergunning | Geen beschikbaar | 
|---|---|
| Verkavelingsvergunning | Vergunning beschikbaar | 
Uitrusting
| Investeringspand | Nee | 
|---|---|
| Rioolaansluiting | Nee | 
| Gasaansluiting | Nee | 
| Wateraansluiting | Nee | 
| Elektriciteitsaansluiting | Nee | 
| TV aansluiting | Nee | 
| Internetaansluiting | Nee | 
| Telefoonaansluiting | Nee |