Rustig gelegen rijwoning op stadsrand Tienen
€ 162.000
Een pand van LTC Vastgoedadvies
Favoriet
Jouw zoektocht
Jouw scoretabel voor dit pand
Aan het laden...
Jouw geplande bezichtigingen
Aan het laden...
Overzicht
- 120 m² bewoonbaar
- 208 m² grond
- 3 Slaapkamer(s)
- 2 Badkamer(s)
- 2 Toilet(ten)
- 1 Living(s)
- 1 Tuin
Beschrijving
In een doodlopende straat treffen we deze interessante rijwoning aan. Via de inkomhal komen we in de leefruimte met aansluitend de eetplaats. De grote leefkeuken heeft zicht op het terras en de tuin met berging. De badkamer op het gelijkvloers is uitgerust met een ligbad en een toilet. Hier bevinden zich de aansluitingen voor de was- en droogkast. Op de eerste verdieping zijn er 2 slaapkamers en een tweede badkamer met inloopdouche en 2de toilet. De zolder is volledig afgewerkt als 3de slaapkamer. Het pand is onderkelderd met plaats voor de nutsvoorzieningen. Na de nodige opfriswerken is dit een woning met mogelijkheden. Bel ons gerust voor meer inlichtingen.
Energie
![]() |
- EPC Certificaat: 20231016-0003016060-RES-1
- Verwarming: Gas
- Beglazing: Standaard dubbel
Let op, de renovatieverplichting in Vlaanderen verplicht de koper om deze woning na aankoop te renoveren tot een betere energieprestatie. Lees er alles over in dit artikel
Extra budget nodig voor je renovatie?
De overheid helpt je dit pand energetisch te renoveren! Hieronder zie je het premiebedrag dat je mogelijks van de overheid krijgt.
Het huidige EPC-label is:

Op de kaart

Financieel
| Prijs | |
|---|---|
| Kadastraal inkomen (niet geïndexeerd) | € 468 |
Berekening kosten
Je aankoopkosten? Die heb je snel berekend via de knop hieronder.
Bijkomende info
Gebouw
| Renovatie jaar | 2022 |
|---|---|
| Staat | Goed onderhouden |
| Is beschermd | Nee |
| Bewoonbaar (m²) | 120 |
| Gevelbreedte | 5.1 |
| Kelder | 1 |
| Badkamers | 2 |
| Slaapkamers | 3 |
| Verdiepingen | 3 |
| Keukens | 1 |
| Leefruimtes | 1 |
| Toiletten | 2 |
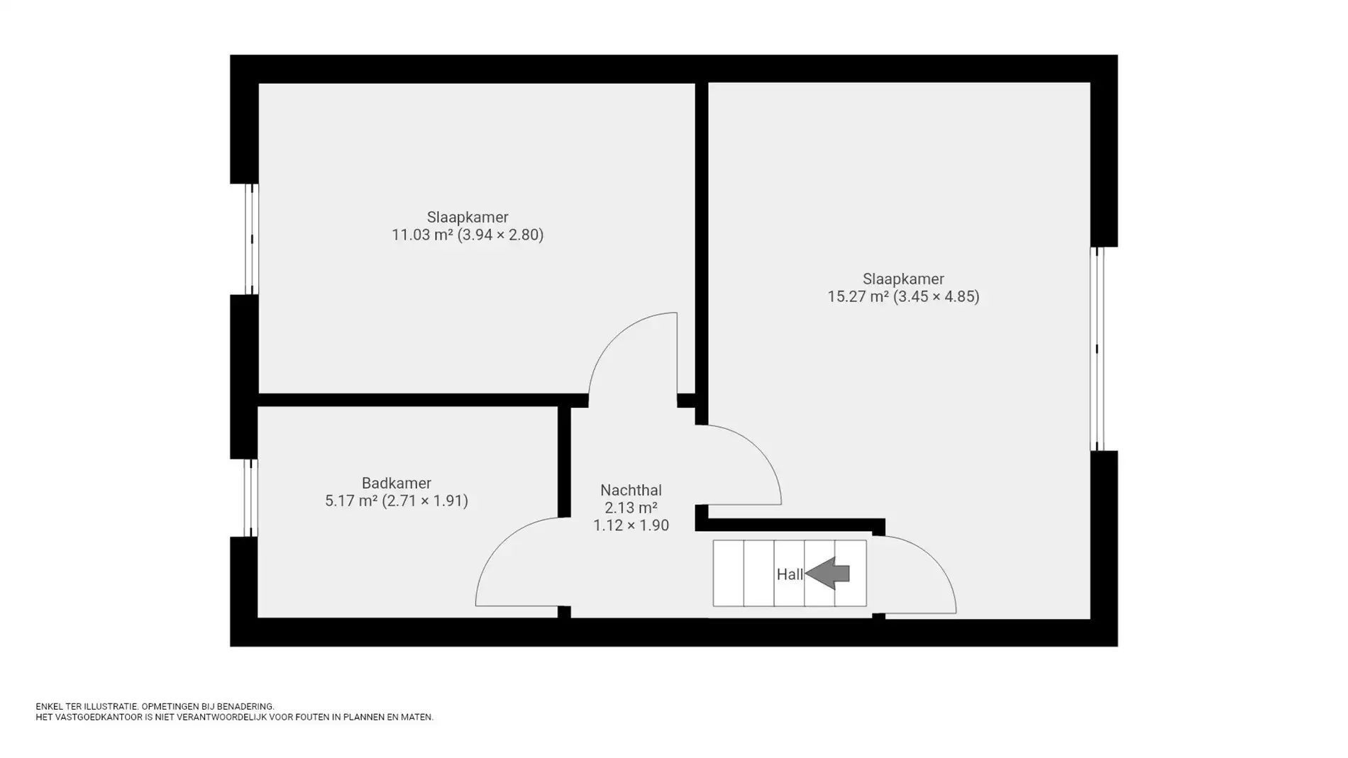
Ruimtes
| Kelder | 15.84 m² |
|---|---|
| Slaapkamer | 1527 m² |
| Slaapkamer | 1103 m² |
| Slaapkamer | 2325 m² |
| Tuin | 105 m² |
| Keuken | 20.72 m² |
| Leefruimte | 11.05 m² |
| Terras | 9 m² |
Faciliteiten
| Keuken | Gesloten keuken |
|---|---|
| Keuken uitrusting | Goed uitgerust |
| Materiaal ramenomlijstingen | PVC |
| Beglazing | Standaard dubbel |
| Luiken | Ja |
| Primair verwarmingstype | Centrale verwarming |
| Brandstof primaire verwarming | Gas |
| Warm water type | Geen verwarming |
Perceel
| Diepte (m) | 22 |
|---|---|
| Breedte (m) | 5 |
| Overstromingsgevoelig | Geen |
| P-score | A |
| G-score | A |
| Voorkeurrecht | Nee |
| Totale oppervlakte (m²) | 208 |
| Bebouwde oppervlakte (m²) | 81 |
| Tuin oppervlakte (m²) | 105 |
| Oppervlakte terras (m²) | 9 |
| Oriëntatie tuin | Noordwest |
Vergunning
| Vergunning | Geen beschikbaar |
|---|---|
| Verkavelingsvergunning | Geen beschikbaar |
| Type gebied | Stedelijk |
Uitrusting
| Meerdere eigenaars | Nee |
|---|---|
| Geschikt als kangoeroewoning | Nee |
| Geschikt voor rolstoelgebruikers | Nee |
| Geschikt voor praktijk | Nee |
| Volledig onderkelderd | Nee |
| Parking | Nee |
| Garage | Nee |
| Thuiskantoor | Nee |
| Kelder | Ja |
| Zolder | Nee |
| Opslagruimte | Nee |
| Tuin | Ja |
| Terras | Ja |
| Lift | Nee |
| Rioolaansluiting | Nee |
| Gasaansluiting | Ja |
| Wateraansluiting | Ja |
| Elektriciteitsaansluiting | Ja |
| TV aansluiting | Ja |
| Internetaansluiting | Nee |
| Zonnepanelen | Nee |
| Zonneboiler | Nee |
| Alarm | Nee |
| Zwembad | Nee |
| Jacuzzi | Nee |
| Toonzaal | Nee |
| Ventilatie | Nee |
Een pand van
LTC Vastgoedadvies
Hét immokantoor van Vlaams-Brabant
LTC Vastgoedadvies ontwikkelde zich de afgelopen decennia tot hét immokantoor van Vlaams-Brabant. Zowel potentiële kopers, huurders, investeerders als verkopers en verhuurders vertrouwen dagelijks op onze persoonlijke en klantgerichte aanpak. Daarnaast onderscheiden we ons op vlak van knowhow en gericht advies.
21444/JSK/IS
Leer meer over vastgoed
24 April 2026
Duurzaam gelegen woning? Check je Mobiscore
23 March 2026
Op Spotto zoeken als een pro: 10 slimme tips
21 March 2026
Hoeveel kan ik lenen om een huis te kopen?
01 March 2026



