CASCO nieuwbouw met 4 slaapkamers, zolder en kelder
€ 329.500
Een pand van LTC Vastgoedadvies
Favoriet
Jouw zoektocht
Jouw scoretabel voor dit pand
Aan het laden...
Jouw geplande bezichtigingen
Aan het laden...
Overzicht
- 223 m² bewoonbaar
- 368 m² grond
- 4 Slaapkamer(s)
- 2 Badkamer(s)
- 2 Toilet(ten)
- 1 Living(s)
- 1 Tuin
Beschrijving
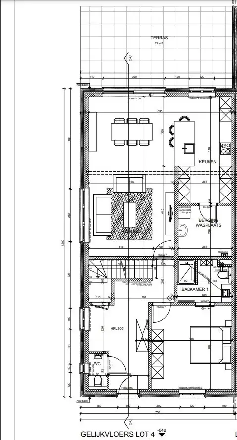
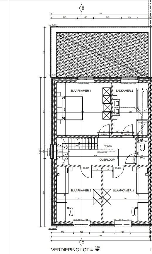
Zeer mooie casco woning gelegen in het gezellige Goetsenhoven. Het pand heeft PVC en ALU ramen met HR+ beglazing, 21 zonnepanelen en regenwaterput van 5.000 liter. De woning is gelegen op een perceel van 3a 68ca. De indeling kan nog altijd ingedeeld worden zoals u zelf wenst. Momenteel omvat het gelijkvloers: inkomhal, gastentoilet, grote slaapkamers, badkamer, ruime leefruimte, keuken en berging. De verdieping omvat 3 grote slaapkamer en badkamer. De zolder is bereikbaar met vaste trap en hier kan men ook nog 2 slaapkamers maken. De gehele woning is onderkelderd. Een casco-woning wordt fiscaal gelijkgesteld met een bouwgrond en dus dienen er 12% registratierechten te worden betaald.
Energie
- Verwarming: Geen
- Beglazing: Standaard dubbel
Op de kaart

Financieel
| Prijs | |
|---|---|
| Kadastraal inkomen (niet geïndexeerd) | € 0 |
| Kadastraal inkomen (geïndexeerd) | € 0 |
Berekening kosten
Je aankoopkosten? Die heb je snel berekend via de knop hieronder.
Bijkomende info
Gebouw
| Bouwjaar | 2023 |
|---|---|
| Is beschermd | Nee |
| Bewoonbaar (m²) | 223 |
| Gevelbreedte | 7.5 |
| Zolder | 1 |
| Kelder | 1 |
| Badkamers | 2 |
| Slaapkamers | 4 |
| Verdiepingen | 3 |
| Keukens | 1 |
| Leefruimtes | 1 |
| Toiletten | 2 |
Ruimtes
| Zolder | 52 m² |
|---|---|
| Kelder | 98 m² |
| Slaapkamer | 15.9 m² |
| Slaapkamer | 16.6 m² |
| Slaapkamer | 13.8 m² |
| Slaapkamer | 13.8 m² |
| Tuin | 147 m² |
| Keuken | 13.5 m² |
| Leefruimte | 32.2 m² |
Faciliteiten
| Materiaal ramenomlijstingen | PVC |
|---|---|
| Beglazing | Standaard dubbel |
| Luiken | Nee |
| Primair verwarmingstype | Geen verwarming |
| Brandstof primaire verwarming | Geen |
| Warm water type | Geen verwarming |
Perceel
| Diepte (m) | 14 |
|---|---|
| Breedte (m) | 10 |
| P-score | A |
| G-score | A |
| Voorkeurrecht | Nee |
| Totale oppervlakte (m²) | 368 |
| Bebouwde oppervlakte (m²) | 112 |
| Tuin oppervlakte (m²) | 147 |
| Oriëntatie tuin | Zuid |
Vergunning
| Vergunning | Vergunning beschikbaar |
|---|---|
| Verkavelingsvergunning | Vergunning beschikbaar |
| Bouwovertreding dagvaardiging | Geen |
| Type gebied | Landelijk |
Uitrusting
| Meerdere eigenaars | Nee |
|---|---|
| Geschikt als kangoeroewoning | Nee |
| Geschikt voor rolstoelgebruikers | Nee |
| Geschikt voor praktijk | Nee |
| Volledig onderkelderd | Nee |
| Parking | Nee |
| Garage | Nee |
| Thuiskantoor | Nee |
| Kelder | Ja |
| Zolder | Ja |
| Opslagruimte | Nee |
| Tuin | Ja |
| Terras | Nee |
| Lift | Nee |
| Rioolaansluiting | Nee |
| Gasaansluiting | Nee |
| Wateraansluiting | Nee |
| Elektriciteitsaansluiting | Ja |
| TV aansluiting | Nee |
| Internetaansluiting | Nee |
| Zonnepanelen | Ja |
| Zonneboiler | Nee |
| Alarm | Nee |
| Zwembad | Nee |
| Jacuzzi | Nee |
| Toonzaal | Nee |
| Ventilatie | Nee |
Een pand van
LTC Vastgoedadvies
Hét immokantoor van Vlaams-Brabant
LTC Vastgoedadvies ontwikkelde zich de afgelopen decennia tot hét immokantoor van Vlaams-Brabant. Zowel potentiële kopers, huurders, investeerders als verkopers en verhuurders vertrouwen dagelijks op onze persoonlijke en klantgerichte aanpak. Daarnaast onderscheiden we ons op vlak van knowhow en gericht advies.
A21632/LSK/IS
Leer meer over vastgoed
23 March 2026
Op Spotto zoeken als een pro: 10 slimme tips
21 March 2026
Hoeveel kan ik lenen om een huis te kopen?
01 March 2026
Wanneer heb ik een bouwvergunning of omgevingsvergunning nodig?
17 February 2026