Eigendom met karakter
€ 295.000
Een pand van Immo Tibo
Overzicht
- 107 m² bewoonbaar
- 2 Slaapkamer(s)
- 1 Badkamer(s)
Beschrijving
Deze woning is gelegen in een rustige straat in Meldert, deelgemeente van Hoegaarden en met vlotte toegang tot de E40 richting Leuven of Brussel.
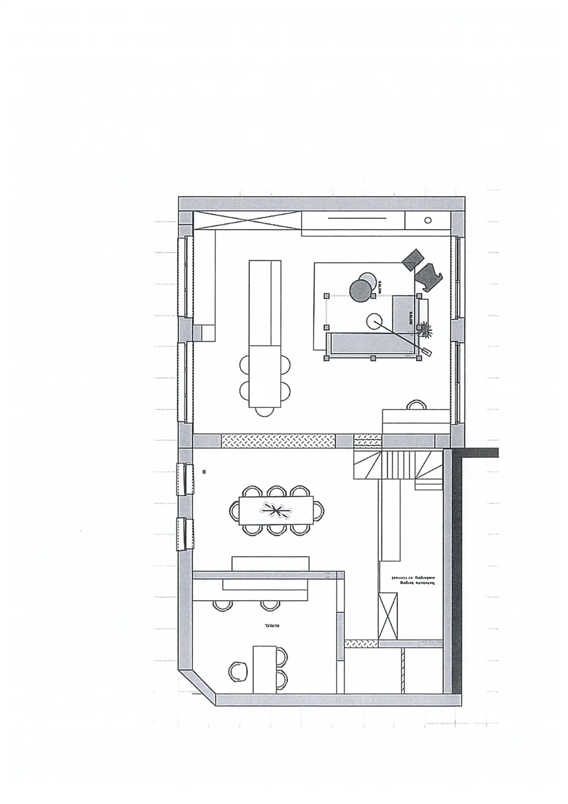
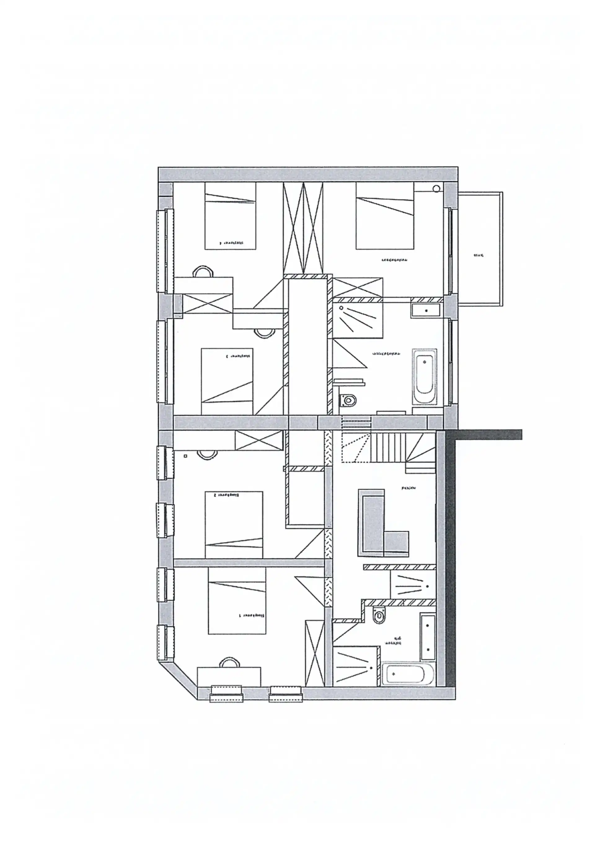
Mits verbouwing wordt dit een riante gezinswoning met mogelijkheid tot 4 of zelfs 5 slaapkamers.
Daarnaast is er bij volledige benutting van de bovenverdieping mogelijkheid tot 2 badkamers of 1 badkamer en dressing. Gelieve hiervoor even door te foto's te gaan waarbij een voorstel tot verbouwing werd uitgewerkt.
De gevel vooraan heeft een lengte van om en bij de 20 meter die volledig benut kan worden.
Het voorstel is om de schuur om te bouwen tot een grote leefkeuken met zicht op de tuin. De huidige leefruimte kan worden omgebouwd tot living met apart bureel.
Bijkomend voordeel aan deze woning is de staanplaats waar minstens 2 wagens kunnen staan.
Energie
![]() |
- EPC Certificaat: 20250525-0003609887-RES-1
- Energieverbruik: 475 kWh/m²/jaar
- E-peil: E0
- Verwarming: Gas
- Beglazing: Onbekend
Extra budget nodig voor je renovatie?

Op de kaart

Downloads
Financieel
| Prijs | |
|---|---|
| Kadastraal inkomen (niet geïndexeerd) | € 0 |
| Kadastraal inkomen (geïndexeerd) | € 0 |
Berekening kosten
Je aankoopkosten? Die heb je snel berekend via de knop hieronder.
Bijkomende info
Gebouw
| Bouwcertificaat | Nee |
|---|---|
| Bewoonbaar (m²) | 107 |
| Verdieping | 0 |
| Badkamers | 1 |
| Slaapkamers | 2 |
| Verdiepingen | 0 |
| Garages | 0 |
| Parkeerplaatsen | 0 |
| Doucheruimtes | 0 |
| Toiletten | 0 |
Faciliteiten
| Keuken uitrusting | Standaard |
|---|---|
| Brandstof primaire verwarming | Gas |
| Elektrisch keuringsattest | Nee |
Perceel
| Overstromingsgevoelig | Geen |
|---|---|
| P-score | A |
| G-score | A |
| Voorkeurrecht | Nee |
| Bebouwde oppervlakte (m²) | 0 |
| Tuin oppervlakte (m²) | 0 |
| Oppervlakte terras (m²) | 0 |
Vergunning
| Vergunning | Geen beschikbaar |
|---|
Uitrusting
| Investeringspand | Nee |
|---|---|
| Geschikt voor praktijk | Nee |
| Parking | Nee |
| Garage | Nee |
| Thuiskantoor | Nee |
| Kelder | Nee |
| Zolder | Nee |
| Tuin | Nee |
| Terras | Nee |
| Lift | Nee |
| Rioolaansluiting | Nee |
| Gasaansluiting | Nee |
| Wateraansluiting | Nee |
| Elektriciteitsaansluiting | Nee |
| TV aansluiting | Nee |
| Internetaansluiting | Nee |
| Telefoonaansluiting | Nee |



