KARAKTERVOLLE WONING OP EEN PRACHTIG PERCEEL VAN 33A IN EEN OASE VAN RUST IN LINTER
€ 585.000
Een pand van De woonmakers
Overzicht
- 273 m² bewoonbaar
- 3324 m² grond
Beschrijving
Droom jij van een unieke, karaktervolle woning op een prachtig perceel van 33 are in Linter? Dan is dit zoekertje zeker iets voor jou!
Gelegen in een oase van rust, te midden van het groen, vind je deze prachtige karaktervolle woonst op een knap perceel van 33A24CA. Deze unieke eigendom combineert charme, privacy en natuur op een manier die zelden te vinden is.
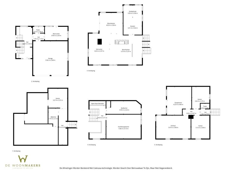
Met een bewoonbare oppervlakte van 273m², verdeeld over verschillende bouwlagen, ademt deze woning karakter en warmte. De authentieke elementen en de sfeervolle afwerking zorgen voor prachtige uitstraling. De woning werd ontworpen met een uitgesproken gevoel wat resulteert in een dynamische indeling met leefruimtes op verschillende niveaus. Deze opbouw zorgt voor een interessante flow doorheen de woning, waarbij elke ruimte een eigen identiteit krijgt zonder in te boeten aan openheid.
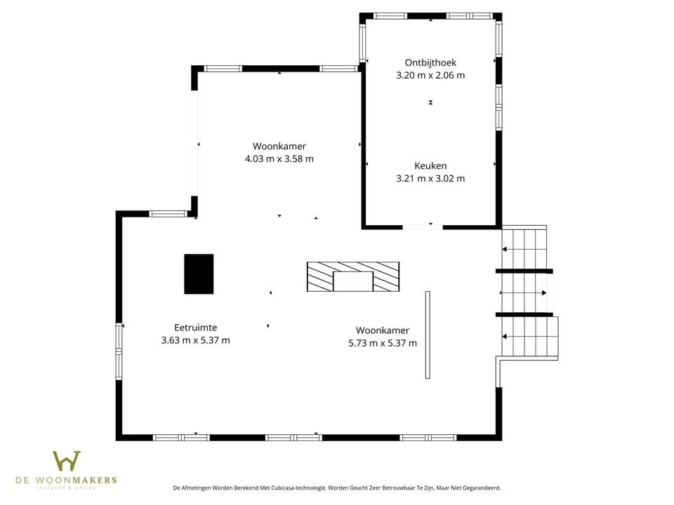
De woning is op het gelijkvloers ingedeeld in verschillende zithoeken en de keuken met ontbijthoek.
Verder beschikt de woning nog over 5 slaapkamers en een badkamer met douche en bad.
Buiten is het puur genieten van de prachtig aangelegde tuin met zicht op achterliggende velden. Op het terras kan je heerlijk vertoeven en genieten van een heerlijke barbecue met vrienden of familie!
De woning is voorzien van een ruime dubbele garage.
Neem contact met ons op het nummer 011/98.88.98 of via info@dewoonmakers.be
Gelegen in een oase van rust, te midden van het groen, vind je deze prachtige karaktervolle woonst op een knap perceel van 33A24CA. Deze unieke eigendom combineert charme, privacy en natuur op een manier die zelden te vinden is.
Met een bewoonbare oppervlakte van 273m², verdeeld over verschillende bouwlagen, ademt deze woning karakter en warmte. De authentieke elementen en de sfeervolle afwerking zorgen voor prachtige uitstraling. De woning werd ontworpen met een uitgesproken gevoel wat resulteert in een dynamische indeling met leefruimtes op verschillende niveaus. Deze opbouw zorgt voor een interessante flow doorheen de woning, waarbij elke ruimte een eigen identiteit krijgt zonder in te boeten aan openheid.
De woning is op het gelijkvloers ingedeeld in verschillende zithoeken en de keuken met ontbijthoek.
Verder beschikt de woning nog over 5 slaapkamers en een badkamer met douche en bad.
Buiten is het puur genieten van de prachtig aangelegde tuin met zicht op achterliggende velden. Op het terras kan je heerlijk vertoeven en genieten van een heerlijke barbecue met vrienden of familie!
De woning is voorzien van een ruime dubbele garage.
Neem contact met ons op het nummer 011/98.88.98 of via info@dewoonmakers.be
Droom jij van een unieke, karaktervolle woning op een prachtig perceel van 33 are in Linter? Dan is dit zoekertje zeker iets voor jou!
Gelegen in een oase van rust, te midden van het groen, vind je deze prachtige karaktervolle woonst op een knap perceel van 33A24CA. Deze unieke eigendom combineert charme, privacy en natuur op een manier die zelden te vinden is.
Met een bewoonbare oppervlakte van 273m², verdeeld over verschillende bouwlagen, ademt deze woning karakter en warmte. De authentieke elementen en de sfeervolle afwerking zorgen voor prachtige uitstraling. De woning werd ontworpen met een uitgesproken gevoel wat resulteert in een dynamische indeling met leefruimtes op verschillende niveaus. Deze opbouw zorgt voor een interessante flow doorheen de woning, waarbij elke ruimte een eigen identiteit krijgt zonder in te boeten aan openheid.
De woning is op het gelijkvloers ingedeeld in verschillende zithoeken en de keuken met ontbijthoek.
Verder beschikt de woning nog over 5 slaapkamers en een badkamer met douche en bad.
Buiten is het puur genieten van de prachtig aangelegde tuin met zicht op achterliggende velden. Op het terras kan je heerlijk vertoeven en genieten van een heerlijke barbecue met vrienden of familie!
De woning is voorzien van een ruime dubbele garage, ideaal voor het veilig stallen van wagens, fietsen en extra opslagruimte.
Deze exclusieve eigendom biedt een uitzonderlijke kans voor wie opzoek is naar ruimte, rust en natuur, zonder in te boeten aan comfort en charme. Gelegen in Linter, geniet je van de landelijke omgeving met alle voorzieningen binnen handbereik.
Ben jij op zoek naar een unieke en karaktervolle woning? Mis deze kans niet en plan vandaag nog een bezoek. Dit uitzonderlijk domein moet je met eigen ogen zien om de magie ervan te ervaren! Neem contact met ons op het nummer 011/98.88.98 of via info@dewoonmakers.be
De vermelde oppervlaktes zijn indicatief. De Woonmakers kan niet verantwoordelijk gesteld worden voor de juistheid van de door zijn verstrekte gegevens.
Gelegen in een oase van rust, te midden van het groen, vind je deze prachtige karaktervolle woonst op een knap perceel van 33A24CA. Deze unieke eigendom combineert charme, privacy en natuur op een manier die zelden te vinden is.
Met een bewoonbare oppervlakte van 273m², verdeeld over verschillende bouwlagen, ademt deze woning karakter en warmte. De authentieke elementen en de sfeervolle afwerking zorgen voor prachtige uitstraling. De woning werd ontworpen met een uitgesproken gevoel wat resulteert in een dynamische indeling met leefruimtes op verschillende niveaus. Deze opbouw zorgt voor een interessante flow doorheen de woning, waarbij elke ruimte een eigen identiteit krijgt zonder in te boeten aan openheid.
De woning is op het gelijkvloers ingedeeld in verschillende zithoeken en de keuken met ontbijthoek.
Verder beschikt de woning nog over 5 slaapkamers en een badkamer met douche en bad.
Buiten is het puur genieten van de prachtig aangelegde tuin met zicht op achterliggende velden. Op het terras kan je heerlijk vertoeven en genieten van een heerlijke barbecue met vrienden of familie!
De woning is voorzien van een ruime dubbele garage, ideaal voor het veilig stallen van wagens, fietsen en extra opslagruimte.
Deze exclusieve eigendom biedt een uitzonderlijke kans voor wie opzoek is naar ruimte, rust en natuur, zonder in te boeten aan comfort en charme. Gelegen in Linter, geniet je van de landelijke omgeving met alle voorzieningen binnen handbereik.
Ben jij op zoek naar een unieke en karaktervolle woning? Mis deze kans niet en plan vandaag nog een bezoek. Dit uitzonderlijk domein moet je met eigen ogen zien om de magie ervan te ervaren! Neem contact met ons op het nummer 011/98.88.98 of via info@dewoonmakers.be
De vermelde oppervlaktes zijn indicatief. De Woonmakers kan niet verantwoordelijk gesteld worden voor de juistheid van de door zijn verstrekte gegevens.
Energie
![]() |
- EPC Certificaat: 20251023-0003716816-RES-2
- Energieverbruik: 293 kWh/m²/jaar
- E-peil: E0
- Beglazing: Standaard dubbel
Op de kaart

Financieel
| Prijs | |
|---|---|
| Kadastraal inkomen (niet geïndexeerd) | € 1.460 |
Berekening kosten
Je aankoopkosten? Die heb je snel berekent via de knop hieronder.
Bijkomende info
Gebouw
| Bouwjaar | 1980 |
|---|---|
| Bouwcertificaat | Nee |
| Bewoonbaar (m²) | 273 |
| Badkamers | 0 |
| Slaapkamers | 0 |
| Verdiepingen | 0 |
| Garages | 0 |
| Parkeerplaatsen | 0 |
| Toiletten | 0 |
Faciliteiten
| Beglazing | Standaard dubbel |
|---|---|
| Septische tank | Nee |
Perceel
| Overstromingsgevoelig | Geen |
|---|---|
| P-score | A |
| G-score | A |
| Totale oppervlakte (m²) | 3324 |
| Bebouwde oppervlakte (m²) | 0 |
Vergunning
| Verkavelingsvergunning | Vergunning beschikbaar |
|---|
Uitrusting
| Investeringspand | Nee |
|---|---|
| Parking | Nee |
| Garage | Nee |
| Lift | Nee |
| Rioolaansluiting | Nee |
| Gasaansluiting | Nee |
| Wateraansluiting | Nee |
| Elektriciteitsaansluiting | Nee |
| Internetaansluiting | Nee |
| Telefoonaansluiting | Nee |
| Zonnepanelen | Nee |
| Zonneboiler | Nee |
| Alarm | Nee |
| Videofoon | Nee |
| Grondwaterput | Nee |
Een pand van
De woonmakers
De Woonmakers Win-win in vastgoed
Bij De Woonmakers staat ervaring centraal. Sinds onze oprichting in 2020 hebben we ons voortdurend ontwikkeld als toonaangevend bedrijf in de vastgoedsector. Gedurende deze periode hebben we waardevolle inzichten verzameld en ons vakmanschap verfijnd om onze klanten een ongeëvenaarde dienstverlening te bieden.
Onze missie is om de perfecte match te creëren tussen individuen en vastgoed, en dit streven we na door onze diepgaande kennis van de markt te combineren met een innovatieve benadering van klantinteractie. Door te luisteren naar uw woonvoorkeuren en -behoeften, zijn we in staat om op maat gemaakte oplossingen te presenteren die naadloos aansluiten op uw levensstijl.
De drijvende krachten achter De Woonmakers, Jan en Krisja, delen een passie voor vastgoed en een toewijding om de klanten te voorzien van een ongeëvenaarde ervaring. Met jarenlange expertise in verschillende facetten van de vastgoedmarkt streven zij ernaar om een service te bieden die verder gaat dan alleen transacties. “Onze klanten kunnen rekenen op een persoonlijke aanpak die gericht is op het creëren van langdurige relaties en het leveren van op maat gemaakte oplossingen die voldoen aan hun specifieke behoeften.”
Heufstraat 46
Leer meer over vastgoed
24 November 2025
Uitgezocht voor jouw gemeente: Hoeveel stijgt de waarde van je woning door een renovatie?
22 October 2025
Hoeveel kan ik lenen om een huis te kopen?
11 June 2025
Huis kopen met bouwovertreding? Dit moet je weten
11 May 2025
