EXCLUSIEF WONEN IN EEN GERESTAUREERDE VIERKANTSHOEVE
Een pand van De woonmakers
Overzicht
- 240 m² grond
- 4 Slaapkamer(s)
- 2 Badkamer(s)
- 3 Toilet(ten)
Beschrijving
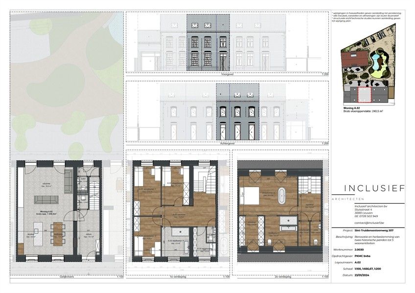
Op een idyllische locatie in het landelijke Orsmaal, langs de Sint-Truidensesteenweg 207, wordt de authentieke charme van een beschermde vierkantshoeve nieuw leven ingeblazen. Project Vuurmolen transformeert deze historische site tot een sfeervol, privatief woonerf met vijf volledig afgewerkte BEN-woningen, een prachtige gemeenschappelijke binnentuin en een natuurlijke zwemvijver. zowel Tienen als Sint-Truiden liggen op slechts tien minuten rijden, en ook de E40 en nabijgelegen treinstations zijn vlot bereikbaar. De vijf wooneenheden variëren in oppervlakte van 173 m² tot 325 m², verspreid over drie verdiepingen, en beschikken over twee tot vier slaapkamers. Dankzij de BEN-standaard (E-peil tussen 1 en 15) geniet je van bijzonder lage energiekosten en een uitstekend wooncomfort. ·10 zonnepanelen per woning ·Warmtepomp gekoppeld aan vloerverwarming ·Ventilatiesysteem type D met warmterecuperatie ·Voorziening voor laadpaal en tuinverlichting Elke woning wordt volledig afgewerkt in overleg met de koper. Zo kan je jouw persoonlijke stijl en voorkeuren laten doorschijnen in de keuze van materialen voor keuken, badkamer, vloeren en binnenschrijnwerk. Parkeren – Voor elke woning is er de mogelijkheid om een private parkeerplaats aan te kopen. Troeven in één oogopslag: ·Volledig afgewerkt in overleg met koper ·Gemeenschappelijke binnentuin met zwemvijver ·Private terrassen en parkeerplaatsen Neem contact op 011/98.88.98 of via info@dewoonmakers.be
AANKOOP ONDER REGISTRATIE
Op een idyllische locatie in het landelijke Orsmaal, langs de Sint-Truidensesteenweg 207, wordt de authentieke charme van een beschermde vierkantshoeve nieuw leven ingeblazen. Project Vuurmolen transformeert deze historische site tot een sfeervol, privatief woonerf met vijf volledig afgewerkte BEN-woningen, een prachtige gemeenschappelijke binnentuin en een natuurlijke zwemvijver.
Hier geniet je van de rust en het groene karakter van de streek, zonder in te boeten op bereikbaarheid: zowel Tienen als Sint-Truiden liggen op slechts tien minuten rijden, en ook de E40 en nabijgelegen treinstations zijn vlot bereikbaar.
Elke woning wordt gerealiseerd met respect voor het originele karakter van de hoeve, maar voorzien van alle moderne technieken en een hoogwaardige afwerking. De vijf wooneenheden variëren in oppervlakte van 173 m² tot 325 m², verspreid over drie verdiepingen, en beschikken over twee tot vier slaapkamers.
Dankzij de BEN-standaard (E-peil tussen 1 en 15) geniet je van bijzonder lage energiekosten en een uitstekend wooncomfort. Dit wordt mogelijk gemaakt door onder meer:
- 10 zonnepanelen per woning
- Warmtepomp gekoppeld aan vloerverwarming
- Ventilatiesysteem type D met warmterecuperatie
- Voorziening voor laadpaal en tuinverlichting
Elke woning wordt volledig afgewerkt in overleg met de koper. Zo kan je jouw persoonlijke stijl en voorkeuren laten doorschijnen in de keuze van materialen voor keuken, badkamer, vloeren en binnenschrijnwerk. Er zijn royale budgetten voorzien voor deze afwerking.
Keuken – Voorzien van kwaliteitsvolle inbouwtoestellen (AEG of gelijkwaardig), inclusief inductiekookplaat met geïntegreerde afzuiging, vaatwasser, koelkast en combi-oven.
Badkamer – Uitgerust met ligbad, inloopdouche, dubbel wastafelmeubel en toilet, met keramische wand- en vloerafwerking in de natte zones.
Materialen – Hoogwaardige vloerbekleding, stijlvolle binnendeuren (gelakt of fineer eik) en natuurstenen dorpels.
Vanuit je eigen aangelegd terras stap je zo de gemeenschappelijke binnentuin in, waar een natuurlijke zwemvijver het groene hart van het domein vormt. De volledige tuin, vijver en paden worden professioneel aangelegd en vormen een oase van rust voor bewoners.
Parkeren – Voor elke woning is er de mogelijkheid om een private parkeerplaats aan te kopen. Fietsenstallingen zijn voorzien op het domein.
Troeven in één oogopslag:
- Unieke herbestemming van een beschermde vierkantshoeve
- Volledig afgewerkt in overleg met koper
- Gemeenschappelijke binnentuin met zwemvijver
- Private terrassen en optionele parkeerplaatsen
- Uitstekende bereikbaarheid (E40, Tienen, Sint-Truiden, treinstations)
- Energiezuinig dankzij zonnepanelen, warmtepomp en topisolatie
De aansluitingskosten voor nutsvoorzieningen bedragen €5.000 inclusief BTW.
Ook is er een mogelijkheid tot het aankopen van een parkeerplaats aan €17.500
Wil jij wonen op een plek waar geschiedenis, duurzaamheid en comfort hand in hand gaan?
Neem contact op 011/98.88.98 of via info@dewoonmakers.be en ontdek hoe Project Vuurmolen jouw nieuwe thuis kan worden
Energie
- E-peil: E0
- Beglazing: Standaard dubbel
Op de kaart

Financieel
| Prijs |
|---|
Bijkomende info
Gebouw
| Bouwjaar | 2024 |
|---|---|
| Verdieping | 0 |
| Badkamers | 2 |
| Slaapkamers | 4 |
| Verdiepingen | 0 |
| Garages | 0 |
| Parkeerplaatsen | 1 |
| Toiletten | 3 |
Faciliteiten
| Keuken uitrusting | Goed uitgerust |
|---|---|
| Beglazing | Standaard dubbel |
| Septische tank | Nee |
Perceel
| Totale oppervlakte (m²) | 240 |
|---|---|
| Bebouwde oppervlakte (m²) | 0 |
Vergunning
| Verkavelingsvergunning | Geen beschikbaar |
|---|
Uitrusting
| Investeringspand | Nee |
|---|---|
| Parking | Ja |
| Garage | Nee |
| Lift | Nee |
| Rioolaansluiting | Nee |
| Gasaansluiting | Nee |
| Wateraansluiting | Nee |
| Elektriciteitsaansluiting | Nee |
| Internetaansluiting | Nee |
| Telefoonaansluiting | Nee |
| Zonnepanelen | Nee |
| Zonneboiler | Nee |
| Alarm | Nee |
| Videofoon | Nee |
| Grondwaterput | Nee |
Appartementsblok
| Lift | Nee |
|---|---|
| Intercom | Nee |