Prachtige BEN-woning nabij Leuven
€ 573.000
Een pand van Immo Liv'it
Jouw zoektocht
Overzicht
- 170.77 m² bewoonbaar
- 120 m² grond
- 3 Slaapkamer(s)
- 2 Badkamer(s)
- 1 Toilet(ten)
- 1 Tuin
Beschrijving
Prachtig afgewerkte nieuwbouwwoning te Korbeek-Lo (6% BTW mogelijk!)
Ben jij op zoek naar een nieuwbouwwoning dit goed gelegen is, afgewerkt kan worden naar keuze én zeer zuinig zal zijn in verbruik?
Dan ben je hier aan het juiste adres en kan deze 3 slaapkamer woning iets voor jou zijn.
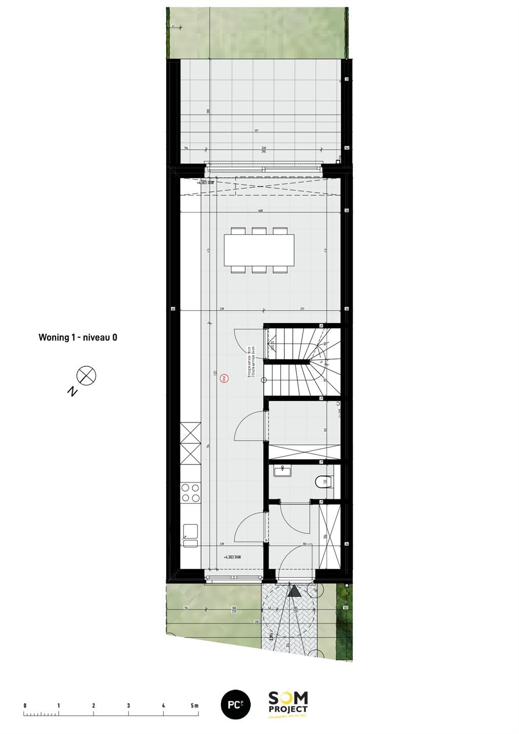
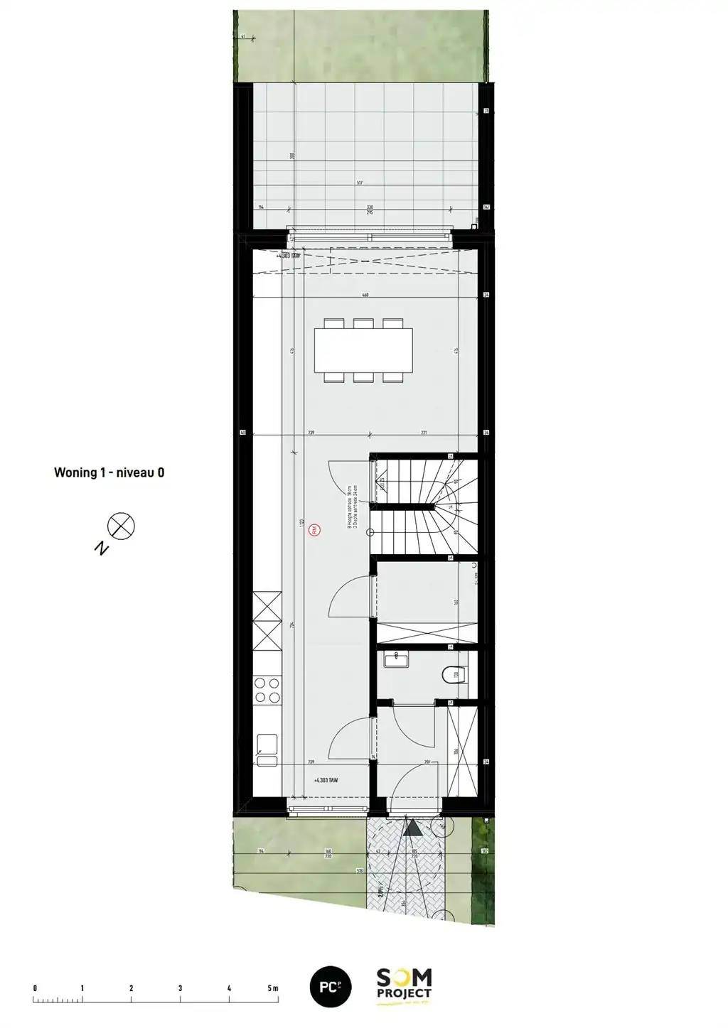
De indeling is als volgt: een inkomhal met voldoende ruimte voor vestiairekasten en een gastentoilet brengt ons naar de leefruimte met keuken die uitgeeft op het terras via een zeer groot schuifraam. Hierdoor zal er zeker geen gebrek zijn aan natuurlijk licht.
De eerste verdieping brengt ons naar een zithoek en een eerste slaapkamer die geniet van een aansluitende dressing en badkamer. De zithoek is voorzien van een vide waardoor je verbinding hebt met de gelijkvloerse verdieping en ook hier is de achtergevel volledig voorzien van een groot raam.
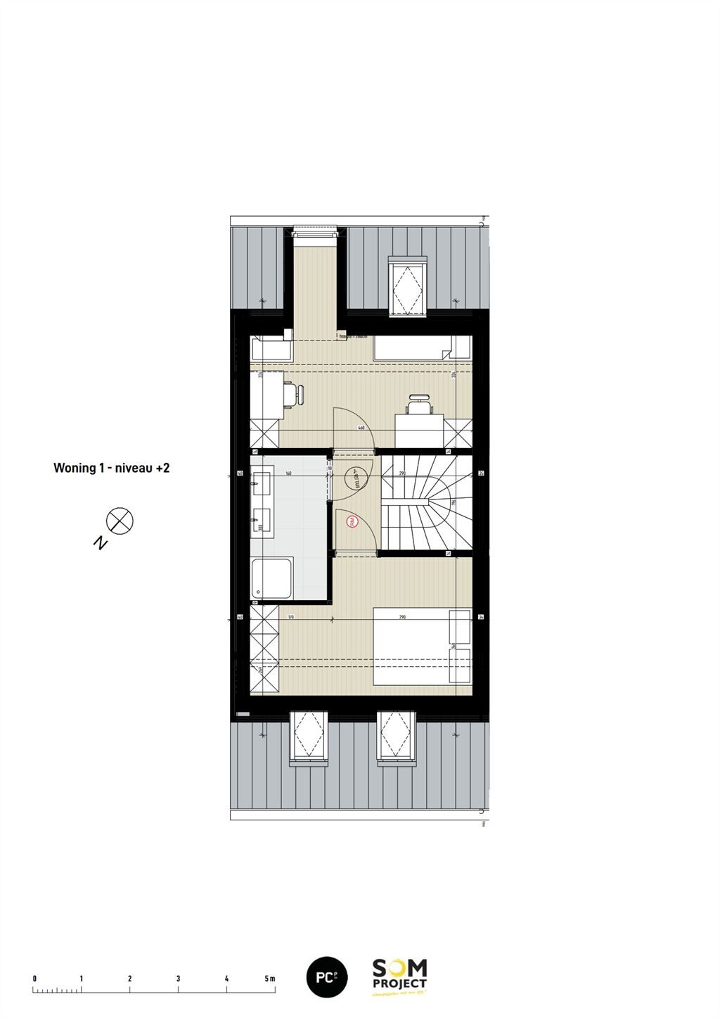
De hoogste verdieping is volledig afgewerkt met twee slaapkamers en een extra badkamer. Ideaal voor gezinnen met kinderen.
Als kers op de taart is ook het terras en tuinomheining volledig afgewerkt en voorzien in de prijs. Ook een ondergrondse kelderberging, die je via de woning kan bereiken, is inbegrepen. Er is de mogelijkheid ondergrondse staanplaatsen bij aan te kopen.
Benieuwd of deze woning iets voor jou is? Vraag dan nu meer info aan via info@immolivit.be of 016 15 31 15. Tot snel?
Energie
- E-peil: E0
- Beglazing: Standaard dubbel
Op de kaart

Financieel
| Prijs | |
|---|---|
| Kadastraal inkomen (niet geïndexeerd) | € 0 |
| Kadastraal inkomen (geïndexeerd) | € 0 |
Berekening kosten
Je aankoopkosten? Die heb je snel berekend via de knop hieronder.
Bijkomende info
Gebouw
| Bouwjaar | 2026 |
|---|---|
| Staat | Nieuw |
| Bouwcertificaat | Nee |
| Bewoonbaar (m²) | 170.77 |
| Verdieping | 0 |
| Gevelbreedte | 4.5 |
| Badkamers | 2 |
| Slaapkamers | 3 |
| Verdiepingen | 3 |
| Garages | 0 |
| Parkeerplaatsen | 0 |
| Doucheruimtes | 0 |
| Toiletten | 1 |
Faciliteiten
| Materiaal ramenomlijstingen | Aluminium |
|---|---|
| Beglazing | Standaard dubbel |
| Elektrisch keuringsattest | Ja |
Perceel
| Diepte (m) | 22 |
|---|---|
| Breedte (m) | 4 |
| Overstromingsgevoelig | Geen |
| P-score | A |
| Voorkeurrecht | Nee |
| Totale oppervlakte (m²) | 120 |
| Bebouwde oppervlakte (m²) | 60 |
| Tuin oppervlakte (m²) | 54 |
| Oppervlakte terras (m²) | 13 |
| Oriëntatie tuin | ZuidOost |
Vergunning
| Vergunning | Vergunning beschikbaar |
|---|
Uitrusting
| Investeringspand | Nee |
|---|---|
| Geschikt voor praktijk | Nee |
| Parking | Nee |
| Garage | Nee |
| Thuiskantoor | Nee |
| Kelder | Ja |
| Zolder | Nee |
| Tuin | Ja |
| Terras | Ja |
| Lift | Ja |
| Rioolaansluiting | Ja |
| Gasaansluiting | Nee |
| Wateraansluiting | Ja |
| Elektriciteitsaansluiting | Ja |
| TV aansluiting | Ja |
| Internetaansluiting | Ja |
| Telefoonaansluiting | Ja |