Nieuw
Bouwgrond voor open bebouwing op 31a
€ 210.000
Dorpsstraat - 3380 Glabbeek
Een pand van Century 21 Immo K
Overzicht
- 3101 m² grond
Overstromingsgevaar perceel
Beschrijving
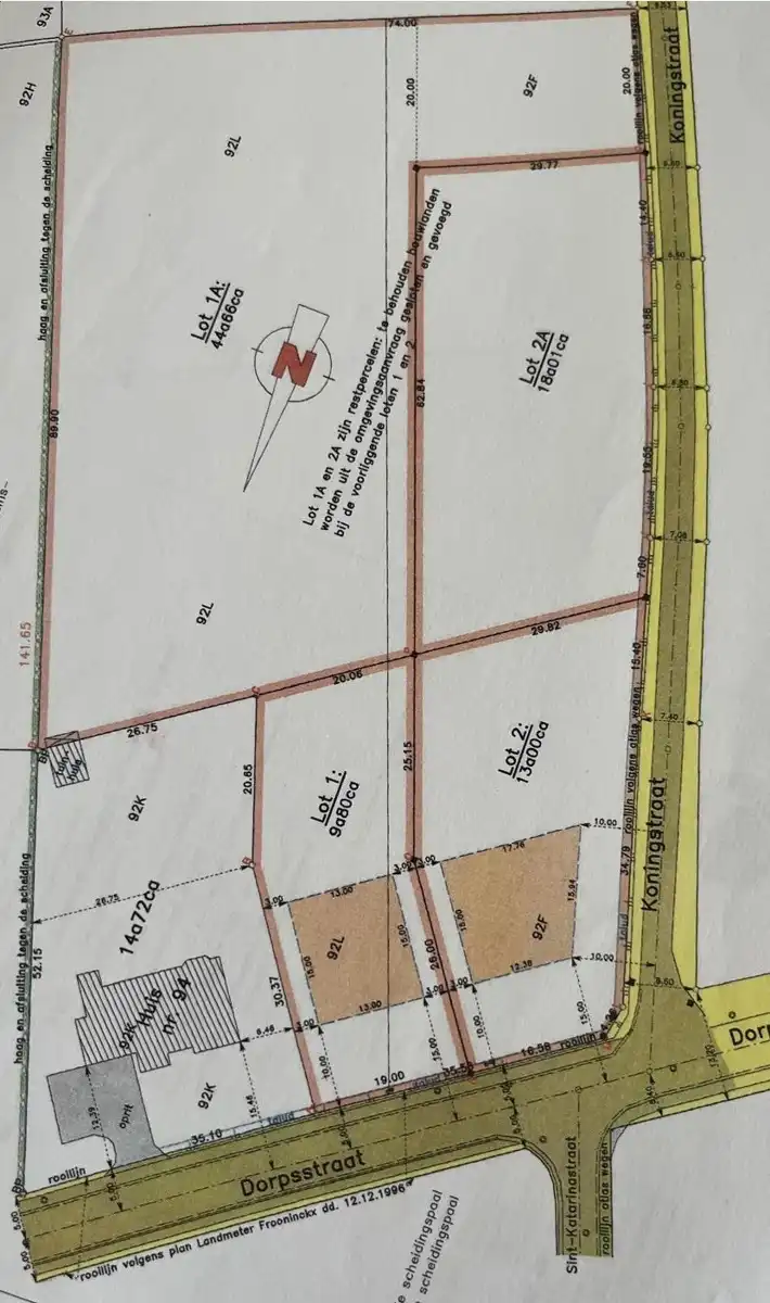
🌿 Prachtige bouwgrond voor open bebouwing op toplocatie 🌿 Aanduiding op plan als LOT 2 +2A!
Droom je van wonen in alle rust, omringd door groen, maar toch met een vlotte bereikbaarheid? Dan is dit uitzonderlijke perceel precies wat je zoekt!
Deze bouwgrond voor open bebouwing is gelegen in woongebied met landelijk karakter, op het kruispunt van de Koningstraat en de Dorpsstraat te Kapellen (Glabbeek).
Dankzij de zeer rustige ligging en het ontbreken van nabije buren geniet je hier van maximale privacy en een open uitzicht.
Met een voorgevelbreedte van 12,38 meter en een perceeloppervlakte van maar liefst 31 are (waarvan een deel achterliggend landbouwgrond is), biedt dit terrein tal van mogelijkheden voor het realiseren van jouw droomwoning.
Je kan bouwen met 2 bouwlagen, met een kroonlijsthoogte van:
6,5 meter bij een plat dak
6 meter bij een hellend dak
De zuidgerichte tuin zorgt voor een optimale lichtinval en is ideaal om volop te genieten van zonnige dagen 🌞
Bovendien is het perceel niet gelegen in overstromingsgevoelig gebied, wat een extra geruststelling biedt.
De ligging is een absolute troef: rustig en landelijk, maar toch nabij de autostrade en omliggende steden, waardoor je geniet van een perfecte combinatie van bereikbaarheid en woonkwaliteit.
📄 Stedenbouwkundige voorschriften zijn beschikbaar op aanvraag.
✨ Een unieke kans voor wie wil bouwen op een ruim, rustig en uitstekend gelegen perceel!
Benieuwd naar meer? Contacteer ons Century 21 Immo K Tienen en Sint-truiden op 016821778
Droom je van wonen in alle rust, omringd door groen, maar toch met een vlotte bereikbaarheid? Dan is dit uitzonderlijke perceel precies wat je zoekt!
Deze bouwgrond voor open bebouwing is gelegen in woongebied met landelijk karakter, op het kruispunt van de Koningstraat en de Dorpsstraat te Kapellen (Glabbeek).
Dankzij de zeer rustige ligging en het ontbreken van nabije buren geniet je hier van maximale privacy en een open uitzicht.
Met een voorgevelbreedte van 12,38 meter en een perceeloppervlakte van maar liefst 31 are (waarvan een deel achterliggend landbouwgrond is), biedt dit terrein tal van mogelijkheden voor het realiseren van jouw droomwoning.
Je kan bouwen met 2 bouwlagen, met een kroonlijsthoogte van:
6,5 meter bij een plat dak
6 meter bij een hellend dak
De zuidgerichte tuin zorgt voor een optimale lichtinval en is ideaal om volop te genieten van zonnige dagen 🌞
Bovendien is het perceel niet gelegen in overstromingsgevoelig gebied, wat een extra geruststelling biedt.
De ligging is een absolute troef: rustig en landelijk, maar toch nabij de autostrade en omliggende steden, waardoor je geniet van een perfecte combinatie van bereikbaarheid en woonkwaliteit.
📄 Stedenbouwkundige voorschriften zijn beschikbaar op aanvraag.
✨ Een unieke kans voor wie wil bouwen op een ruim, rustig en uitstekend gelegen perceel!
Benieuwd naar meer? Contacteer ons Century 21 Immo K Tienen en Sint-truiden op 016821778
🌿 Prachtige bouwgrond voor open bebouwing op toplocatie 🌿 Aanduiding op plan als LOT 2 +2A!
Droom je van wonen in alle rust, omringd door groen, maar toch met een vlotte bereikbaarheid? Dan is dit uitzonderlijke perceel precies wat je zoekt!
Deze bouwgrond voor open bebouwing is gelegen in woongebied met landelijk karakter, op het kruispunt van de Koningstraat en de Dorpsstraat te Kapellen (Glabbeek).
Dankzij de zeer rustige ligging en het ontbreken van nabije buren geniet je hier van maximale privacy en een open uitzicht.
Met een voorgevelbreedte van 12,38 meter en een perceeloppervlakte van maar liefst 31 are (waarvan een deel achterliggend landbouwgrond is), biedt dit terrein tal van mogelijkheden voor het realiseren van jouw droomwoning.
Je kan bouwen met 2 bouwlagen, met een kroonlijsthoogte van:
6,5 meter bij een plat dak
6 meter bij een hellend dak
De zuidgerichte tuin zorgt voor een optimale lichtinval en is ideaal om volop te genieten van zonnige dagen 🌞
Bovendien is het perceel niet gelegen in overstromingsgevoelig gebied, wat een extra geruststelling biedt.
De ligging is een absolute troef: rustig en landelijk, maar toch nabij de autostrade en omliggende steden, waardoor je geniet van een perfecte combinatie van bereikbaarheid en woonkwaliteit.
📄 Stedenbouwkundige voorschriften zijn beschikbaar op aanvraag.
✨ Een unieke kans voor wie wil bouwen op een ruim, rustig en uitstekend gelegen perceel!
Benieuwd naar meer? Contacteer ons Century 21 Immo K Tienen en Sint-truiden op 016821778
Droom je van wonen in alle rust, omringd door groen, maar toch met een vlotte bereikbaarheid? Dan is dit uitzonderlijke perceel precies wat je zoekt!
Deze bouwgrond voor open bebouwing is gelegen in woongebied met landelijk karakter, op het kruispunt van de Koningstraat en de Dorpsstraat te Kapellen (Glabbeek).
Dankzij de zeer rustige ligging en het ontbreken van nabije buren geniet je hier van maximale privacy en een open uitzicht.
Met een voorgevelbreedte van 12,38 meter en een perceeloppervlakte van maar liefst 31 are (waarvan een deel achterliggend landbouwgrond is), biedt dit terrein tal van mogelijkheden voor het realiseren van jouw droomwoning.
Je kan bouwen met 2 bouwlagen, met een kroonlijsthoogte van:
6,5 meter bij een plat dak
6 meter bij een hellend dak
De zuidgerichte tuin zorgt voor een optimale lichtinval en is ideaal om volop te genieten van zonnige dagen 🌞
Bovendien is het perceel niet gelegen in overstromingsgevoelig gebied, wat een extra geruststelling biedt.
De ligging is een absolute troef: rustig en landelijk, maar toch nabij de autostrade en omliggende steden, waardoor je geniet van een perfecte combinatie van bereikbaarheid en woonkwaliteit.
📄 Stedenbouwkundige voorschriften zijn beschikbaar op aanvraag.
✨ Een unieke kans voor wie wil bouwen op een ruim, rustig en uitstekend gelegen perceel!
Benieuwd naar meer? Contacteer ons Century 21 Immo K Tienen en Sint-truiden op 016821778
Energie
Financieel
| Prijs |
|---|
Berekening kosten
Je aankoopkosten? Die heb je snel berekend via de knop hieronder.
Bijkomende info
Perceel
| Overstromingsgevoelig | Geen |
|---|---|
| P-score | D |
| Voorkeurrecht | Nee |
| Totale oppervlakte (m²) | 3101 |
| Oriëntatie tuin | Zuid |
Vergunning
| Vergunning | Geen beschikbaar |
|---|---|
| Verkavelingsvergunning | Vergunning beschikbaar |
| Bouwovertreding | Geen |
| Bouwovertreding dagvaardiging | Geen |
| Type gebied | Landelijk |
Uitrusting
| Gasaansluiting | Nee |
|---|---|
| Wateraansluiting | Nee |
| Elektriciteitsaansluiting | Nee |
Een pand van
Century 21 Immo K
Wij kunnen het vast goed met elkaar vinden in ons kantoor te TIENEN en SINT-TRUIDEN
KIES VOOR DE MARKTLEIDER
CENTURY 21 is het grootste makelaarsnetwerk ter wereld en in België. Met 25 jaar ervaring in België en meer dan 10.000 kantoren wereldwijd zijn wij de evidente keuze.
100% TRANSPARANTIE
Een vertrouwensrelatie opbouwen is essentieel voor ons. Daarom houden we u op de hoogte gedurende alle fases van het proces en dat doen we in volle transparantie. Wij staan altijd tot uw dienst voor om het even welke vraag.
GOUDEN KWALITEITSGARANTIE
Goud is de kleur van CENTURY 21, en goud is ook de kleur van onze onvoorwaardelijke kwaliteitsstandaard. Wij bieden u de beste service in de vastgoedsector
NO CURE, NO PAY
Wij gaan uw eigendom binnen een bepaalde termijn verkopen. Indien we niet in ons opzet slagen, betaalt u helemaal niets.
Leer meer over vastgoed
01 March 2026
Wanneer heb ik een bouwvergunning of omgevingsvergunning nodig?
17 February 2026
Hoe breng ik een bod uit op een woning?
24 November 2025
Uitgezocht voor jouw gemeente: Hoeveel stijgt de waarde van je woning door een renovatie?
22 October 2025