Verkocht
Prachtige bouwgrond voor HOB met een oppervlakte van 14a 20ca
€ 125.000
Een pand van LTC Vastgoedadvies
Overzicht
- 1420 m² grond
- 1 Tuin
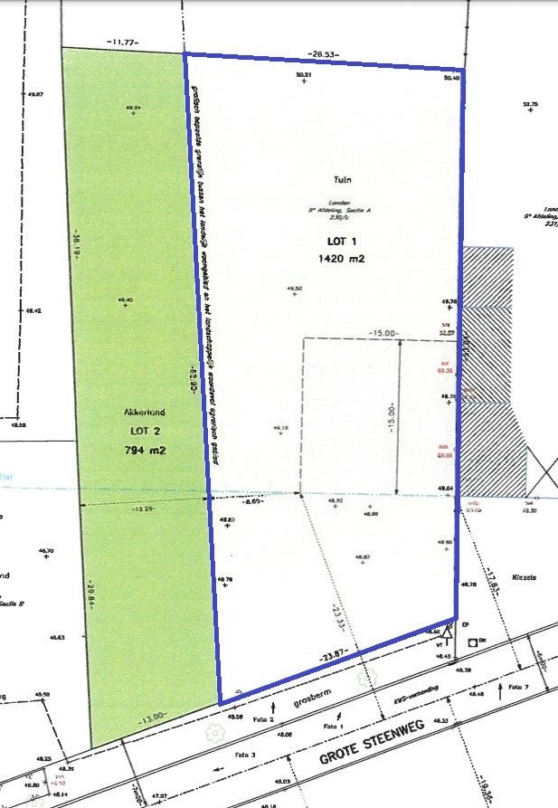
Beschrijving
Prachtige bouwgrond voor halfopen bebouwing omgeven door agrarisch gebied met mooie verzichten. Het perceel heeft een oppervlakte van 14a 20ca met een perceelbreedte van 23,87m en een perceeldiepte van 62,90m. Maximum gevelbreedte van 15m met maximum bouwdiepte van 15m op het gelijkvloers en maximum 12m op de verdieping. Mogelijkheid tot bouwen van gelijkvloers tot een bebouwde oppervlakte van 225m². Bouw- en verkavelingsvoorschriften te bekomen via ons kantoor.
Energie
- EPC Certificaat: nvt
- Verwarming: Geen
- Beglazing: Onbekend
Op de kaart

Financieel
| Prijs | |
|---|---|
| Kadastraal inkomen (niet geïndexeerd) | € 0 |
| Kadastraal inkomen (geïndexeerd) | € 0 |
Berekening kosten
Je aankoopkosten? Die heb je snel berekent via de knop hieronder.
Bijkomende info
Gebouw
| Is beschermd | Nee |
|---|
Ruimtes
| Tuin | 1195 m² |
|---|
Perceel
| Diepte (m) | 62 |
|---|---|
| Breedte (m) | 26 |
| Overstromingsgevoelig | Geen |
| P-score | A |
| Voorkeurrecht | Nee |
| Totale oppervlakte (m²) | 1420 |
| Oriëntatie tuin | Noordwest |
Vergunning
| Verkavelingsvergunning | Vergunning beschikbaar |
|---|---|
| Type gebied | Landelijk |
Uitrusting
| Meerdere eigenaars | Nee |
|---|---|
| Rioolaansluiting | Nee |
| Gasaansluiting | Nee |
| Wateraansluiting | Nee |
| Elektriciteitsaansluiting | Nee |
| TV aansluiting | Nee |
| Internetaansluiting | Nee |
Een pand van
LTC Vastgoedadvies
Hét immokantoor van Vlaams-Brabant
LTC Vastgoedadvies ontwikkelde zich de afgelopen decennia tot hét immokantoor van Vlaams-Brabant. Zowel potentiële kopers, huurders, investeerders als verkopers en verhuurders vertrouwen dagelijks op onze persoonlijke en klantgerichte aanpak. Daarnaast onderscheiden we ons op vlak van knowhow en gericht advies.
21238/JSL/IS/BD
Leer meer over vastgoed
24 November 2025
Uitgezocht voor jouw gemeente: Hoeveel stijgt de waarde van je woning door een renovatie?
22 October 2025
Hoeveel kan ik lenen om een huis te kopen?
11 June 2025
Huis kopen met bouwovertreding? Dit moet je weten
11 May 2025