Nieuw
Ruime, gerenoveerde woning op goede locatie
€ 280.000
Een pand van Immo Vesta
Overzicht
- 3 Slaapkamer(s)
- 3 Badkamer(s)
- 1 Living(s)
Beschrijving
Deze ruime woning ligt in het rustige Neerwinden, met alle noden binnen handbereik en de hoofdwegen op een steenworp. De woning werd in 2010 volledig gerenoveerd, hetgeen resulteert in een zeer degelijk B-label.
indeling:
kelder
gelijkvloers:
- inkom
- leefruimte met keuken
- badkamer met toilet
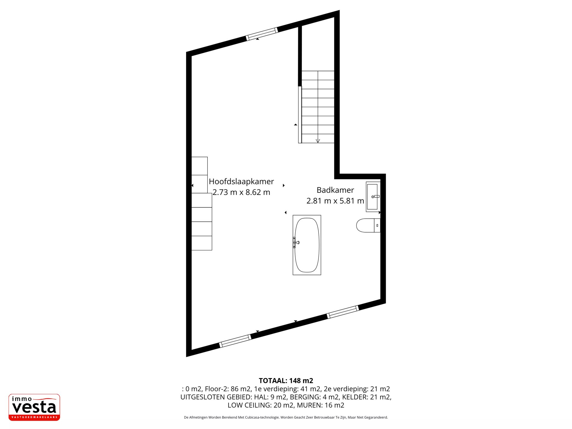
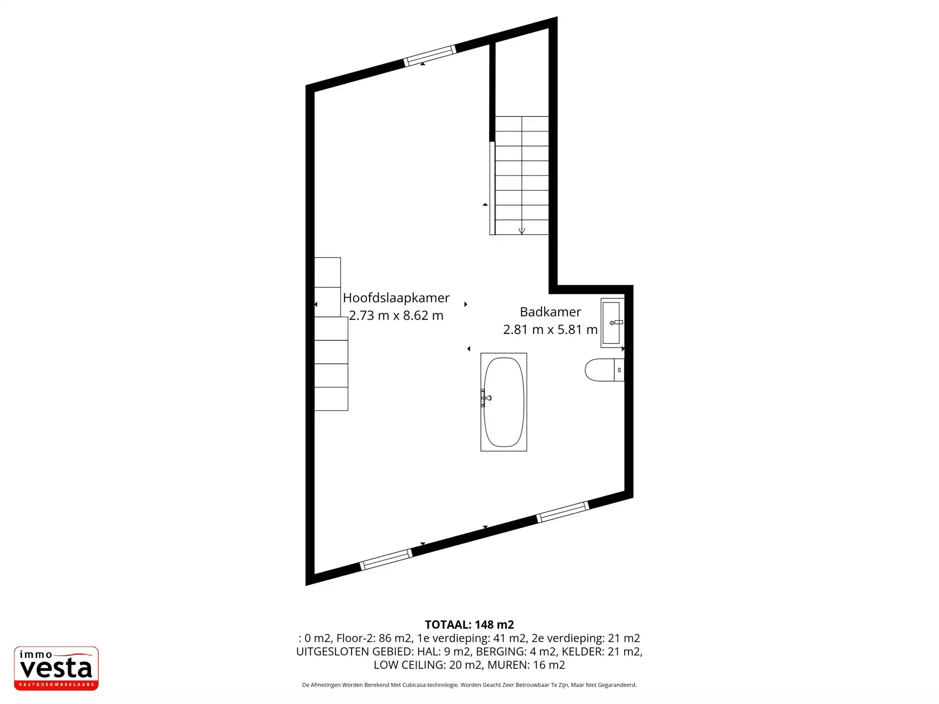
eerste verdieping:
- nachthal
- slaapkamer 1 (met badkamer)
- slaapkamer 2
tweede verdieping:
- slaapkamer 3 (met badkamer en toilet)
Geïnteresseerd? Mail naar ben@immovesta.be of bel naar 0469/430997.
indeling:
kelder
gelijkvloers:
- inkom
- leefruimte met keuken
- badkamer met toilet
eerste verdieping:
- nachthal
- slaapkamer 1 (met badkamer)
- slaapkamer 2
tweede verdieping:
- slaapkamer 3 (met badkamer en toilet)
Geïnteresseerd? Mail naar ben@immovesta.be of bel naar 0469/430997.
Energie
![]() |
- EPC Certificaat: 1180
- Energieverbruik: 178 kWh/m²/jaar
- Verwarming: Elektriciteit
- Beglazing: Standaard dubbel
Op de kaart

Financieel
| Prijs | |
|---|---|
| Kadastraal inkomen (niet geïndexeerd) | € 573 |
Berekening kosten
Je aankoopkosten? Die heb je snel berekent via de knop hieronder.
Bijkomende info
Gebouw
| Bouwjaar | 1918 |
|---|---|
| Renovatie jaar | 2010 |
| Staat | Goed onderhouden |
| Is beschermd | Nee |
| Bouwcertificaat | Nee |
| Verdieping | 0 |
| Gevels | 2 |
| Badkamers | 3 |
| Slaapkamers | 3 |
| Verdiepingen | 0 |
| Keukens | 1 |
| Leefruimtes | 1 |
Faciliteiten
| Materiaal ramenomlijstingen | PVC |
|---|---|
| Beglazing | Standaard dubbel |
| Luiken | Nee |
| Primair verwarmingstype | Decentrale verwarming |
| Primaire verwarmingsbron | EXTRA_INFO.OUTFITTING.VALUE.STOVE |
| Brandstof primaire verwarming | Elektriciteit |
| Primaire verwarming | Alleenstaande kachel |
| Warm water type | Decentrale verwarming |
| Elektrisch keuringsattest | Ja |
| Septische tank | Nee |
| Beerput | Nee |
Perceel
| Overstromingsgevoelig | Geen |
|---|---|
| Voorkeurrecht | Nee |
| Bebouwde oppervlakte (m²) | 0 |
| Oriëntatie voorgevel | ZuidOost |
Vergunning
| Vergunning | Vergunning beschikbaar |
|---|---|
| Verkavelingsvergunning | Vergunning beschikbaar |
Uitrusting
| Investeringspand | Nee |
|---|---|
| Geschikt als kangoeroewoning | Nee |
| Geschikt voor rolstoelgebruikers | Nee |
| Parking | Nee |
| Garage | Nee |
| Thuiskantoor | Nee |
| Kelder | Nee |
| Zolder | Nee |
| Opslagruimte | Nee |
| Tuin | Nee |
| Terras | Nee |
| Lift | Nee |
| Rioolaansluiting | Nee |
| Gasaansluiting | Ja |
| Wateraansluiting | Ja |
| Elektriciteitsaansluiting | Ja |
| TV aansluiting | Nee |
| Internetaansluiting | Nee |
| Zonnepanelen | Ja |
| Zonneboiler | Nee |
| Thuisbatterij | Nee |
| Alarm | Nee |
| Zwembad | Nee |
| Sauna | Nee |
| Jacuzzi | Nee |
| Videofoon | Nee |
| Domotica | Nee |
| Grondwaterput | Nee |
| Ventilatie | Ja |
Een pand van
Immo Vesta
De verkoop van uw woning, onze zorg.
Al sinds 2001 is Immo Vesta uw partner in de verkoop en verhuur van uw vastgoed.
Als gevestigde waarde in en rond Sint-Truiden staan wij steeds tot uw dienst.
Stefaan Hombrouckx kent als ervaren kwaliteitsmakelaar de lokale markt als geen ander.
Sinds 2024 voegde Immo Vesta zich bij de ImmoVadis groep, waardoor de werking binnen het kantoor gemoderniseerd werd om een nóg betere service te kunnen (blijven) bieden.
De dagelijkse leiding gebeurt vanuit het hoofdkantoor in Bilzen, waar Guy Clerinx, een vat vol ervaring op niveau van makelaardij, in samenwerking met een bouwkundig aannemer, Wim Lambrechts (ProMaCon BV) het kantoor leidt.
Verder werd ook Ben Moermans aangetrokken binnen het kantoor. Als energie- en asbest deskundige maakt hij het totaalplaatje van het kantoor compleet.
Door deze samenwerking kunnen we op het vlak van bouwkundigheid een meerwaarde toevoegen aan het gebruikelijk takenpakket van een standaard makelaar.
Als klant krijgt u deze deskundige meerwaarde automatisch mee inbegrepen in onze dienstverlening.
86517725
Leer meer over vastgoed
24 November 2025
Uitgezocht voor jouw gemeente: Hoeveel stijgt de waarde van je woning door een renovatie?
22 October 2025
Hoeveel kan ik lenen om een huis te kopen?
11 June 2025
Huis kopen met bouwovertreding? Dit moet je weten
11 May 2025
