Nieuw
CHARMANTE OPEN BEBOUWING OP EEN TOPLOCATIE IN SINT-TRUIDEN
Een pand van De woonmakers
Overzicht
- 161 m² bewoonbaar
- 1142 m² grond
- 4 Slaapkamer(s)
- 1 Badkamer(s)
- 1 Tuin
- 2 Garage(s)
Beschrijving
In het charmante Zoutleeuw, langs de rustige Orsmaalstraat, treffen we deze mooie en karaktervolle open bebouwing uit 2008. De woning geniet een uitstekende ligging op een perceel van 11a42ca en biedt een bewoonbare oppervlakte van maar liefst 161m². Een ideaal geheel voor wie zoekt naar rust, ruimte en comfort.
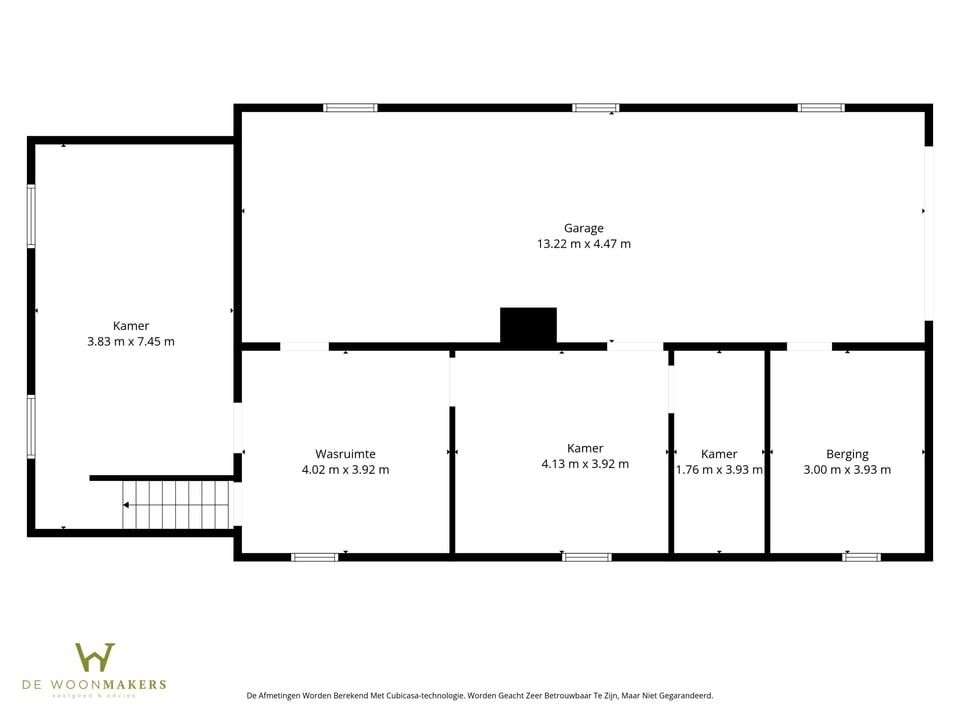
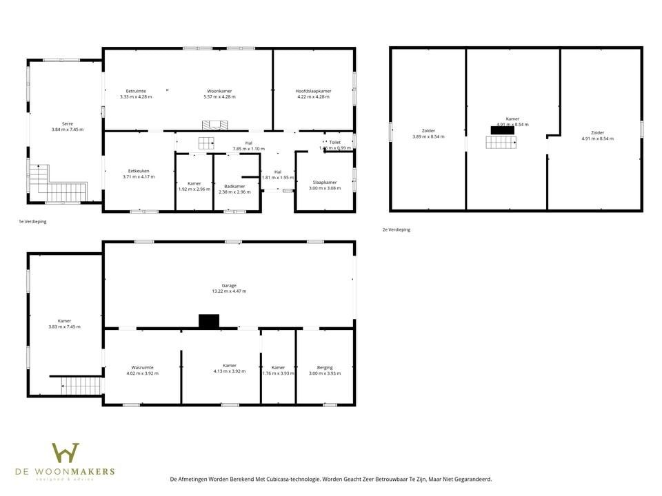
Een eerste grote troef is dat de woning volledig onderkelderd werd. Hier vinden we een ruime inpandige garage terug, extra bergplaats én mogelijkheden voor wie op zoek is naar hobby- of stockage-ruimte.
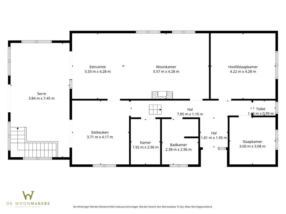
Op het gelijkvloers beschikt men reeds over twee volwaardige slaapkamers, een badkamer en een apart toilet. Dit maakt de woning bijzonder geschikt voor bewoners die graag gelijkvloers willen leven of dit in de toekomst willen kunnen doen. Verder ontdekken we hier de lichtrijke leefruimte met aansluitend de knappe veranda. Dankzij de grote raampartijen geniet je hier het hele jaar door van een prachtig zicht op de tuin — een ideale plek om te ontspannen of te genieten met familie en vrienden.
Op de eerste verdieping vinden we nog twee polyvalente ruimtes terug. Deze kunnen perfect dienst doen als bijkomende slaapkamers, hobbykamer, dressing, bureau of speelruimte.
Buiten vinden we de volledig omheinde tuin terug die zorgt voor de nodige privacy en uitnodigt tot buitenleven in alle rust. Ruimte genoeg voor kinderen, huisdieren of wie graag van een mooie tuin geniet.
Contacteer ons op het nummer 011/98.88.98 of via info@dewoonmakers.be
Een eerste grote troef is dat de woning volledig onderkelderd werd. Hier vinden we een ruime inpandige garage terug, extra bergplaats én mogelijkheden voor wie op zoek is naar hobby- of stockage-ruimte.
Op het gelijkvloers beschikt men reeds over twee volwaardige slaapkamers, een badkamer en een apart toilet. Dit maakt de woning bijzonder geschikt voor bewoners die graag gelijkvloers willen leven of dit in de toekomst willen kunnen doen. Verder ontdekken we hier de lichtrijke leefruimte met aansluitend de knappe veranda. Dankzij de grote raampartijen geniet je hier het hele jaar door van een prachtig zicht op de tuin — een ideale plek om te ontspannen of te genieten met familie en vrienden.
Op de eerste verdieping vinden we nog twee polyvalente ruimtes terug. Deze kunnen perfect dienst doen als bijkomende slaapkamers, hobbykamer, dressing, bureau of speelruimte.
Buiten vinden we de volledig omheinde tuin terug die zorgt voor de nodige privacy en uitnodigt tot buitenleven in alle rust. Ruimte genoeg voor kinderen, huisdieren of wie graag van een mooie tuin geniet.
Contacteer ons op het nummer 011/98.88.98 of via info@dewoonmakers.be
In het charmante Zoutleeuw, langs de rustige Orsmaalstraat, treffen we deze mooie en karaktervolle open bebouwing uit 2008. De woning geniet een uitstekende ligging op een perceel van 11a42ca en biedt een bewoonbare oppervlakte van maar liefst 161m². Een ideaal geheel voor wie zoekt naar rust, ruimte en comfort.
Een eerste grote troef is dat de woning volledig onderkelderd werd. Hier vinden we een ruime inpandige garage terug, extra bergplaats én mogelijkheden voor wie op zoek is naar hobby- of stockage-ruimte.
Op het gelijkvloers beschikt men reeds over twee volwaardige slaapkamers, een badkamer en een apart toilet. Dit maakt de woning bijzonder geschikt voor bewoners die graag gelijkvloers willen leven of dit in de toekomst willen kunnen doen. Verder ontdekken we hier de lichtrijke leefruimte met aansluitend de knappe veranda. Dankzij de grote raampartijen geniet je hier het hele jaar door van een prachtig zicht op de tuin — een ideale plek om te ontspannen of te genieten met familie en vrienden.
Op de eerste verdieping vinden we nog twee polyvalente ruimtes terug. Deze kunnen perfect dienst doen als bijkomende slaapkamers, hobbykamer, dressing, bureau of speelruimte — de mogelijkheden zijn veelzijdig.
Buiten vinden we de volledig omheinde tuin terug die zorgt voor de nodige privacy en uitnodigt tot buitenleven in alle rust. Ruimte genoeg voor kinderen, huisdieren of wie graag van een mooie tuin geniet.
Troeven op een rij:
Benieuwd naar deze woning met karakter, ruimte en een uitzonderlijk praktische indeling? Plan dan snel jouw bezoek — dit is een kans die je niet wilt missen!
Hebben wij uw interesse kunnen wekken? Aarzel niet en contacteer ons op het nummer 011/98.88.98 of via info@dewoonmakers.be
De vermelde oppervlaktes zijn indicatief. De Woonmakers kan niet verantwoordelijk gesteld worden voor de juistheid van de door zijn verstrekte gegevens.
Een eerste grote troef is dat de woning volledig onderkelderd werd. Hier vinden we een ruime inpandige garage terug, extra bergplaats én mogelijkheden voor wie op zoek is naar hobby- of stockage-ruimte.
Op het gelijkvloers beschikt men reeds over twee volwaardige slaapkamers, een badkamer en een apart toilet. Dit maakt de woning bijzonder geschikt voor bewoners die graag gelijkvloers willen leven of dit in de toekomst willen kunnen doen. Verder ontdekken we hier de lichtrijke leefruimte met aansluitend de knappe veranda. Dankzij de grote raampartijen geniet je hier het hele jaar door van een prachtig zicht op de tuin — een ideale plek om te ontspannen of te genieten met familie en vrienden.
Op de eerste verdieping vinden we nog twee polyvalente ruimtes terug. Deze kunnen perfect dienst doen als bijkomende slaapkamers, hobbykamer, dressing, bureau of speelruimte — de mogelijkheden zijn veelzijdig.
Buiten vinden we de volledig omheinde tuin terug die zorgt voor de nodige privacy en uitnodigt tot buitenleven in alle rust. Ruimte genoeg voor kinderen, huisdieren of wie graag van een mooie tuin geniet.
Troeven op een rij:
- Charmante open bebouwing op ruim perceel van 11a42ca
- Bewoonbare oppervlakte van ±161m²
- Bouwjaar 2008
- Volledig onderkelderd met ruime garage
- Gelijkvloers wonen mogelijk
- Volledig omheinde tuin met privacy
- Rustige ligging nabij het centrum van Zoutleeuw
Benieuwd naar deze woning met karakter, ruimte en een uitzonderlijk praktische indeling? Plan dan snel jouw bezoek — dit is een kans die je niet wilt missen!
Hebben wij uw interesse kunnen wekken? Aarzel niet en contacteer ons op het nummer 011/98.88.98 of via info@dewoonmakers.be
De vermelde oppervlaktes zijn indicatief. De Woonmakers kan niet verantwoordelijk gesteld worden voor de juistheid van de door zijn verstrekte gegevens.
Energie
![]() |
- EPC Certificaat: 20260113-0003774731-RES-1
- Energieverbruik: 211 kWh/m²/jaar
- E-peil: E0
- Beglazing: Onbekend
Op de kaart

Financieel
| Prijs | |
|---|---|
| Kadastraal inkomen (niet geïndexeerd) | € 1.435 |
Berekening kosten
Je aankoopkosten? Die heb je snel berekent via de knop hieronder.
Bijkomende info
Gebouw
| Bouwjaar | 2008 |
|---|---|
| Bewoonbaar (m²) | 161 |
| Badkamers | 1 |
| Slaapkamers | 4 |
| Verdiepingen | 0 |
| Garages | 2 |
| Parkeerplaatsen | 0 |
| Toiletten | 0 |
Faciliteiten
| Septische tank | Nee |
|---|
Perceel
| Overstromingsgevoelig | Geen |
|---|---|
| P-score | A |
| G-score | A |
| Totale oppervlakte (m²) | 1142 |
| Bebouwde oppervlakte (m²) | 0 |
| Tuin oppervlakte (m²) | 0 |
Vergunning
| Verkavelingsvergunning | Geen beschikbaar |
|---|
Uitrusting
| Investeringspand | Nee |
|---|---|
| Parking | Nee |
| Garage | Ja |
| Tuin | Ja |
| Lift | Nee |
| Rioolaansluiting | Nee |
| Gasaansluiting | Nee |
| Wateraansluiting | Nee |
| Elektriciteitsaansluiting | Nee |
| Internetaansluiting | Nee |
| Telefoonaansluiting | Nee |
| Zonnepanelen | Nee |
| Zonneboiler | Nee |
| Alarm | Nee |
| Videofoon | Nee |
| Grondwaterput | Nee |
Een pand van
De woonmakers
De Woonmakers Win-win in vastgoed
Bij De Woonmakers staat ervaring centraal. Sinds onze oprichting in 2020 hebben we ons voortdurend ontwikkeld als toonaangevend bedrijf in de vastgoedsector. Gedurende deze periode hebben we waardevolle inzichten verzameld en ons vakmanschap verfijnd om onze klanten een ongeëvenaarde dienstverlening te bieden.
Onze missie is om de perfecte match te creëren tussen individuen en vastgoed, en dit streven we na door onze diepgaande kennis van de markt te combineren met een innovatieve benadering van klantinteractie. Door te luisteren naar uw woonvoorkeuren en -behoeften, zijn we in staat om op maat gemaakte oplossingen te presenteren die naadloos aansluiten op uw levensstijl.
De drijvende krachten achter De Woonmakers, Jan en Krisja, delen een passie voor vastgoed en een toewijding om de klanten te voorzien van een ongeëvenaarde ervaring. Met jarenlange expertise in verschillende facetten van de vastgoedmarkt streven zij ernaar om een service te bieden die verder gaat dan alleen transacties. “Onze klanten kunnen rekenen op een persoonlijke aanpak die gericht is op het creëren van langdurige relaties en het leveren van op maat gemaakte oplossingen die voldoen aan hun specifieke behoeften.”
Orsmaalstraat 7B
Leer meer over vastgoed
24 November 2025
Uitgezocht voor jouw gemeente: Hoeveel stijgt de waarde van je woning door een renovatie?
22 October 2025
Hoeveel kan ik lenen om een huis te kopen?
11 June 2025
Huis kopen met bouwovertreding? Dit moet je weten
11 May 2025
