VERGUND PROJECT VAN TWEE GESLOTEN BEBOUWINGEN OP 12A20CA MET CENTRALE LIGGING IN HALLE-BOOIENHOVEN
€ 179.000
Een pand van De woonmakers
Favoriet
Jouw zoektocht
Jouw scoretabel voor dit pand
Aan het laden...
Jouw geplande bezichtigingen
Aan het laden...
Overzicht
- 1220 m² grond
Beschrijving
In Halle - Booienhoven, een deelgemeente van Zoutleeuw, kan men deze volledig te renoveren panden terugvinden in de Houtstraat ter hoogte van nummer 5. We kunnen hier spreken van een ideale ligging met aan de ene kant een zee aan rust en aan de andere kant al de nodige faciliteiten binnen handbereik.
Het geheel werd opgetrokken begin de 20ste eeuw en is momenteel vergund als twee gesloten bebouwingen.
Gezien de leeftijd en de toestand van het pand dient men rekening te houden met een totaal renovatie waardoor dit het pand bij uitstek is voor de doe-het-zelvers onder ons. Hierdoor heeft de koper carte blanche om het volledig naar zijn smaak in te richten en af te werken. Mits de nodige creativiteit en handigheid kan deze woonst probleemloos omgetoverd worden tot een echt (t)huis.
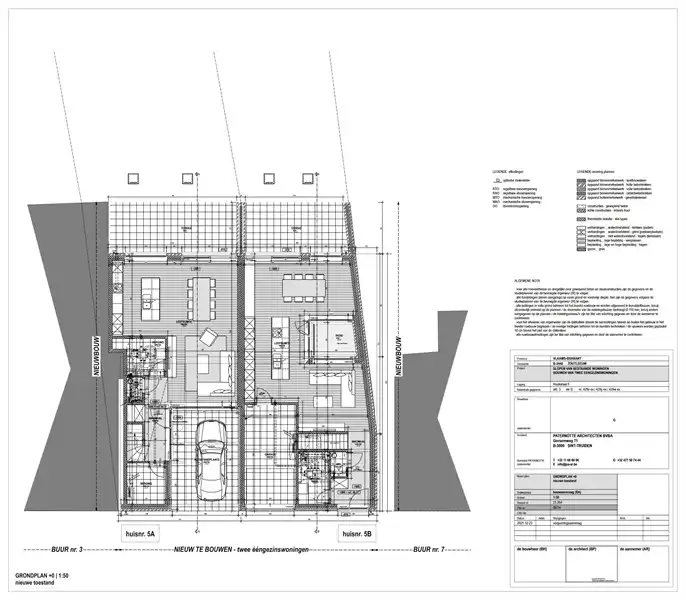
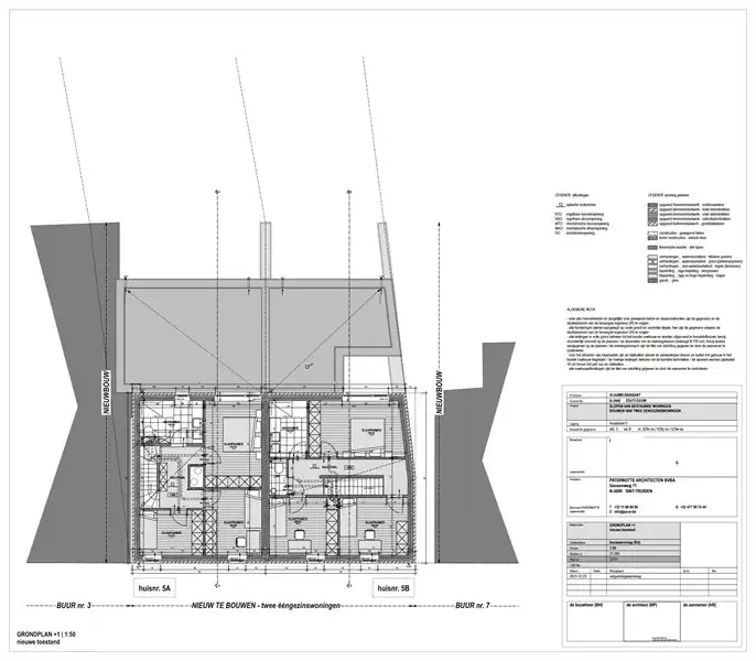
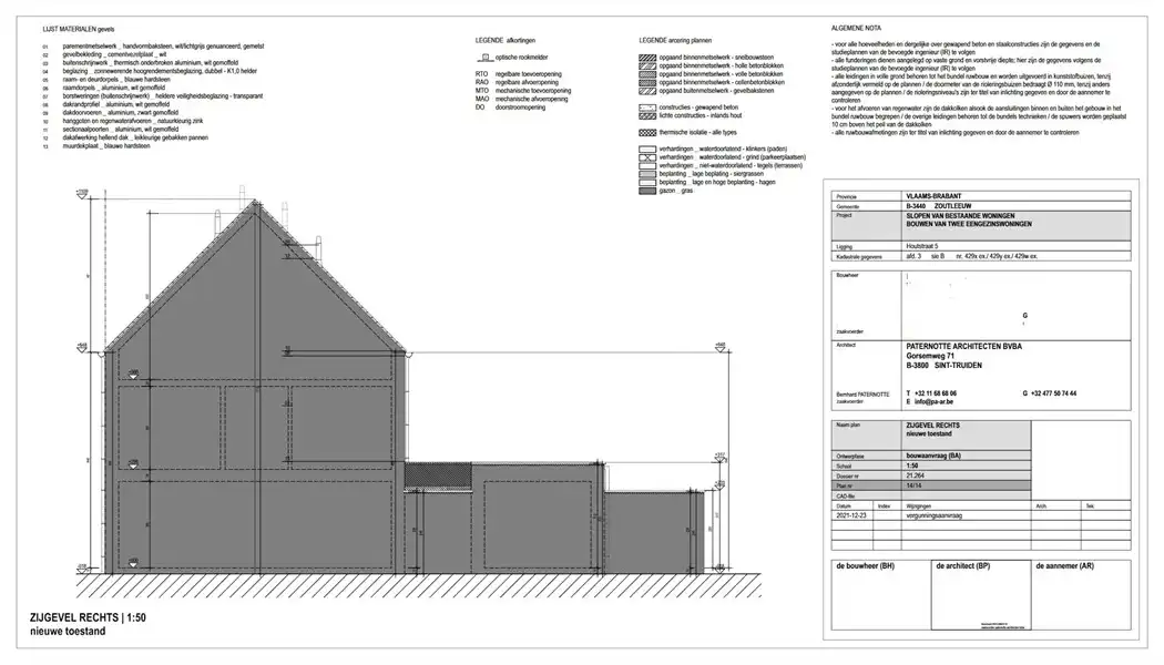
In bijlage kan u alvast een voorontwerp van de bouwplannen terugvinden.
Bent u op zoek zijn naar een renovatieproject en dit in een groene omgeving? Aarzel niet om ons te contacteren op het nummer 011/98.88.98 of via info@dewoonmakers.be
De vermelde oppervlaktes zijn indicatief. De Woonmakers kan niet verantwoordelijk gesteld worden voor de juistheid van de door zijn verstrekte gegevens.
Het geheel werd opgetrokken begin de 20ste eeuw en is momenteel vergund als twee gesloten bebouwingen.
Gezien de leeftijd en de toestand van het pand dient men rekening te houden met een totaal renovatie waardoor dit het pand bij uitstek is voor de doe-het-zelvers onder ons. Hierdoor heeft de koper carte blanche om het volledig naar zijn smaak in te richten en af te werken. Mits de nodige creativiteit en handigheid kan deze woonst probleemloos omgetoverd worden tot een echt (t)huis.
In bijlage kan u alvast een voorontwerp van de bouwplannen terugvinden.
Bent u op zoek zijn naar een renovatieproject en dit in een groene omgeving? Aarzel niet om ons te contacteren op het nummer 011/98.88.98 of via info@dewoonmakers.be
De vermelde oppervlaktes zijn indicatief. De Woonmakers kan niet verantwoordelijk gesteld worden voor de juistheid van de door zijn verstrekte gegevens.
In Halle - Booienhoven, een deelgemeente van Zoutleeuw, kan men deze volledig te renoveren panden terugvinden in de Houtstraat ter hoogte van nummer 5. We kunnen hier spreken van een ideale ligging met aan de ene kant een zee aan rust en aan de andere kant al de nodige faciliteiten binnen handbereik.
Het geheel werd opgetrokken begin de 20ste eeuw en is momenteel vergund als twee gesloten bebouwingen.
Gezien de leeftijd en de toestand van het pand dient men rekening te houden met een totaal renovatie waardoor dit het pand bij uitstek is voor de doe-het-zelvers onder ons. Hierdoor heeft de koper carte blanche om het volledig naar zijn smaak in te richten en af te werken. Mits de nodige creativiteit en handigheid kan deze woonst probleemloos omgetoverd worden tot een echt (t)huis.
In bijlage kan u alvast een voorontwerp van de bouwplannen terugvinden.
Bent u op zoek zijn naar een renovatieproject en dit in een groene omgeving? Aarzel niet om ons te contacteren op het nummer 011/98.88.98 of via info@dewoonmakers.be
De vermelde oppervlaktes zijn indicatief. De Woonmakers kan niet verantwoordelijk gesteld worden voor de juistheid van de door zijn verstrekte gegevens.
Het geheel werd opgetrokken begin de 20ste eeuw en is momenteel vergund als twee gesloten bebouwingen.
Gezien de leeftijd en de toestand van het pand dient men rekening te houden met een totaal renovatie waardoor dit het pand bij uitstek is voor de doe-het-zelvers onder ons. Hierdoor heeft de koper carte blanche om het volledig naar zijn smaak in te richten en af te werken. Mits de nodige creativiteit en handigheid kan deze woonst probleemloos omgetoverd worden tot een echt (t)huis.
In bijlage kan u alvast een voorontwerp van de bouwplannen terugvinden.
Bent u op zoek zijn naar een renovatieproject en dit in een groene omgeving? Aarzel niet om ons te contacteren op het nummer 011/98.88.98 of via info@dewoonmakers.be
De vermelde oppervlaktes zijn indicatief. De Woonmakers kan niet verantwoordelijk gesteld worden voor de juistheid van de door zijn verstrekte gegevens.
Energie
![]() |
- EPC Certificaat: 20160913-0001894153-1
- Energieverbruik: 1118 kWh/m²/jaar
- E-peil: E0
- Beglazing: Enkel
Op de kaart

Financieel
| Prijs | |
|---|---|
| Kadastraal inkomen (niet geïndexeerd) | € 605 |
Berekening kosten
Je aankoopkosten? Die heb je snel berekend via de knop hieronder.
Bijkomende info
Perceel
| Diepte (m) | 75 |
|---|---|
| Overstromingsgevoelig | Geen |
| Totale oppervlakte (m²) | 1220 |
Vergunning
| Verkavelingsvergunning | Geen beschikbaar |
|---|
Uitrusting
| Investeringspand | Nee |
|---|---|
| Rioolaansluiting | Nee |
| Gasaansluiting | Nee |
| Wateraansluiting | Nee |
| Elektriciteitsaansluiting | Nee |
| Internetaansluiting | Nee |
| Telefoonaansluiting | Nee |
Een pand van
De woonmakers
De Woonmakers Win-win in vastgoed
Bij De Woonmakers staat ervaring centraal. Sinds onze oprichting in 2020 hebben we ons voortdurend ontwikkeld als toonaangevend bedrijf in de vastgoedsector. Gedurende deze periode hebben we waardevolle inzichten verzameld en ons vakmanschap verfijnd om onze klanten een ongeëvenaarde dienstverlening te bieden.
Onze missie is om de perfecte match te creëren tussen individuen en vastgoed, en dit streven we na door onze diepgaande kennis van de markt te combineren met een innovatieve benadering van klantinteractie. Door te luisteren naar uw woonvoorkeuren en -behoeften, zijn we in staat om op maat gemaakte oplossingen te presenteren die naadloos aansluiten op uw levensstijl.
De drijvende krachten achter De Woonmakers, Jan en Krisja, delen een passie voor vastgoed en een toewijding om de klanten te voorzien van een ongeëvenaarde ervaring. Met jarenlange expertise in verschillende facetten van de vastgoedmarkt streven zij ernaar om een service te bieden die verder gaat dan alleen transacties. “Onze klanten kunnen rekenen op een persoonlijke aanpak die gericht is op het creëren van langdurige relaties en het leveren van op maat gemaakte oplossingen die voldoen aan hun specifieke behoeften.”
HOUTSTRAAT 5 HALLE-BOOIENHOVEN-1581
Leer meer over vastgoed
23 March 2026
Op Spotto zoeken als een pro: 10 slimme tips
21 March 2026
Hoeveel kan ik lenen om een huis te kopen?
01 March 2026
Wanneer heb ik een bouwvergunning of omgevingsvergunning nodig?
17 February 2026
