RUIM HANDELSPAND MET WOONST OP TOPLOCATIE IN ZOUTLEEUW
€ 350.000
Een pand van De woonmakers
Favoriet
Jouw zoektocht
Jouw scoretabel voor dit pand
Aan het laden...
Jouw geplande bezichtigingen
Aan het laden...
Overzicht
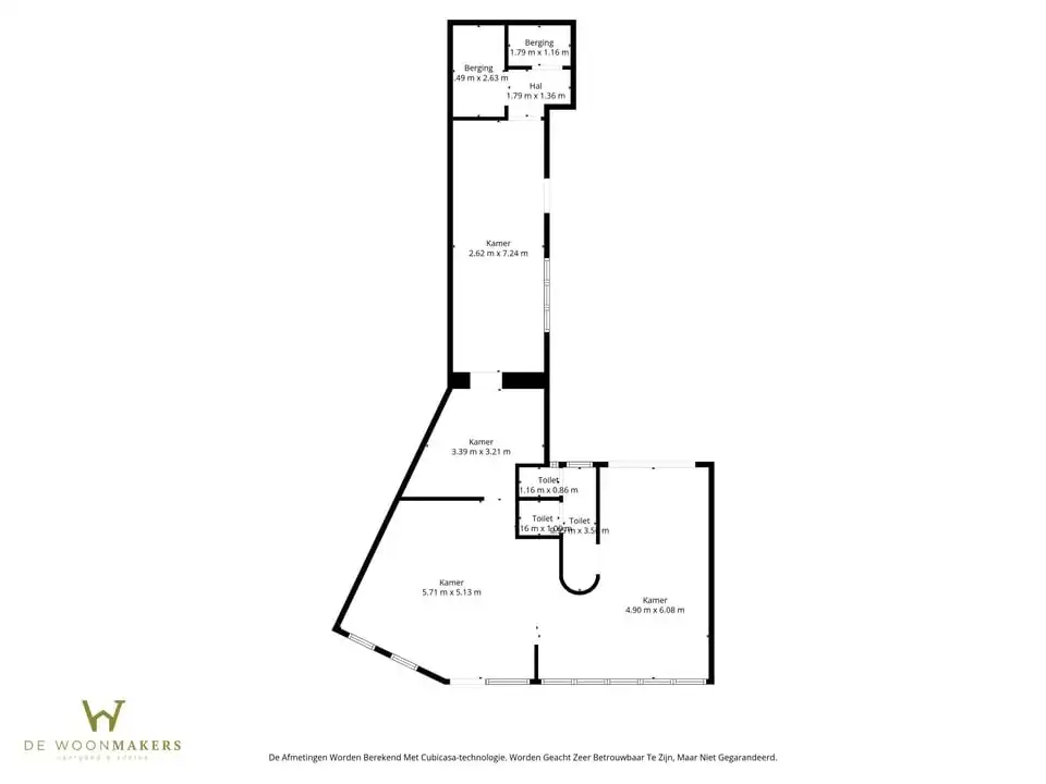
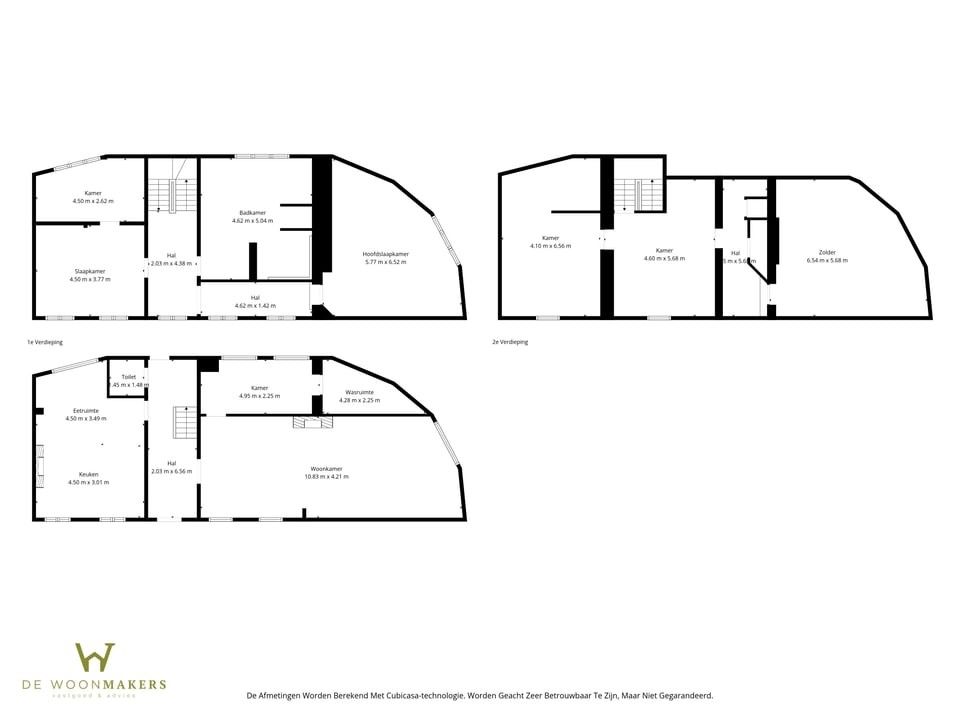
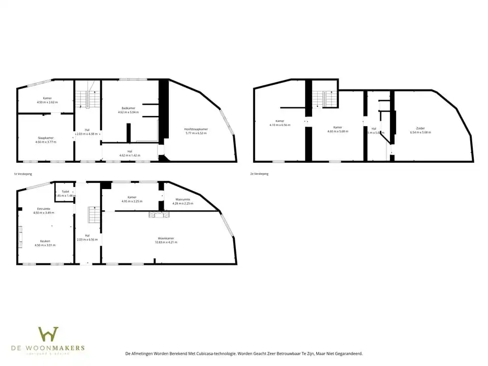
- 494 m² bewoonbaar
- 305 m² grond
- 4 Slaapkamer(s)
- 1 Badkamer(s)
Overstromingsgevaar gebouw
Overstromingsgevaar perceel
Beschrijving
Op een zichtbare en goed bereikbare hoeklocatie in het centrum van Zoutleeuw, vinden we dit veelzijdige handelspand met woonst terug, gelegen op de Koepoortstraat 1. Met een totale bewoonbare oppervlakte van maar liefst 494 m², verdeeld over handelsgedeelte en woonruimte, biedt dit pand een uitzonderlijke waaier aan mogelijkheden.
Het gelijkvloers deed jarenlang dienst als frituur, maar dankzij de indeling, ruimte en ligging leent het pand zich perfect voor tal van andere commerciële bestemmingen:
denk aan horeca, broodjeszaak, traiteur, winkelruimte, kantoor, praktijk of andere dienstverlenende activiteiten.
Bovendien is het pand uitgerust met een woonst, wat het extra interessant maakt voor wie handel en privé graag combineert. De woonruimte biedt tal van mogelijkheden en kan volledig naar eigen smaak worden ingericht.
Dankzij de grote oppervlakte, het hoekperceel met goede zichtbaarheid en de combinatie van wonen en werken, is dit pand een unieke kans voor ondernemers die op zoek zijn naar ruimte, flexibiliteit en een strategische ligging.
Heeft dit ruime handelspand op centrale locatie uw interesse gewekt? Neem snel contact op voor een afspraak op het nummer 011/98.88.98 of via info@dewoonmakers.be
De vermelde oppervlaktes zijn indicatief. De Woonmakers kan niet verantwoordelijk gesteld worden voor de juistheid van de door zijn verstrekte gegevens.
Het gelijkvloers deed jarenlang dienst als frituur, maar dankzij de indeling, ruimte en ligging leent het pand zich perfect voor tal van andere commerciële bestemmingen:
denk aan horeca, broodjeszaak, traiteur, winkelruimte, kantoor, praktijk of andere dienstverlenende activiteiten.
Bovendien is het pand uitgerust met een woonst, wat het extra interessant maakt voor wie handel en privé graag combineert. De woonruimte biedt tal van mogelijkheden en kan volledig naar eigen smaak worden ingericht.
Dankzij de grote oppervlakte, het hoekperceel met goede zichtbaarheid en de combinatie van wonen en werken, is dit pand een unieke kans voor ondernemers die op zoek zijn naar ruimte, flexibiliteit en een strategische ligging.
Heeft dit ruime handelspand op centrale locatie uw interesse gewekt? Neem snel contact op voor een afspraak op het nummer 011/98.88.98 of via info@dewoonmakers.be
De vermelde oppervlaktes zijn indicatief. De Woonmakers kan niet verantwoordelijk gesteld worden voor de juistheid van de door zijn verstrekte gegevens.
Op een zichtbare en goed bereikbare hoeklocatie in het centrum van Zoutleeuw, vinden we dit veelzijdige handelspand met woonst terug, gelegen op de Koepoortstraat 1. Met een totale bewoonbare oppervlakte van maar liefst 494 m², verdeeld over handelsgedeelte en woonruimte, biedt dit pand een uitzonderlijke waaier aan mogelijkheden.
Het gelijkvloers deed jarenlang dienst als frituur, maar dankzij de indeling, ruimte en ligging leent het pand zich perfect voor tal van andere commerciële bestemmingen:
denk aan horeca, broodjeszaak, traiteur, winkelruimte, kantoor, praktijk of andere dienstverlenende activiteiten.
Bovendien is het pand uitgerust met een woonst, wat het extra interessant maakt voor wie handel en privé graag combineert. De woonruimte biedt tal van mogelijkheden en kan volledig naar eigen smaak worden ingericht.
Dankzij de grote oppervlakte, het hoekperceel met goede zichtbaarheid en de combinatie van wonen en werken, is dit pand een unieke kans voor ondernemers die op zoek zijn naar ruimte, flexibiliteit en een strategische ligging.
Heeft dit ruime handelspand op centrale locatie uw interesse gewekt? Neem snel contact op voor een afspraak op het nummer 011/98.88.98 of via info@dewoonmakers.be
De vermelde oppervlaktes zijn indicatief. De Woonmakers kan niet verantwoordelijk gesteld worden voor de juistheid van de door zijn verstrekte gegevens.
Het gelijkvloers deed jarenlang dienst als frituur, maar dankzij de indeling, ruimte en ligging leent het pand zich perfect voor tal van andere commerciële bestemmingen:
denk aan horeca, broodjeszaak, traiteur, winkelruimte, kantoor, praktijk of andere dienstverlenende activiteiten.
Bovendien is het pand uitgerust met een woonst, wat het extra interessant maakt voor wie handel en privé graag combineert. De woonruimte biedt tal van mogelijkheden en kan volledig naar eigen smaak worden ingericht.
Dankzij de grote oppervlakte, het hoekperceel met goede zichtbaarheid en de combinatie van wonen en werken, is dit pand een unieke kans voor ondernemers die op zoek zijn naar ruimte, flexibiliteit en een strategische ligging.
Heeft dit ruime handelspand op centrale locatie uw interesse gewekt? Neem snel contact op voor een afspraak op het nummer 011/98.88.98 of via info@dewoonmakers.be
De vermelde oppervlaktes zijn indicatief. De Woonmakers kan niet verantwoordelijk gesteld worden voor de juistheid van de door zijn verstrekte gegevens.
Energie
![]() |
- EPC Certificaat: 20230919-0002986304-KNR-1
- E-peil: E0
- Verwarming: Gas
- Beglazing: Standaard dubbel
Op de kaart

Financieel
| Prijs | |
|---|---|
| Kadastraal inkomen (niet geïndexeerd) | € 1.531 |
Berekening kosten
Je aankoopkosten? Die heb je snel berekend via de knop hieronder.
Bijkomende info
Gebouw
| Bouwjaar | 1930 |
|---|---|
| Bouwcertificaat | Nee |
| Bewoonbaar (m²) | 494 |
| Badkamers | 1 |
| Slaapkamers | 4 |
| Verdiepingen | 0 |
| Garages | 0 |
| Parkeerplaatsen | 0 |
| Toiletten | 0 |
Faciliteiten
| Beglazing | Standaard dubbel |
|---|---|
| Brandstof primaire verwarming | Gas |
| Septische tank | Nee |
Perceel
| Overstromingsgevoelig | Geen |
|---|---|
| P-score | D |
| G-score | D |
| Totale oppervlakte (m²) | 305 |
| Bebouwde oppervlakte (m²) | 0 |
Vergunning
| Verkavelingsvergunning | Geen beschikbaar |
|---|
Uitrusting
| Investeringspand | Nee |
|---|---|
| Parking | Nee |
| Garage | Nee |
| Lift | Nee |
| Rioolaansluiting | Nee |
| Gasaansluiting | Nee |
| Wateraansluiting | Nee |
| Elektriciteitsaansluiting | Nee |
| Internetaansluiting | Nee |
| Telefoonaansluiting | Nee |
| Zonnepanelen | Nee |
| Zonneboiler | Nee |
| Alarm | Nee |
| Videofoon | Nee |
| Grondwaterput | Nee |
Een pand van
De woonmakers
De Woonmakers Win-win in vastgoed
Bij De Woonmakers staat ervaring centraal. Sinds onze oprichting in 2020 hebben we ons voortdurend ontwikkeld als toonaangevend bedrijf in de vastgoedsector. Gedurende deze periode hebben we waardevolle inzichten verzameld en ons vakmanschap verfijnd om onze klanten een ongeëvenaarde dienstverlening te bieden.
Onze missie is om de perfecte match te creëren tussen individuen en vastgoed, en dit streven we na door onze diepgaande kennis van de markt te combineren met een innovatieve benadering van klantinteractie. Door te luisteren naar uw woonvoorkeuren en -behoeften, zijn we in staat om op maat gemaakte oplossingen te presenteren die naadloos aansluiten op uw levensstijl.
De drijvende krachten achter De Woonmakers, Jan en Krisja, delen een passie voor vastgoed en een toewijding om de klanten te voorzien van een ongeëvenaarde ervaring. Met jarenlange expertise in verschillende facetten van de vastgoedmarkt streven zij ernaar om een service te bieden die verder gaat dan alleen transacties. “Onze klanten kunnen rekenen op een persoonlijke aanpak die gericht is op het creëren van langdurige relaties en het leveren van op maat gemaakte oplossingen die voldoen aan hun specifieke behoeften.”
Koepoortstraat 1C
Leer meer over vastgoed
23 March 2026
Op Spotto zoeken als een pro: 10 slimme tips
21 March 2026
Hoeveel kan ik lenen om een huis te kopen?
01 March 2026
Wanneer heb ik een bouwvergunning of omgevingsvergunning nodig?
17 February 2026
