BOUWGROND VOOR OPEN OF HALFOPEN BEBOUWING IN HET LANDELIJKE ZOUTLEEUW
€ 115.000
Een pand van De woonmakers
Jouw zoektocht
Overzicht
- 417 m² grond
Overstromingsgevaar perceel
Beschrijving
In Dormaal, een deelgemeente van Zoutleeuw, kan men deze bouwgrond terugvinden in de Neerlandensestraat ter hoogte van nummer 14. We kunnen hier spreken van een ideale ligging met aan de ene kant een zee aan rust en aan de andere kant al de nodige faciliteiten binnen handbereik.
Het stuk bouwgrond is momenteel vergund als een ééngezinswoning open aanzicht.
Voor meer informatie over de mogelijkheden van het perceel, verwijs ik u graag door naar de dienst omgeving van de gemeente Zoutleeuw.
LOT 2
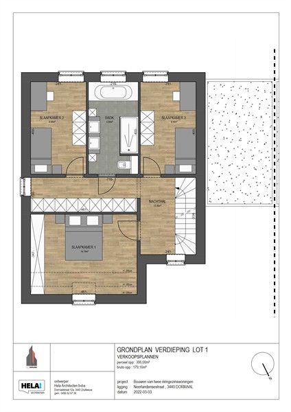
In bijlage kan u alvast de bouwplannen terugvinden.
Het perceel heeft een oppervlakte van 4A17CA .
Mogelijkheid tot open bebouwing met carport tot op de perceelgrens of een halfopen bebouwing.
Er werd reeds een bouwvergunning bekomen, maar het is eveneens mogelijk om zelf een vergunning aan te vragen voor een woning naar eigen smaak.
Wij doen U ook graag een voorstel om een woning voor U te bouwen binnen uw budget!
Aarzel niet om ons te contacteren op het nummer 011/98.88.98 of via info@dewoonmakers.be
In Dormaal, een deelgemeente van Zoutleeuw, kan men deze bouwgrond terugvinden in de Neerlandensestraat ter hoogte van nummer 14. We kunnen hier spreken van een ideale ligging met aan de ene kant een zee aan rust en aan de andere kant al de nodige faciliteiten binnen handbereik.
Het stuk bouwgrond is momenteel vergund als een ééngezinswoning open aanzicht.
Voor meer informatie over de mogelijkheden van het perceel, verwijs ik u graag door naar de dienst omgeving van de gemeente Zoutleeuw.
LOT 2
In bijlage kan u alvast de bouwplannen terugvinden.
Het perceel heeft een oppervlakte van 4A17CA .
Mogelijkheid tot open bebouwing met carport tot op de perceelgrens of een halfopen bebouwing.
Er werd reeds een bouwvergunning bekomen, maar het is eveneens mogelijk om zelf een vergunning aan te vragen voor een woning naar eigen smaak.
Wij doen U ook graag een voorstel om een woning voor U te bouwen binnen uw budget!
Bent u opzoek naar een project en dit midden in een groene omgeving? Aarzel niet om ons te contacteren op het nummer 011/98.88.98 of via info@dewoonmakers.be
Energie
- E-peil: E0
- Beglazing: Onbekend
Op de kaart

Financieel
| Prijs |
|---|
Berekening kosten
Je aankoopkosten? Die heb je snel berekend via de knop hieronder.
Bijkomende info
Perceel
| Overstromingsgevoelig | Geen |
|---|---|
| P-score | D |
| Totale oppervlakte (m²) | 417 |
Vergunning
| Verkavelingsvergunning | Vergunning beschikbaar |
|---|
Uitrusting
| Investeringspand | Nee |
|---|---|
| Rioolaansluiting | Nee |
| Gasaansluiting | Nee |
| Wateraansluiting | Nee |
| Elektriciteitsaansluiting | Nee |
| Internetaansluiting | Nee |
| Telefoonaansluiting | Nee |