Bouwgronden voor open bebouwing circa 7are - landelijk
€ 139.000
Een pand van JeSoLie Vastgoed
Favoriet
Jouw zoektocht
Jouw scoretabel voor dit pand
Aan het laden...
Jouw geplande bezichtigingen
Aan het laden...
Overzicht
- 702 m² grond
Overstromingsgevaar perceel
Beschrijving
Bouwgronden voor open bebouwing circa 7are
In Grazen, deelgemeente van Geetbets vinden we deze uiterst rustig gelegen percelen bouwgrond voor open bebouwing.
Centraal ten opzichte van de omliggende gemeentes; Tienen, Bekkevoort, Sint-Truiden, Hasselt, Herk-de-Stad.
Openbaar vervoer op wandelafstand.
De percelen liggen volledig in woongebied met landelijk karakter met uitzicht over achterliggend agrarisch gebied.
In het straatbeeld zien we alvast heel wat mooie nieuwbouw villa's.
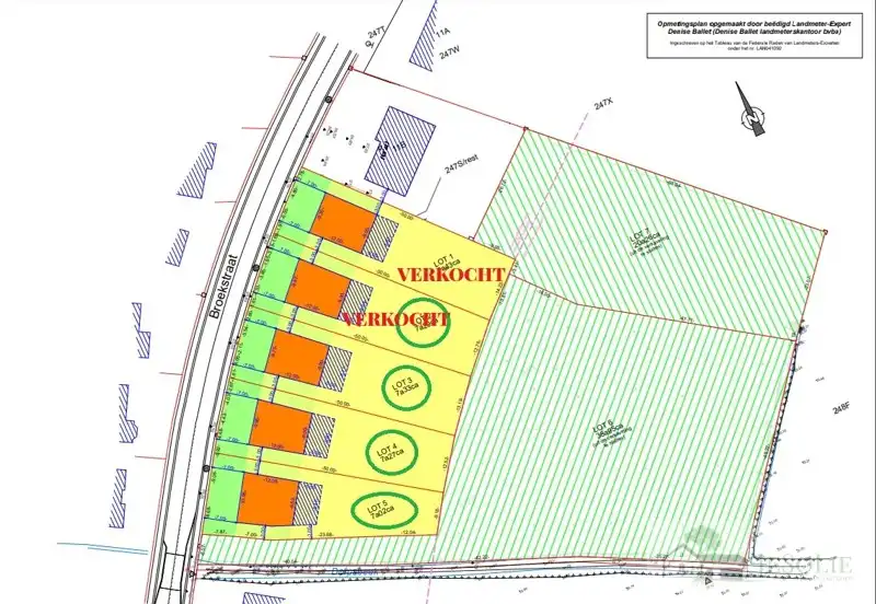
Lot 1 - VERKOCHT
Lot 2 - VERKOCHT
Lot 3 - 7a33ca
Lot 4 - 7a27ca
Lot 5 - 7a02ca
BOUWDIEPTE:
- Maximaal 15,0 meter op het gelijkvloers
- Maximaal 12,0 meter op de verdieping
GEVELBREEDTES:
9 tot 10m - zie plan
De percelen worden bouwrijp verkocht. Volledige bouwvoorschriften verkrijgbaar via ons kantoor.
Aarzel niet om mij te contacteren voor bijkomende informatie: 0486/914018
In Grazen, deelgemeente van Geetbets vinden we deze uiterst rustig gelegen percelen bouwgrond voor open bebouwing.
Centraal ten opzichte van de omliggende gemeentes; Tienen, Bekkevoort, Sint-Truiden, Hasselt, Herk-de-Stad.
Openbaar vervoer op wandelafstand.
De percelen liggen volledig in woongebied met landelijk karakter met uitzicht over achterliggend agrarisch gebied.
In het straatbeeld zien we alvast heel wat mooie nieuwbouw villa's.
Lot 1 - VERKOCHT
Lot 2 - VERKOCHT
Lot 3 - 7a33ca
Lot 4 - 7a27ca
Lot 5 - 7a02ca
BOUWDIEPTE:
- Maximaal 15,0 meter op het gelijkvloers
- Maximaal 12,0 meter op de verdieping
GEVELBREEDTES:
9 tot 10m - zie plan
De percelen worden bouwrijp verkocht. Volledige bouwvoorschriften verkrijgbaar via ons kantoor.
Aarzel niet om mij te contacteren voor bijkomende informatie: 0486/914018
Energie
- E-peil: E0
- Beglazing: Onbekend
Op de kaart

Financieel
| Prijs |
|---|
Bijkomende info
Perceel
| Overstromingsgevoelig | Geen |
|---|---|
| P-score | D |
| Totale oppervlakte (m²) | 702 |
| Oriëntatie tuin | ZuidOost |
Vergunning
| Verkavelingsvergunning | Vergunning beschikbaar |
|---|
Uitrusting
| Investeringspand | Nee |
|---|---|
| Rioolaansluiting | Nee |
| Gasaansluiting | Nee |
| Wateraansluiting | Nee |
| Elektriciteitsaansluiting | Nee |
| Internetaansluiting | Nee |
| Telefoonaansluiting | Nee |
Een pand van
JeSoLie Vastgoed
JESOLIE ‘GEWORTELD IN VASTGOED’
VERKOPEN - VERHUREN - INVESTEREN
1 professioneel aanspreekpunt, met een stevig fundament gesteund op kennis en ervaring.
In verbinding met een breed netwerk van experts en een ruim en aantrekkelijk klantenbestand.
Correct advies en zorgvuldige opvolging - tot in de puntjes.
2025.09CC
Leer meer over vastgoed
23 March 2026
Op Spotto zoeken als een pro: 10 slimme tips
21 March 2026
Hoeveel kan ik lenen om een huis te kopen?
01 March 2026
Wanneer heb ik een bouwvergunning of omgevingsvergunning nodig?
17 February 2026