Rustig gelegen bouwgrond van 4a73ca voor OB met bouwplannen!
€ 145.000
Een pand van Empresa Consult
Overzicht
- 473 m² grond
- 4 Slaapkamer(s)
- 2 Badkamer(s)
- 2 Toilet(ten)
Overstromingsgevaar perceel
Beschrijving
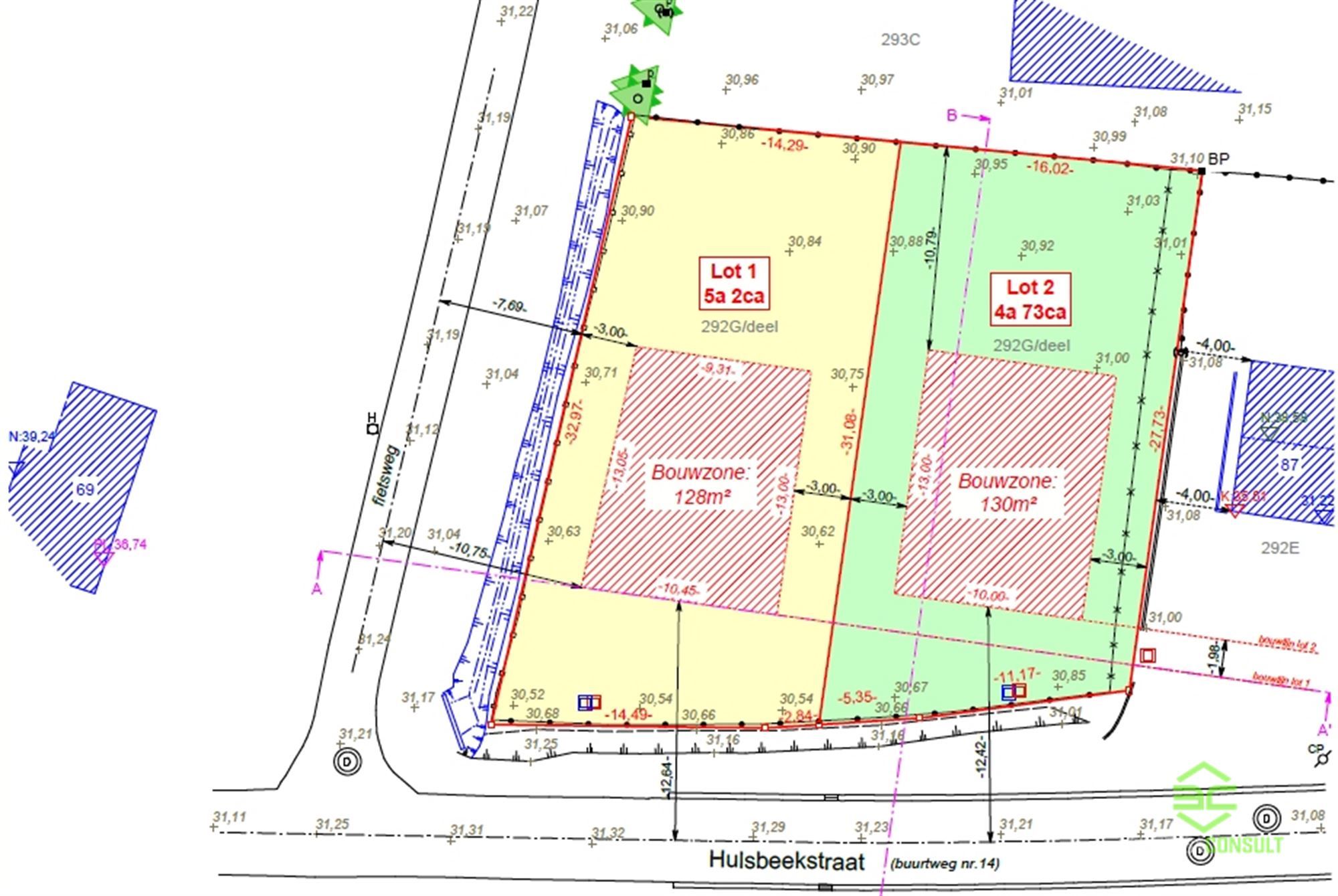
In een rustige straat, net buiten het centrum van Geetbets, vinden we dit perceel bouwgrond van 4a 73ca geschikt voor een open bebouwing.
In de omgeving liggen er verschillende natuurgebieden en zijn er verschillende mogelijkheden tot ontspanning.
Het centrum van Geetbets ligt op slechts 2km en hier vinden we alle nodige voorzieningen terug. Zoals een kleuter- en bassischool, supermarkt, postkantoor, horeca, …
Het perceel heeft een straatbreedte van ± 16,52m en een diepte van ±28m.
Dit zorgt voor een bouwbreedte van maximum 10m en een bouwdiepte van 13m op het gelijkvloers en 11m op de eerste verdieping.
De bouwvoorschriften zijn onder meer:
- nevenbestemming zijn toegelaten complementair aan het wonen, zoals kantoor, vrij beroep, handel en met een totale oppervlakte van max 100m²
- Naast het hoofdgebouw is er één bijgebouw (garage, bergplaats of tuinhuis) toegestaan van 20m²
- Maximum 2 bouwlagen
- Dakvorm is vrij te kiezen. Dakhelling moet tussen de 0° en 50° liggen
Een bijkomende troef is dat er voor dit perceel in november 2023 al reeds een bouwvergunning werd goedgekeurd. Hierdoor kan de nieuwe eigenaar onmiddellijk starten met de bouw van de woning.
Het ontwerp voorziet een ruime ééngezinswoning in landelijke stijl met op het gelijkvloers een leefruimte, eetkamer, open keuken, berging en gastentoilet. Op de eerste verdieping zijn er drie slaapkamers, twee badkamers en een apart toilet voorzien. De zolder biedt nog mogelijkheid tot uitbreiding door de vaste trap.
Stuur ons een mailtje en we bezorgen u vrijblijvend alle nodige info!
Energie
- E-peil: E0
- Beglazing: Onbekend
Op de kaart

Financieel
| Prijs | |
|---|---|
| Kadastraal inkomen (niet geïndexeerd) | € 0 |
| Kadastraal inkomen (geïndexeerd) | € 0 |
Berekening kosten
Je aankoopkosten? Die heb je snel berekent via de knop hieronder.
Bijkomende info
Gebouw
| Bouwcertificaat | Nee |
|---|
Perceel
| Diepte (m) | 31 |
|---|---|
| Breedte (m) | 16 |
| Overstromingsgevoelig | Geen |
| P-score | D |
| Voorkeurrecht | Nee |
| Totale oppervlakte (m²) | 473 |
| Oriëntatie tuin | Zuid |
Vergunning
| Vergunning | Vergunning beschikbaar |
|---|---|
| Verkavelingsvergunning | Vergunning beschikbaar |
Uitrusting
| Investeringspand | Nee |
|---|---|
| Rioolaansluiting | Nee |
| Gasaansluiting | Nee |
| Wateraansluiting | Nee |
| Elektriciteitsaansluiting | Nee |
| TV aansluiting | Nee |
| Internetaansluiting | Nee |
| Telefoonaansluiting | Nee |