Nieuw
Ruim perceel bouwgrond (10a04ca) voor open bebouwing
€ 159.000
Overzicht
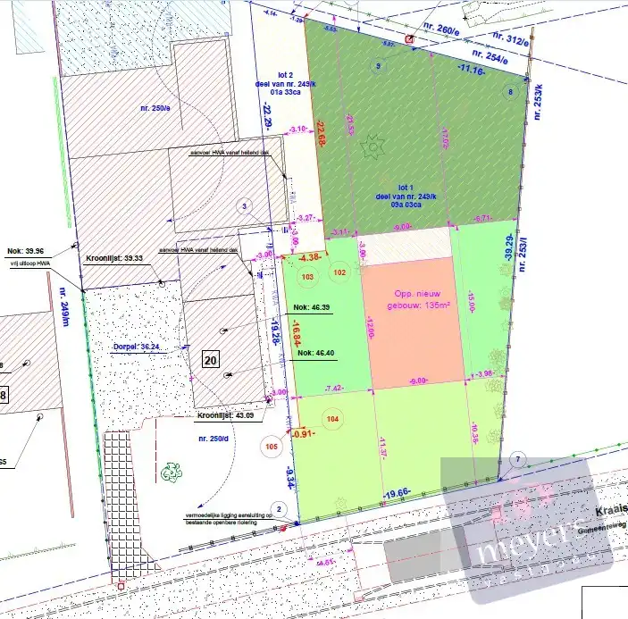
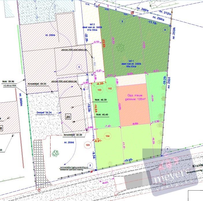
- 1004 m² grond
Beschrijving
In het rustige en groene Rummen, deelgemeente van Geetbets, vinden we in de Kraaistraat 20 deze mooie bouwgrond van 10a04ca terug. De ligging is ideaal voor wie houdt van landelijk wonen met een vleugje sereniteit. Je geniet hier van een rustige straat zonder doorgaand verkeer, terwijl scholen, buurtwinkels, openbaar vervoer en de gezellige dorpskern op korte afstand bereikbaar zijn. Ook Zoutleeuw, Geetbets en Kortenaken liggen op vlotte rijafstand.
De achterzijde van het perceel grenst aan agrarisch gebied, waardoor je gegarandeerd bent van blijvend groen uitzicht en maximale privacy. Hier geniet je van rust, ruimte en een landelijke omgeving die zeldzaam wordt.
Het perceel is bestemd voor open bebouwing en biedt tal van mogelijkheden om jouw droomwoning te realiseren. Bovendien is er geen bouwverplichting, zodat je volledig op eigen tempo kunt plannen, sparen en ontwerpen. Bouw wanneer het voor jou past — een luxe die niet meer vaak voorkomt.
Ideaal voor o.a.:
Een perceel met potentieel, vrijheid en een prachtige ligging — klaar om jouw bouwdromen waar te maken.
De achterzijde van het perceel grenst aan agrarisch gebied, waardoor je gegarandeerd bent van blijvend groen uitzicht en maximale privacy. Hier geniet je van rust, ruimte en een landelijke omgeving die zeldzaam wordt.
Het perceel is bestemd voor open bebouwing en biedt tal van mogelijkheden om jouw droomwoning te realiseren. Bovendien is er geen bouwverplichting, zodat je volledig op eigen tempo kunt plannen, sparen en ontwerpen. Bouw wanneer het voor jou past — een luxe die niet meer vaak voorkomt.
Ideaal voor o.a.:
- Gezinnen die dromen van een ruime tuin voor spel, ontspanning en privacy
- Rustzoekers die het stadsleven willen ontvluchten en genieten van natuur rondom
- Mensen die een energiezuinige, toekomstgerichte nieuwbouwwoning willen realiseren
- Koppels die vooruit plannen en nu al een mooi gelegen perceel willen veiligstellen zonder druk om meteen te bouwen
- Hobbytuiniers of natuurliefhebbers die het landelijke uitzicht willen koesteren
- Investeerders die een mooi perceel willen toevoegen aan hun portefeuille
Een perceel met potentieel, vrijheid en een prachtige ligging — klaar om jouw bouwdromen waar te maken.
Energie
- E-peil: E0
- Beglazing: Onbekend
Op de kaart

Financieel
| Prijs |
|---|
Berekening kosten
Je aankoopkosten? Die heb je snel berekent via de knop hieronder.
Bijkomende info
Perceel
| Overstromingsgevoelig | Geen |
|---|---|
| P-score | A |
| Totale oppervlakte (m²) | 1004 |
| Oriëntatie tuin | Noordoost |
Vergunning
| Verkavelingsvergunning | Geen beschikbaar |
|---|
Uitrusting
| Investeringspand | Nee |
|---|---|
| Rioolaansluiting | Nee |
| Gasaansluiting | Nee |
| Wateraansluiting | Nee |
| Elektriciteitsaansluiting | Nee |
| Internetaansluiting | Nee |
| Telefoonaansluiting | Nee |
Leer meer over vastgoed
Nieuw
24 November 2025
Uitgezocht voor jouw gemeente: Hoeveel stijgt de waarde van je woning door een renovatie?
22 October 2025
Hoeveel kan ik lenen om een huis te kopen?
11 June 2025
Huis kopen met bouwovertreding? Dit moet je weten
11 May 2025