Nieuw
Villabouwgrond
€ 199.000
Een pand van BOND immo
Overzicht
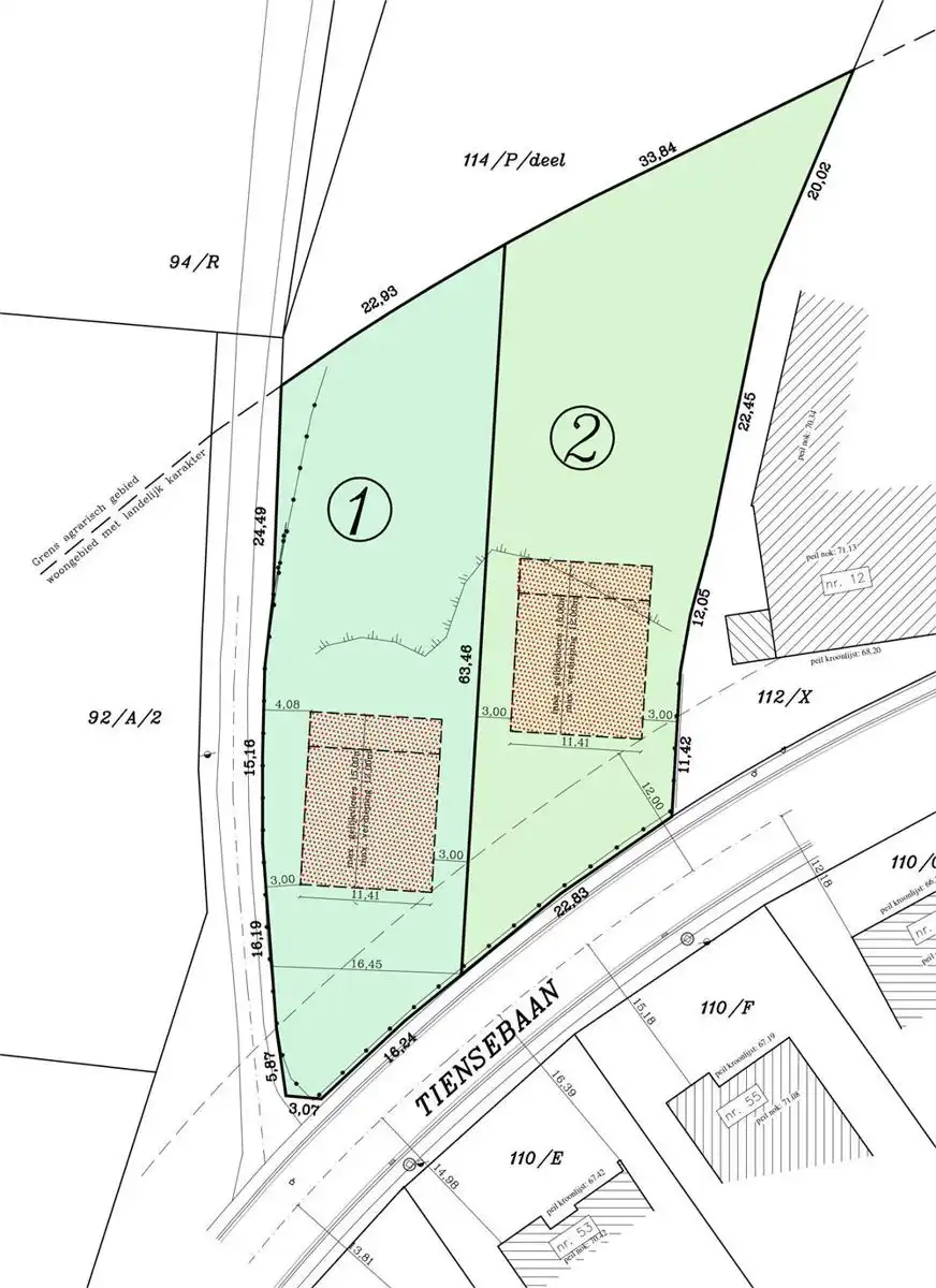
- 1258 m² grond
Beschrijving
LAATSTE PERCEEL! Zeer landelijk gelegen VILLABOUWGROND (lot 2) met een oppervlakte van 12,58 are en een wijds vergezicht op de weilanden en akkers. Met een straatbreedte van 22,83m en een zuidoost georiênteerde tuin, is deze bouwgrond een opportuniteit. Er is geen bouwverplichting! De maximale bewoonbare oppervlakte voor een nieuwbouw woning bedraagt 308m² (+ ev. zolder en kelder), de maximale bebouwde grondoppervlakte van een nieuwbouw woning is 171,15 m².
Bouwvoorschriften : de woning moet ingeplant worden op 12m uit de as van de weg en op min. 3m van de zijdelingse perceelsgrenzen, de dakvorm is vrij van keuze. Complementaire bedrijvigheid is eveneens toegestaan tot max 100m².
VP 199.000 EUR. Voor meer informatie mail naar info@bondimmo.be.
Bouwvoorschriften : de woning moet ingeplant worden op 12m uit de as van de weg en op min. 3m van de zijdelingse perceelsgrenzen, de dakvorm is vrij van keuze. Complementaire bedrijvigheid is eveneens toegestaan tot max 100m².
VP 199.000 EUR. Voor meer informatie mail naar info@bondimmo.be.
LAATSTE PERCEEL! Zeer landelijk gelegen VILLABOUWGROND (lot 2) met een oppervlakte van 12,58 are en een wijds vergezicht op de weilanden en akkers. Met een straatbreedte van 22,83m en een zuidoost georiênteerde tuin, is deze bouwgrond een opportuniteit. Er is geen bouwverplichting! De maximale bewoonbare oppervlakte voor een nieuwbouw woning bedraagt 308m² (+ ev. zolder en kelder), de maximale bebouwde grondoppervlakte van een nieuwbouw woning is 171,15 m².
Bouwvoorschriften : de woning moet ingeplant worden op 12m uit de as van de weg en op min. 3m van de zijdelingse perceelsgrenzen, de dakvorm is vrij van keuze. Complementaire bedrijvigheid is eveneens toegestaan tot max 100m².
VP 199.000 EUR. Voor meer informatie mail naar info@bondimmo.be.
Bouwvoorschriften : de woning moet ingeplant worden op 12m uit de as van de weg en op min. 3m van de zijdelingse perceelsgrenzen, de dakvorm is vrij van keuze. Complementaire bedrijvigheid is eveneens toegestaan tot max 100m².
VP 199.000 EUR. Voor meer informatie mail naar info@bondimmo.be.
Energie
Op de kaart

Downloads
- Verkavelingsplan.pdf (pdf)
- vastgoedinfo_lot_2.pdf (pdf)
- vastgoedinfo_lot_1.pdf (pdf)
- Omgevingsvergunning2.pdf (pdf)
Financieel
| Prijs |
|---|
Berekening kosten
Je aankoopkosten? Die heb je snel berekend via de knop hieronder.
Bijkomende info
Perceel
| P-score | A |
|---|---|
| Voorkeurrecht | Nee |
| Totale oppervlakte (m²) | 1258 |
Vergunning
| Vergunning | Geen beschikbaar |
|---|---|
| Verkavelingsvergunning | Vergunning beschikbaar |
| Bouwovertreding | Geen |
| Bouwovertreding dagvaardiging | Geen |
| Type gebied | Landelijk |
Uitrusting
| Wateraansluiting | Ja |
|---|---|
| Elektriciteitsaansluiting | Ja |
Een pand van
BOND immo
Bonding properties and people
BOND immo brengt een frisse, eigentijdse aanpak in vastgoed.
Met een duidelijke focus en veel betrokkenheid begeleiden we (ver)kopers en
(ver)huurders naar de juiste match. Altijd met oog voor detail en net dat extra
enthousiasme dat het verschil maakt.
Van eerste gesprek tot succesvolle afronding.
Let's BOND!
By IMMO VERIMASS & CDS IMMO
VK025003/24043
Leer meer over vastgoed
24 November 2025
Uitgezocht voor jouw gemeente: Hoeveel stijgt de waarde van je woning door een renovatie?
22 October 2025
Hoeveel kan ik lenen om een huis te kopen?
11 June 2025
Huis kopen met bouwovertreding? Dit moet je weten
11 May 2025