RENOVATIEPROJECT MET POTENTIEEL EN REEDS VERNIEUWDE VERDIEPING IN HARTJE KORTENAKEN
€ 225.000
Een pand van De woonmakers
Overzicht
- 560 m² grond
- 2 Slaapkamer(s)
- 2 Badkamer(s)
Beschrijving
Gelegen op een perceel van 5A40CA, biedt dit huis niet alleen een uitstekende locatie in het centrum, maar ook een wereld aan mogelijkheden voor wie graag de handen uit de mouwen steekt.
De woning dient nog gerenoveerd te worden, wat jou als koper de vrijheid geeft om het helemaal aan jouw smaak en behoeften in te richten. Ideaal voor de doe-het-zelvers of wie op zoek is naar een project met potentieel.
De reeds gerenoveerde master bedroom, dressing en badkamer op de bovenverdieping vormen alvast een prachtige basis om verder op te bouwen. Hier geniet je nu al van een moderne en comfortabele afwerking.
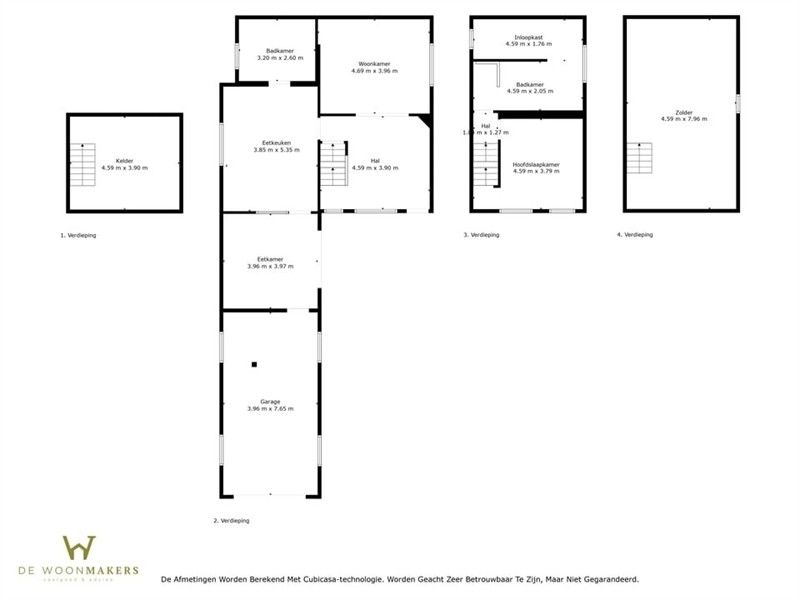
Beneden wacht een open canvas waar je je creativiteit op los kunt laten. De bestaande indeling biedt verschillende mogelijkheden om een gezellige leefruimte, keuken en eetkamer te creëren. De garage biedt niet alleen een plaats voor je wagen, maar ook extra opbergruimte. Boven de garage bevindt zich een bijkomende ruimte die perfect kan worden omgevormd tot een tweede slaapkamer, bureau of hobbyruimte.
De woning ligt op een steenworp van alle voorzieningen die Kortenaken te bieden heeft. Winkels, scholen, openbaar vervoer en horeca zijn allemaal vlot bereikbaar, en toch geniet je van de rustige en charmante sfeer van het dorpsplein.
Neem dan contact met ons op het nummer 011/98.88.98 of via info@dewoonmakers.be
Op zoek naar een woning waar je helemaal je eigen stempel op kan drukken? Dan is deze charmante woning aan het Kerkplein 4 in Kortenaken precies wat je zoekt!
Gelegen op een perceel van 5A40CA, biedt dit huis niet alleen een uitstekende locatie in het centrum, maar ook een wereld aan mogelijkheden voor wie graag de handen uit de mouwen steekt.
De woning dient nog gerenoveerd te worden, wat jou als koper de vrijheid geeft om het helemaal aan jouw smaak en behoeften in te richten. Ideaal voor de doe-het-zelvers of wie op zoek is naar een project met potentieel.
De reeds gerenoveerde master bedroom, dressing en badkamer op de bovenverdieping vormen alvast een prachtige basis om verder op te bouwen. Hier geniet je nu al van een moderne en comfortabele afwerking.
Beneden wacht een open canvas waar je je creativiteit op los kunt laten. De bestaande indeling biedt verschillende mogelijkheden om een gezellige leefruimte, keuken en eetkamer te creëren. De garage biedt niet alleen een plaats voor je wagen, maar ook extra opbergruimte. Boven de garage bevindt zich een bijkomende ruimte die perfect kan worden omgevormd tot een tweede slaapkamer, bureau of hobbyruimte.
De woning ligt op een steenworp van alle voorzieningen die Kortenaken te bieden heeft. Winkels, scholen, openbaar vervoer en horeca zijn allemaal vlot bereikbaar, en toch geniet je van de rustige en charmante sfeer van het dorpsplein. Dankzij de centrale ligging ben je bovendien snel in omliggende steden en dorpen.
Hebben wij uw interesse kunnen wekken voor deze woning met potentieel? Neem dan contact met ons op het nummer 011/98.88.98 of via info@dewoonmakers.be
De vermelde oppervlaktes zijn indicatief. De Woonmakers kan niet verantwoordelijk gesteld worden voor de juistheid van de door zijn verstrekte gegevens.
Energie
![]() |
- EPC Certificaat: 20250707-0003641540-RES-1
- Energieverbruik: 727 kWh/m²/jaar
- E-peil: E0
- Beglazing: Standaard dubbel
Extra budget nodig voor je renovatie?

Op de kaart

Financieel
| Prijs | |
|---|---|
| Kadastraal inkomen (niet geïndexeerd) | € 580 |
Berekening kosten
Je aankoopkosten? Die heb je snel berekent via de knop hieronder.
Bijkomende info
Gebouw
| Bouwjaar | 1950 |
|---|---|
| Staat | Te renoveren |
| Verdieping | 0 |
| Badkamers | 2 |
| Slaapkamers | 2 |
| Verdiepingen | 0 |
| Garages | 0 |
| Parkeerplaatsen | 0 |
| Toiletten | 0 |
Faciliteiten
| Keuken uitrusting | Standaard |
|---|---|
| Beglazing | Standaard dubbel |
| Septische tank | Nee |
Perceel
| Overstromingsgevoelig | Geen |
|---|---|
| P-score | A |
| G-score | A |
| Totale oppervlakte (m²) | 560 |
| Bebouwde oppervlakte (m²) | 0 |
Vergunning
| Verkavelingsvergunning | Geen beschikbaar |
|---|
Uitrusting
| Investeringspand | Nee |
|---|---|
| Parking | Nee |
| Garage | Nee |
| Lift | Nee |
| Rioolaansluiting | Nee |
| Gasaansluiting | Nee |
| Wateraansluiting | Nee |
| Elektriciteitsaansluiting | Nee |
| Internetaansluiting | Nee |
| Telefoonaansluiting | Nee |
| Zonnepanelen | Nee |
| Zonneboiler | Nee |
| Alarm | Nee |
| Videofoon | Nee |
| Grondwaterput | Nee |



