WONING VAN 200M² EN GROTE TUIN VAN 20A92CA TE KERMT
€ 269.000
Een pand van Het Vastgoedkantoor
Overzicht
- 200 m² bewoonbaar
- 2092 m² grond
- 4 Slaapkamer(s)
- 1 Badkamer(s)
- 1 Garage(s)
Beschrijving
Halfopen bebouwing van 200m² met renovatiepotentieel en grote tuin van 20a92 te Kermt.
Belangrijkste troeven:
- Centrale ligging
- Grote tuin van 20a92 met een groene omgeving aan de achterkant
- 4 slaapkamers
- Volledig onderkelderd
- Muren en zolder zijn reeds geïsoleerd dus geen renovatieverplichting
- Garage in de tuin
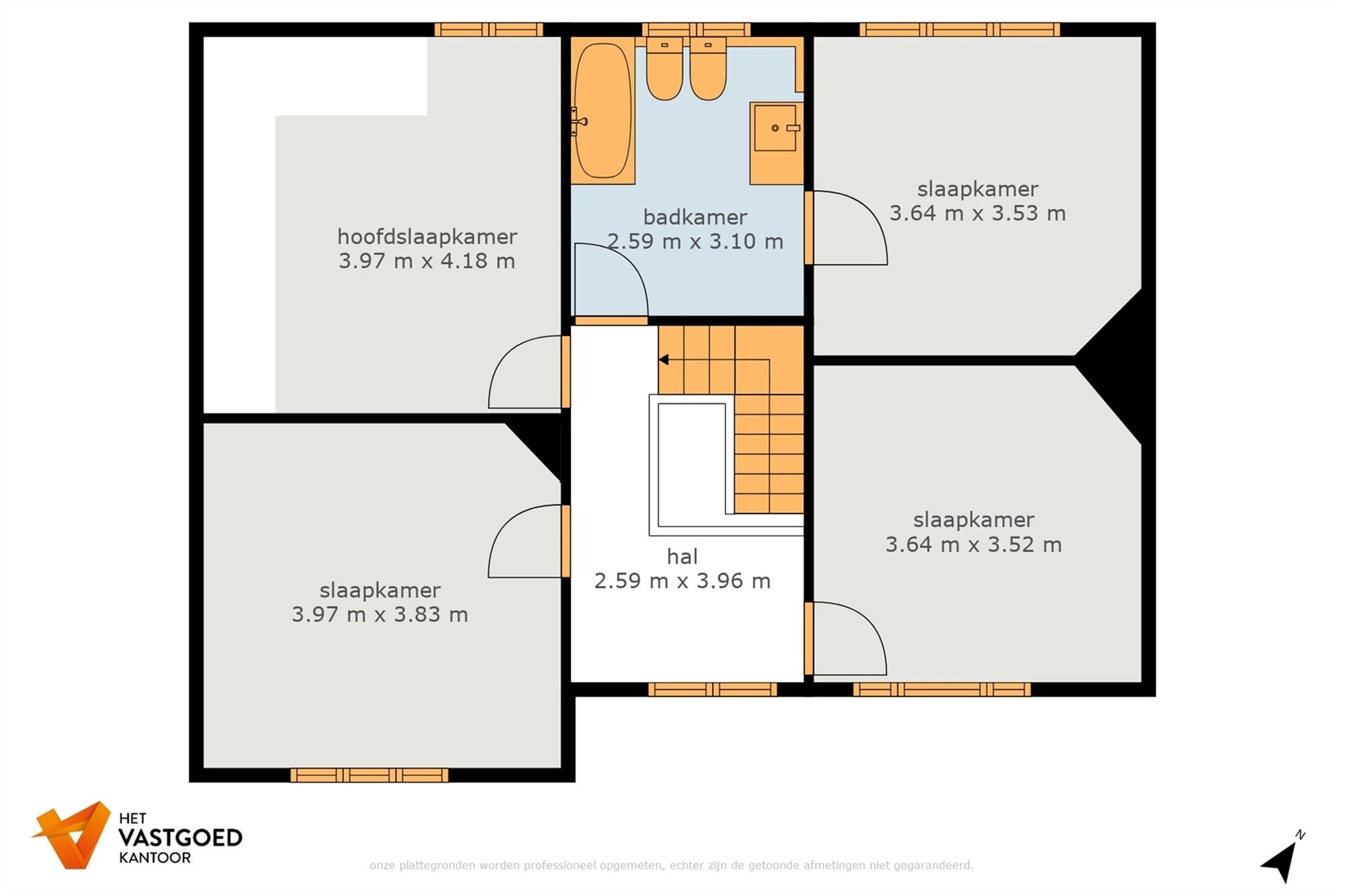
Bekijk zeker ook de grondplannen met de afmetingen. Zo krijgt u van thuis uit al een perfect beeld van wat deze woning te bieden heeft!
Wenst u meer info of een vrijblijvende bezichtiging, contacteer dan ons kantoor op het nummer 011 85 15 15 en wij helpen u graag verder.
Energie
![]() |
- EPC Certificaat: 20241105-0003436867-RES-1
- Energieverbruik: 390 kWh/m²/jaar
- E-peil: E0
- Beglazing: Enkel
Extra budget nodig voor je renovatie?
De overheid helpt je dit pand energetisch te renoveren! Hieronder zie je het premiebedrag dat je mogelijks van de overheid krijgt.
Het huidige EPC-label is:

Op de kaart

Financieel
Prijs | |
---|---|
Kadastraal inkomen (niet geïndexeerd) | € 0 |
Kadastraal inkomen (geïndexeerd) | € 0 |
Berekening kosten
Je aankoopkosten? Die heb je snel berekent via de knop hieronder.
Bijkomende info
Gebouw
Bouwcertificaat | Nee |
---|---|
Bewoonbaar (m²) | 200 |
Verdieping | 2 |
Badkamers | 1 |
Slaapkamers | 4 |
Verdiepingen | 0 |
Garages | 1 |
Parkeerplaatsen | 0 |
Doucheruimtes | 0 |
Toiletten | 0 |
Faciliteiten
Materiaal ramenomlijstingen | Hout |
---|---|
Beglazing | Enkel |
Elektrisch keuringsattest | Nee |
Perceel
Overstromingsgevoelig | Geen |
---|---|
P-score | A |
G-score | A |
Voorkeurrecht | Nee |
Totale oppervlakte (m²) | 2092 |
Bebouwde oppervlakte (m²) | 0 |
Tuin oppervlakte (m²) | 0 |
Oppervlakte terras (m²) | 0 |
Uitrusting
Investeringspand | Nee |
---|---|
Geschikt voor praktijk | Nee |
Parking | Nee |
Garage | Ja |
Thuiskantoor | Nee |
Kelder | Nee |
Zolder | Nee |
Tuin | Nee |
Terras | Nee |
Lift | Nee |
Rioolaansluiting | Nee |
Gasaansluiting | Nee |
Wateraansluiting | Nee |
Elektriciteitsaansluiting | Nee |
TV aansluiting | Nee |
Internetaansluiting | Nee |
Telefoonaansluiting | Nee |
Een pand van
Het Vastgoedkantoor
Het Vastgoedkantoor
Een nieuw begin, Welkom thuis!
Koorstraat 9, Kermt
Leer meer over vastgoed
11 June 2025
Huis kopen met bouwovertreding? Dit moet je weten
11 May 2025
Renoveren? Vraag je Mijn VerbouwPremie aan
22 April 2025
Je allereerste renovatieproject selecteren én budgetteren: met de praktische hulp van Spotto
17 February 2025