Nieuw
GERENOVEERD EN ENERGIEZUINIG 3 SLAAPKAMER APPARTEMENT 121M²
Een pand van Vestio
Favoriet
Jouw zoektocht
Jouw scoretabel voor dit pand
Aan het laden...
Jouw geplande bezichtigingen
Aan het laden...
Overzicht
- 121 m² bewoonbaar
- 3 Slaapkamer(s)
- 1 Badkamer(s)
- 1 Toilet(ten)
- 1 Garage(s)
Beschrijving
GERENOVEERD EN ENERGIEZUINIG 3 SLAAPKAMER APPARTEMENT 121M²
Dit verrassend ruime appartement is gelegen in het centrum van Helchteren met een goede bereikbaarheid naar zowel winkels, scholen, restaurants als de oprit van de E314. Aangezien het appartement verhuurd is aan 850 euro per maand is dit ook zeer goede investering met een mooi rendement!
Het appartement werd doorheen de jaren grondig gerenoveerd: zo werden de vloeren, ramen + rolluiken vernieuwd, een nieuwe keuken geplaatst, airco/inverters + 12 privatieve zonnepanelen geïnstalleerd. Dit alles resulteert in een zeer gunstig EPC label B ( EPC score 112 )
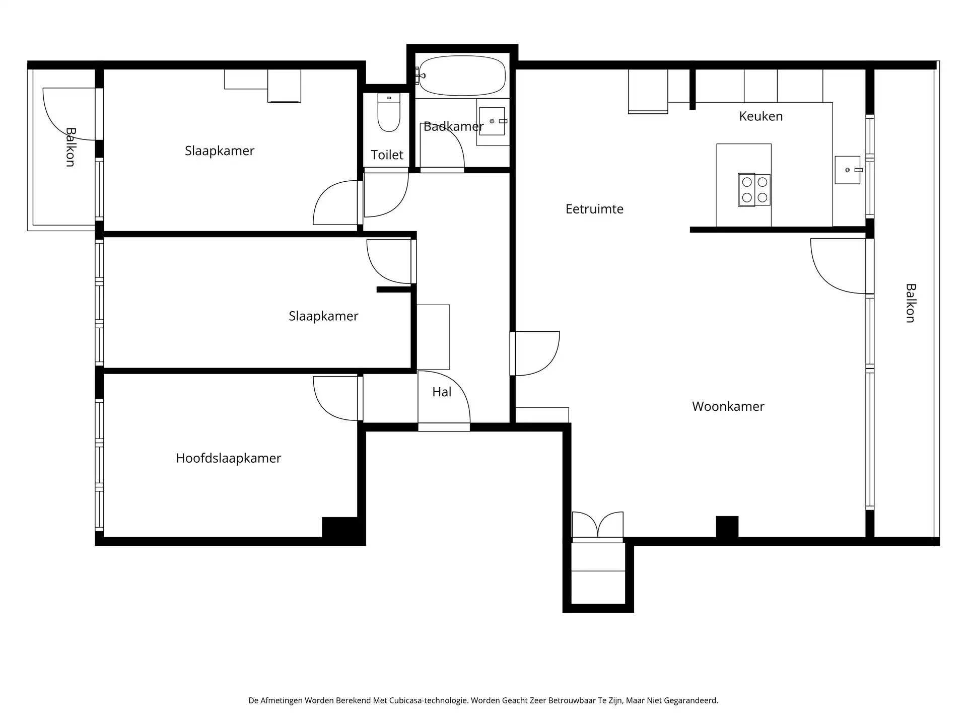
Het lichtrijke appartement is gelegen op de tweede verdieping en is toegankelijk via zowel een trap als een lift. De leefruimte beslaat een oppervlakte van maar liefst 55 m² opgedeeld in een zithoek, een eetplaats en een moderne keuken. Dankzij de grote raampartijen kan u hier genieten van heel wat natuurlijke lichtinval. Bovendien beschikt u over een terras aan de voorzijde en een balkon aan de achterzijde.
Voorts beschikt over een ruime inkomhal, 3 grote slaapkamers, een gastentoilet en een badkamer. Uw wagen kan u stallen in uw private garagebox en extra opbergruimte is voorzien in uw kelderberging.
Enkele TROEVEN van dit appartement opgelijst:
+ Energiezuinig: EPC is slechts 112!!!
+ Voorzien van 12 privatieve zonnepanelen x 375 Wp
+ Gebouw voorzien van lift
+ Ideale investering: mooie huuropbrengst
+ Lichtrijk appartement 121 m² met 3 slaapkamers
+ Terras aan voorzijde + balkon aan achterzijde
+ Garagebox + kelderberging inbegrepen
+ Airco / inverter voorzien
+ Rolluiken + zonneluifel
Kortom, een zeer ruim, gerenoveerd en energiezuinig appartement voor iemand die op zoek is naar veel waar voor zijn geld! Meer info? Contacteer Maarten Delbroek via maarten@vestio.com of bel naar 0471/034804.
Dit verrassend ruime appartement is gelegen in het centrum van Helchteren met een goede bereikbaarheid naar zowel winkels, scholen, restaurants als de oprit van de E314. Aangezien het appartement verhuurd is aan 850 euro per maand is dit ook zeer goede investering met een mooi rendement!
Het appartement werd doorheen de jaren grondig gerenoveerd: zo werden de vloeren, ramen + rolluiken vernieuwd, een nieuwe keuken geplaatst, airco/inverters + 12 privatieve zonnepanelen geïnstalleerd. Dit alles resulteert in een zeer gunstig EPC label B ( EPC score 112 )
Het lichtrijke appartement is gelegen op de tweede verdieping en is toegankelijk via zowel een trap als een lift. De leefruimte beslaat een oppervlakte van maar liefst 55 m² opgedeeld in een zithoek, een eetplaats en een moderne keuken. Dankzij de grote raampartijen kan u hier genieten van heel wat natuurlijke lichtinval. Bovendien beschikt u over een terras aan de voorzijde en een balkon aan de achterzijde.
Voorts beschikt over een ruime inkomhal, 3 grote slaapkamers, een gastentoilet en een badkamer. Uw wagen kan u stallen in uw private garagebox en extra opbergruimte is voorzien in uw kelderberging.
Enkele TROEVEN van dit appartement opgelijst:
+ Energiezuinig: EPC is slechts 112!!!
+ Voorzien van 12 privatieve zonnepanelen x 375 Wp
+ Gebouw voorzien van lift
+ Ideale investering: mooie huuropbrengst
+ Lichtrijk appartement 121 m² met 3 slaapkamers
+ Terras aan voorzijde + balkon aan achterzijde
+ Garagebox + kelderberging inbegrepen
+ Airco / inverter voorzien
+ Rolluiken + zonneluifel
Kortom, een zeer ruim, gerenoveerd en energiezuinig appartement voor iemand die op zoek is naar veel waar voor zijn geld! Meer info? Contacteer Maarten Delbroek via maarten@vestio.com of bel naar 0471/034804.
Energie
![]() |
- Energieverbruik: 121 kWh/m²/jaar
- E-peil: E0
- Beglazing: Standaard dubbel
Op de kaart

Financieel
| Prijs | |
|---|---|
| Kadastraal inkomen (niet geïndexeerd) | € 840 |
Berekening kosten
Je aankoopkosten? Die heb je snel berekend via de knop hieronder.
Bijkomende info
Gebouw
| Bouwjaar | 1969 |
|---|---|
| Renovatie jaar | 2012 |
| Staat | Goed onderhouden |
| Bewoonbaar (m²) | 121 |
| Verdieping | 2 |
| Badkamers | 1 |
| Slaapkamers | 3 |
| Verdiepingen | 3 |
| Garages | 1 |
| Parkeerplaatsen | 0 |
| Toiletten | 1 |
Faciliteiten
| Beglazing | Standaard dubbel |
|---|---|
| Septische tank | Nee |
Perceel
| P-score | A |
|---|---|
| G-score | A |
| Bebouwde oppervlakte (m²) | 0 |
| Oppervlakte terras (m²) | 8 |
| Oriëntatie tuin | Oost |
Vergunning
| Verkavelingsvergunning | Geen beschikbaar |
|---|
Uitrusting
| Investeringspand | Nee |
|---|---|
| Parking | Nee |
| Garage | Ja |
| Terras | Ja |
| Lift | Ja |
| Rioolaansluiting | Nee |
| Gasaansluiting | Nee |
| Wateraansluiting | Ja |
| Elektriciteitsaansluiting | Ja |
| Internetaansluiting | Ja |
| Telefoonaansluiting | Nee |
| Zonnepanelen | Ja |
| Zonneboiler | Nee |
| Alarm | Nee |
| Videofoon | Ja |
| Grondwaterput | Nee |
Appartementsblok
| Aantal verdiepingen | 3 |
|---|---|
| Lift | Ja |
| Intercom | Nee |
Een pand van
Vestio
Vangronsveld & Somers, thuis in ontwikkeling
Vestio staat voor 'Vangronsveld & Somers, thuis in ontwikkeling'. Vestio is actief in de realisatie van residentiële vastgoedprojecten op toplocaties in het binnenland en aan de Belgische kust in Knokke. Daarbij hecht de vastgoedspecialist veel belang aan een goede begeleiding. Vestio biedt ook assistentie bij de projectontwikkeling van woningen, appartementen, retail, verkavelingen, woon- en zorgcentra en de koop en verkoop van bestaand vastgoed. Een totaalaanpak die al meer dan 20 jaar werkt en tot heel wat exclusieve woonprojecten heeft geleid.
VKTK0516-MD
Leer meer over vastgoed
23 March 2026
Op Spotto zoeken als een pro: 10 slimme tips
21 March 2026
Hoeveel kan ik lenen om een huis te kopen?
01 March 2026
Wanneer heb ik een bouwvergunning of omgevingsvergunning nodig?
17 February 2026
