Jouw zoektocht
Jouw scoretabel voor dit pand
Aan het laden...
Jouw geplande bezichtigingen
Aan het laden...
Overzicht
- 382 m² grond
Beschrijving
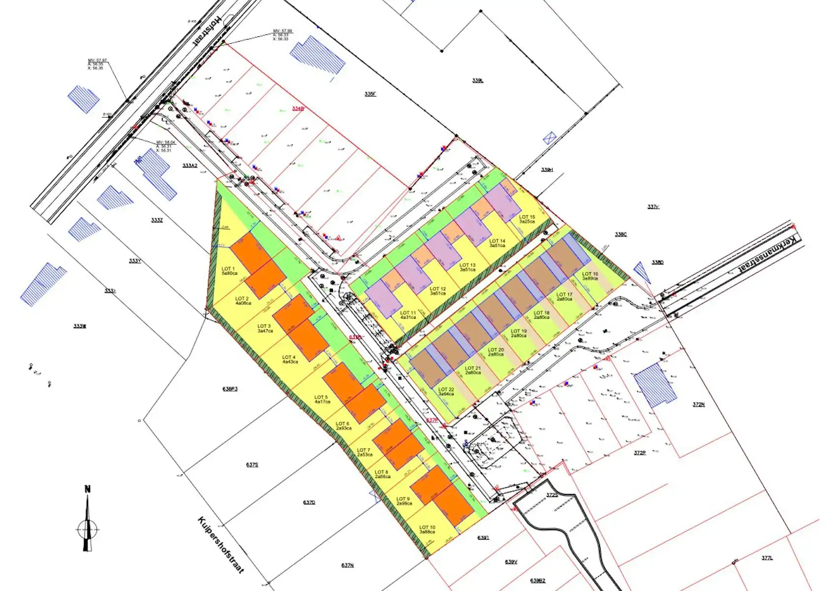
Bouwgrond van 3a 82ca voor geschakelde bebouwing in nieuwe verkaveling gelegen in het binnengebied tussen de Hofstraat en de Kerkmansstraat.
Beknopte bouwvoorschriften:
- bouwdiepte: maximaal zoals aangeduid als zone voor hoofdgebouw op het verkavelingsplan, maximum bouwdiepte op verdieping is gelijk aan het gelijkvloers
- bouwbreedte: maximaal zoals aangeduid als zone voor hoofdgebouw op het verkavelingsplan
- bouwhoogte: maximum 2 bouwlagen en maximum 3 bouwlagen aan de kant van het pad met de 3e bouwlaag in het talud
- enkel plat dak is toegestaan, dakrandhoogte maximum 7m
- gevelmateriaal: enkel duurzame en esthetisch verantwoorde materialen zijn toegelaten
- voortuin: verhardingen worden tot een minimum beperkt en zoveel als mogelijk aangelegd in waterdoorlatende materialen
- achtertuin: verhardingen worden tot een minimum beperkt en aangelegd in waterdoorlatende materialen. Enkel een terras van max. 20m² kan aangelegd worden in niet-waterdoorlatende materialen. Een tuinberging met een maximum oppervlak van 9m² is toegelaten.
- zone voor inrit naar ondergrondse parking mag over een breedte van maximaal 3m verhard worden
- Bewonersparkeren dient op eigen terrein te worden georganiseerd. In de zone voor schakelelement dient een inpandige garage gebouwd te worden in de kelder.
- De zone aangeduid met 'groenscherm' moet verplicht aangelegd worden met een dubbele rij groenblijvende haag.
Beknopte bouwvoorschriften:
- bouwdiepte: maximaal zoals aangeduid als zone voor hoofdgebouw op het verkavelingsplan, maximum bouwdiepte op verdieping is gelijk aan het gelijkvloers
- bouwbreedte: maximaal zoals aangeduid als zone voor hoofdgebouw op het verkavelingsplan
- bouwhoogte: maximum 2 bouwlagen en maximum 3 bouwlagen aan de kant van het pad met de 3e bouwlaag in het talud
- enkel plat dak is toegestaan, dakrandhoogte maximum 7m
- gevelmateriaal: enkel duurzame en esthetisch verantwoorde materialen zijn toegelaten
- voortuin: verhardingen worden tot een minimum beperkt en zoveel als mogelijk aangelegd in waterdoorlatende materialen
- achtertuin: verhardingen worden tot een minimum beperkt en aangelegd in waterdoorlatende materialen. Enkel een terras van max. 20m² kan aangelegd worden in niet-waterdoorlatende materialen. Een tuinberging met een maximum oppervlak van 9m² is toegelaten.
- zone voor inrit naar ondergrondse parking mag over een breedte van maximaal 3m verhard worden
- Bewonersparkeren dient op eigen terrein te worden georganiseerd. In de zone voor schakelelement dient een inpandige garage gebouwd te worden in de kelder.
- De zone aangeduid met 'groenscherm' moet verplicht aangelegd worden met een dubbele rij groenblijvende haag.
Bouwgrond van 3a 82ca voor geschakelde bebouwing in nieuwe verkaveling gelegen in het binnengebied tussen de Hofstraat en de Kerkmansstraat.
Beknopte bouwvoorschriften:
- bouwdiepte: maximaal zoals aangeduid als zone voor hoofdgebouw op het verkavelingsplan, maximum bouwdiepte op verdieping is gelijk aan het gelijkvloers
- bouwbreedte: maximaal zoals aangeduid als zone voor hoofdgebouw op het verkavelingsplan
- bouwhoogte: maximum 2 bouwlagen en maximum 3 bouwlagen aan de kant van het pad met de 3e bouwlaag in het talud
- enkel plat dak is toegestaan, dakrandhoogte maximum 7m
- gevelmateriaal: enkel duurzame en esthetisch verantwoorde materialen zijn toegelaten
- voortuin: verhardingen worden tot een minimum beperkt en zoveel als mogelijk aangelegd in waterdoorlatende materialen
- achtertuin: verhardingen worden tot een minimum beperkt en aangelegd in waterdoorlatende materialen. Enkel een terras van max. 20m² kan aangelegd worden in niet-waterdoorlatende materialen. Een tuinberging met een maximum oppervlak van 9m² is toegelaten.
- zone voor inrit naar ondergrondse parking mag over een breedte van maximaal 3m verhard worden
- Bewonersparkeren dient op eigen terrein te worden georganiseerd. In de zone voor schakelelement dient een inpandige garage gebouwd te worden in de kelder.
- De zone aangeduid met 'groenscherm' moet verplicht aangelegd worden met een dubbele rij groenblijvende haag.
Beknopte bouwvoorschriften:
- bouwdiepte: maximaal zoals aangeduid als zone voor hoofdgebouw op het verkavelingsplan, maximum bouwdiepte op verdieping is gelijk aan het gelijkvloers
- bouwbreedte: maximaal zoals aangeduid als zone voor hoofdgebouw op het verkavelingsplan
- bouwhoogte: maximum 2 bouwlagen en maximum 3 bouwlagen aan de kant van het pad met de 3e bouwlaag in het talud
- enkel plat dak is toegestaan, dakrandhoogte maximum 7m
- gevelmateriaal: enkel duurzame en esthetisch verantwoorde materialen zijn toegelaten
- voortuin: verhardingen worden tot een minimum beperkt en zoveel als mogelijk aangelegd in waterdoorlatende materialen
- achtertuin: verhardingen worden tot een minimum beperkt en aangelegd in waterdoorlatende materialen. Enkel een terras van max. 20m² kan aangelegd worden in niet-waterdoorlatende materialen. Een tuinberging met een maximum oppervlak van 9m² is toegelaten.
- zone voor inrit naar ondergrondse parking mag over een breedte van maximaal 3m verhard worden
- Bewonersparkeren dient op eigen terrein te worden georganiseerd. In de zone voor schakelelement dient een inpandige garage gebouwd te worden in de kelder.
- De zone aangeduid met 'groenscherm' moet verplicht aangelegd worden met een dubbele rij groenblijvende haag.
Energie
Op de kaart

Downloads
Financieel
| Prijs |
|---|
Berekening kosten
Je aankoopkosten? Die heb je snel berekend via de knop hieronder.
Bijkomende info
Perceel
| Diepte (m) | 28 |
|---|---|
| Overstromingsgevoelig | Geen |
| P-score | A |
| Voorkeurrecht | Nee |
| Totale oppervlakte (m²) | 382 |
Vergunning
| Vergunning | Geen beschikbaar |
|---|---|
| Verkavelingsvergunning | Vergunning beschikbaar |
| Bouwovertreding | Geen |
| Bouwovertreding dagvaardiging | Geen |
Leer meer over vastgoed
23 March 2026
Op Spotto zoeken als een pro: 10 slimme tips
21 March 2026
Hoeveel kan ik lenen om een huis te kopen?
01 March 2026
Wanneer heb ik een bouwvergunning of omgevingsvergunning nodig?
17 February 2026