Jouw zoektocht
Jouw scoretabel voor dit pand
Aan het laden...
Jouw geplande bezichtigingen
Aan het laden...
Overzicht
- 417 m² grond
Beschrijving
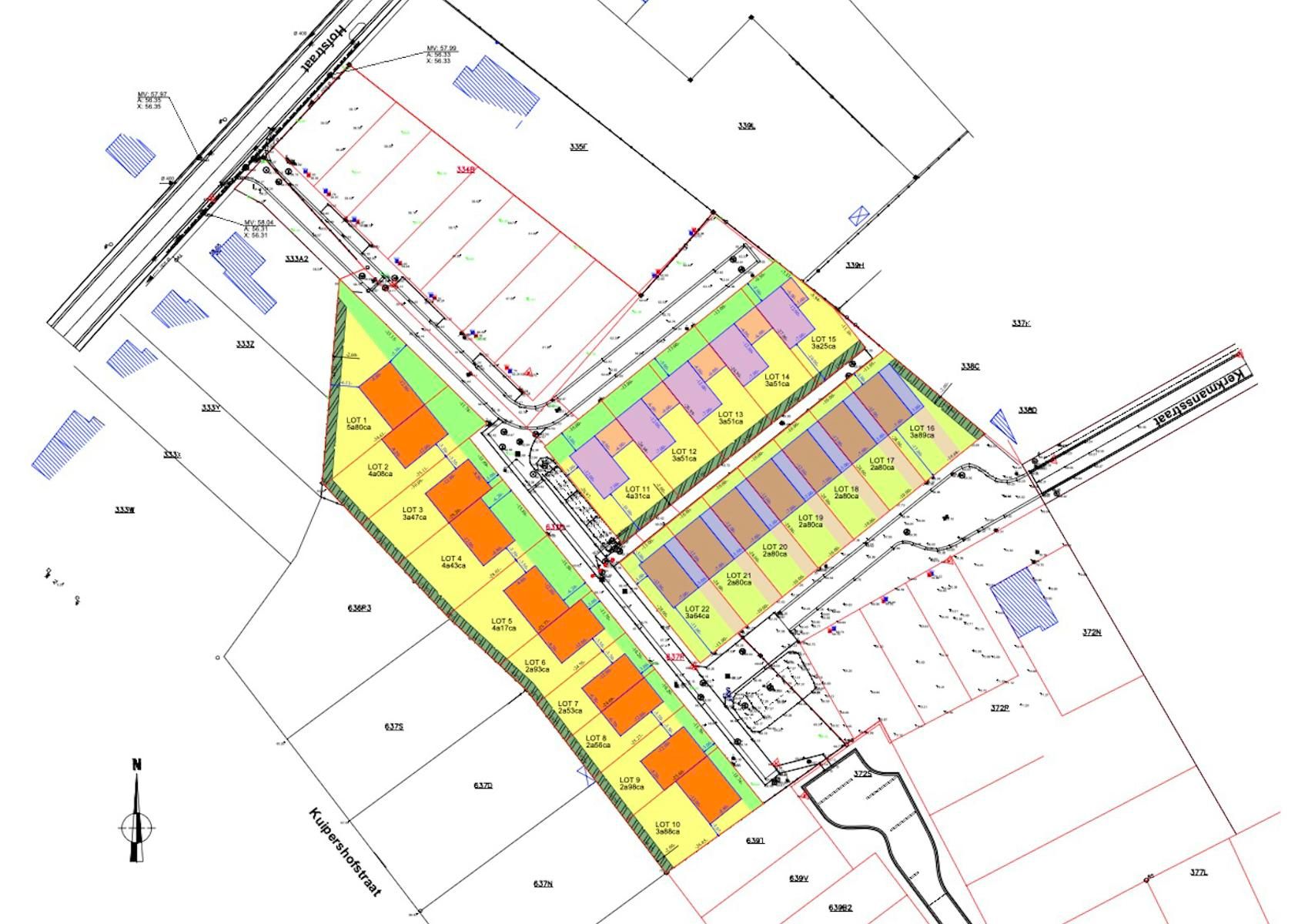
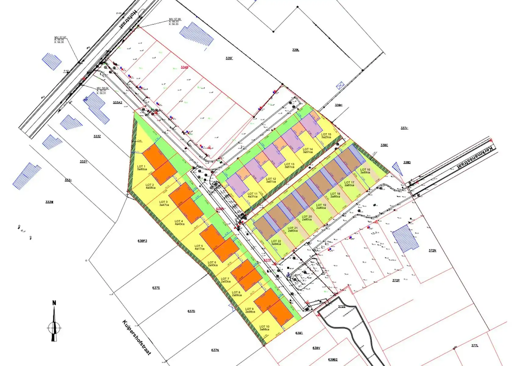
Bouwgrond van 4a 17ca voor half-open bebouwing in nieuwe verkaveling gelegen in het binnengebied tussen de Hofstraat en de Kerkmansstraat.
Beknopte bouwvoorschriften:
- bouwdiepte: maximaal zoals aangeduid op het verkavelingsplan, maximum bouwdiepte op verdieping is gelijk aan het gelijkvloers
- bouwbreedte: maximaal zoals aangeduid op het verkavelingsplan
- bouwhoogte: maximum 2 bouwlagen
- enkel plat dak is toegestaan, dakrandhoogte maximum 7m
- gevelmateriaal: enkel duurzame en esthetisch verantwoorde materialen zijn toegelaten
- voortuin: verhardingen worden tot een minimum beperkt en zoveel als mogelijk aangelegd in waterdoorlatende materialen
- achtertuin: verhardingen worden tot een minimum beperkt en aangelegd in waterdoorlatende materialen. Enkel een terras van max. 20m² kan aangelegd worden in niet-waterdoorlatende materialen. Een tuinberging met een maximum oppervlak van 9m² is toegelaten.
- bewonersparkeren dient op eigen terrein te worden georganiseerd in de vorm van inpandige garage of niet-overdekt parkeren
- De zone aangeduid met 'groenscherm' moet verplicht aangelegd worden met een dubbele rij groenblijvende haag.
Beknopte bouwvoorschriften:
- bouwdiepte: maximaal zoals aangeduid op het verkavelingsplan, maximum bouwdiepte op verdieping is gelijk aan het gelijkvloers
- bouwbreedte: maximaal zoals aangeduid op het verkavelingsplan
- bouwhoogte: maximum 2 bouwlagen
- enkel plat dak is toegestaan, dakrandhoogte maximum 7m
- gevelmateriaal: enkel duurzame en esthetisch verantwoorde materialen zijn toegelaten
- voortuin: verhardingen worden tot een minimum beperkt en zoveel als mogelijk aangelegd in waterdoorlatende materialen
- achtertuin: verhardingen worden tot een minimum beperkt en aangelegd in waterdoorlatende materialen. Enkel een terras van max. 20m² kan aangelegd worden in niet-waterdoorlatende materialen. Een tuinberging met een maximum oppervlak van 9m² is toegelaten.
- bewonersparkeren dient op eigen terrein te worden georganiseerd in de vorm van inpandige garage of niet-overdekt parkeren
- De zone aangeduid met 'groenscherm' moet verplicht aangelegd worden met een dubbele rij groenblijvende haag.
Bouwgrond van 4a 17ca voor half-open bebouwing in nieuwe verkaveling gelegen in het binnengebied tussen de Hofstraat en de Kerkmansstraat.
Beknopte bouwvoorschriften:
- bouwdiepte: maximaal zoals aangeduid op het verkavelingsplan, maximum bouwdiepte op verdieping is gelijk aan het gelijkvloers
- bouwbreedte: maximaal zoals aangeduid op het verkavelingsplan
- bouwhoogte: maximum 2 bouwlagen
- enkel plat dak is toegestaan, dakrandhoogte maximum 7m
- gevelmateriaal: enkel duurzame en esthetisch verantwoorde materialen zijn toegelaten
- voortuin: verhardingen worden tot een minimum beperkt en zoveel als mogelijk aangelegd in waterdoorlatende materialen
- achtertuin: verhardingen worden tot een minimum beperkt en aangelegd in waterdoorlatende materialen. Enkel een terras van max. 20m² kan aangelegd worden in niet-waterdoorlatende materialen. Een tuinberging met een maximum oppervlak van 9m² is toegelaten.
- bewonersparkeren dient op eigen terrein te worden georganiseerd in de vorm van inpandige garage of niet-overdekt parkeren
- De zone aangeduid met 'groenscherm' moet verplicht aangelegd worden met een dubbele rij groenblijvende haag.
Beknopte bouwvoorschriften:
- bouwdiepte: maximaal zoals aangeduid op het verkavelingsplan, maximum bouwdiepte op verdieping is gelijk aan het gelijkvloers
- bouwbreedte: maximaal zoals aangeduid op het verkavelingsplan
- bouwhoogte: maximum 2 bouwlagen
- enkel plat dak is toegestaan, dakrandhoogte maximum 7m
- gevelmateriaal: enkel duurzame en esthetisch verantwoorde materialen zijn toegelaten
- voortuin: verhardingen worden tot een minimum beperkt en zoveel als mogelijk aangelegd in waterdoorlatende materialen
- achtertuin: verhardingen worden tot een minimum beperkt en aangelegd in waterdoorlatende materialen. Enkel een terras van max. 20m² kan aangelegd worden in niet-waterdoorlatende materialen. Een tuinberging met een maximum oppervlak van 9m² is toegelaten.
- bewonersparkeren dient op eigen terrein te worden georganiseerd in de vorm van inpandige garage of niet-overdekt parkeren
- De zone aangeduid met 'groenscherm' moet verplicht aangelegd worden met een dubbele rij groenblijvende haag.
Energie
Op de kaart

Downloads
Financieel
| Prijs |
|---|
Berekening kosten
Je aankoopkosten? Die heb je snel berekend via de knop hieronder.
Bijkomende info
Perceel
| Overstromingsgevoelig | Geen |
|---|---|
| P-score | A |
| Voorkeurrecht | Nee |
| Totale oppervlakte (m²) | 417 |
Vergunning
| Vergunning | Geen beschikbaar |
|---|---|
| Verkavelingsvergunning | Vergunning beschikbaar |
| Bouwovertreding | Geen |
| Bouwovertreding dagvaardiging | Geen |
Leer meer over vastgoed
23 March 2026
Op Spotto zoeken als een pro: 10 slimme tips
21 March 2026
Hoeveel kan ik lenen om een huis te kopen?
01 March 2026
Wanneer heb ik een bouwvergunning of omgevingsvergunning nodig?
17 February 2026