Ruim nieuwbouw casco woning met 3slk en tuin in Houthalen!
€ 249.000
Hortelstraat 2/2 - 3530 Houthalen-Helchteren
Een pand van ImmoFusion
Overzicht
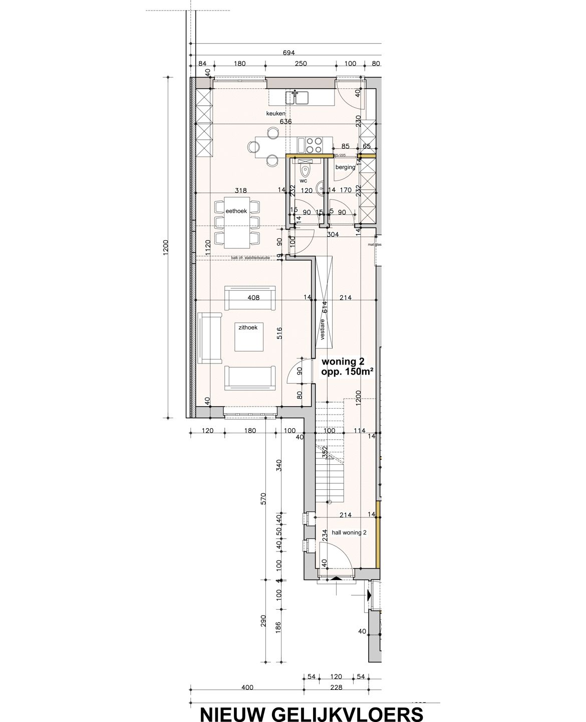
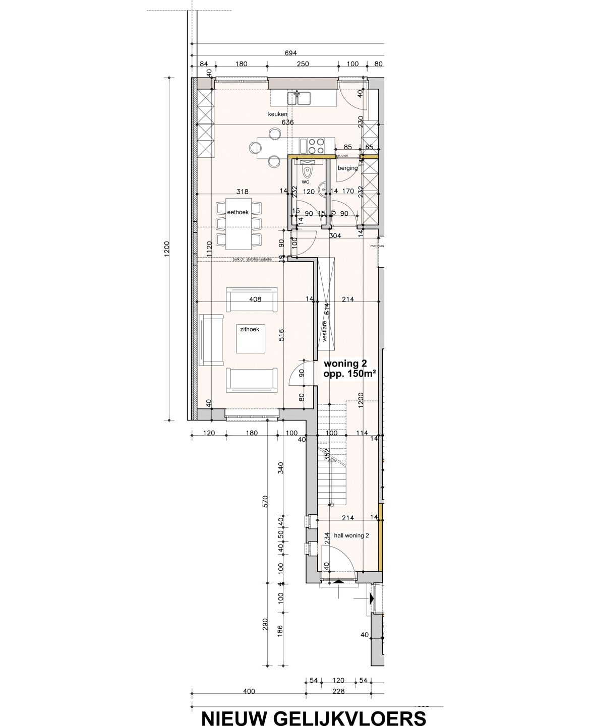
- 150 m² bewoonbaar
- 426 m² grond
- 3 Slaapkamer(s)
- 1 Badkamer(s)
- 2 Toilet(ten)
- 1 Tuin
Beschrijving
Bij ImmoFusion 7/7 “open huis” : klik op onze 3D-RONDLEIDING!
Ervaar vastgoed alsof je er zelf doorloopt en bekijk de virtuele tour!
Deze woning wordt verkocht onder 2% registratierechten!
Deze casco woning, gelegen aan Hortelstraat 2 in het prachtige Houthalen-Helchteren zoekt een nieuwe eigenaar. Dit is een uitstekende kans om uw droomhuis te creëren op een gunstige locatie.
Bij het betreden van de woning verwelkomt de inkomhal u met open armen. Direct aan uw rechterzijde bevindt zich het gastentoilet, handig gelegen voor bezoekers. Vervolgens leidt de inkomhal u naar de keuken, die aansluit op een praktische berging. De keuken zelf biedt een functionele ruimte, perfect voor het bereiden van heerlijke maaltijden voor familie en vrienden. Langs de keuken bevindt zich de woonkamer, een comfortabele en uitnodigende plek om te ontspannen.
Op de eerste verdieping leidt een nachthal u naar drie ruime slaapkamers en de badkamer. De slaapkamers bieden voldoende ruimte voor persoonlijke inrichting en creëren een gezellige sfeer.
Pluspunten:
- Nieuwbouw!
- E-Peil < E30 mogelijk!
- Gunstige ligging!
- Afwerking naar eigen smaak!
- Ramen en deuren in aluminium,
- Elektriciteit + sanitaire leidingen zijn aanwezig.
De verkoop geschiedt onder registratierechten van 2%!
Neem vandaag nog contact op het nummer 078 78 78 70 voor meer informatie en ontdek de mogelijkheden die deze woning te bieden heeft.
Nieuwbouw casco woning met 3 slaapkamers en tuin in Lillo!
Bij ImmoFusion 7/7 “open huis” : klik op onze 3D-RONDLEIDING!
Ervaar vastgoed alsof je er zelf doorloopt en bekijk de virtuele tour!
Deze woning wordt verkocht onder 2% registratierechten!
Deze casco woning, gelegen aan Hortelstraat 2 in het prachtige Houthalen-Helchteren zoekt een nieuwe eigenaar. Dit is een uitstekende kans om uw droomhuis te creëren op een gunstige locatie.
Bij het betreden van de woning verwelkomt de inkomhal u met open armen. Direct aan uw rechterzijde bevindt zich het gastentoilet, handig gelegen voor bezoekers. Vervolgens leidt de inkomhal u naar de keuken, die aansluit op een praktische berging. De keuken zelf biedt een functionele ruimte, perfect voor het bereiden van heerlijke maaltijden voor familie en vrienden. Langs de keuken bevindt zich de woonkamer, een comfortabele en uitnodigende plek om te ontspannen.
Op de eerste verdieping leidt een nachthal u naar drie ruime slaapkamers en de badkamer. De slaapkamers bieden voldoende ruimte voor persoonlijke inrichting en creëren een gezellige sfeer.
Pluspunten:
- Nieuwbouw!
- E-Peil < E30 mogelijk!
- Gunstige ligging!
- Afwerking naar eigen smaak!
- Ramen en deuren in aluminium,
- Elektriciteit + sanitaire leidingen zijn aanwezig.
De verkoop geschiedt onder registratierechten van 2%!
Neem vandaag nog contact op het nummer 078 78 78 70 voor meer informatie en ontdek de mogelijkheden die deze woning te bieden heeft.
Energie
![]() |
- EPC Certificaat: 72039-G-OMV_2019160908/EP17761/SV/A001/D01
- Energieverbruik: 30 kWh/m²/jaar
Financieel
| Prijs |
|---|
Berekening kosten
Je aankoopkosten? Die heb je snel berekent via de knop hieronder.
Bijkomende info
Gebouw
| Bouwjaar | 2023 |
|---|---|
| Staat | Nieuw |
| Bewoonbaar (m²) | 150 |
| Verdieping | 2 |
| Gevels | 2 |
| Badkamers | 1 |
| Slaapkamers | 3 |
| Verdiepingen | 2 |
| Parkeerplaatsen | 3 |
| Toiletten | 2 |
Faciliteiten
| Type vloer |
|---|
Perceel
| P-score | A |
|---|---|
| G-score | A |
| Voorkeurrecht | Nee |
| Totale oppervlakte (m²) | 426 |
| Tuin oppervlakte (m²) | 170 |
Vergunning
| Vergunning | Geen beschikbaar |
|---|---|
| Verkavelingsvergunning | Vergunning beschikbaar |
| Bouwovertreding | Geen |
| Bouwovertreding dagvaardiging | Geen |
Uitrusting
| Parking | Ja |
|---|---|
| Garage | Nee |
| Tuin | Ja |
| Terras | Ja |
| Lift | Nee |
| Gasaansluiting | Ja |
