TE KOOP : instapklaar duplex-appartement met ruim terras en autostaaplaats te Heusden-Zolder
Een pand van Immo Benny Simons
Overzicht
- 117.1 m² bewoonbaar
- 2 Slaapkamer(s)
- 1 Badkamer(s)
- 1 Toilet(ten)
Beschrijving
Welkom in residentie “Graaf de Theux”, een stijlvolle woonomgeving op de Suskaberg, op wandelafstand van het gezellige centrum van Heusden. Hier vindt u alles binnen handbereik: supermarkten, boetieks, horeca, apotheek, dokters en nog veel meer. Bovendien geniet u van een uitstekende bereikbaarheid dankzij de nabijheid van de E313 en E314 – beide op slechts 3 minuten rijden.
Dit lichtrijke en goed onderhouden duplex-appartement, gebouwd in 2008, bevindt zich op de eerste en tweede verdieping van het gebouw en is zowel via trap als lift bereikbaar vanuit de gemeenschappelijke inkomhal en overloop.
Troeven van dit appartement:
Indeling:
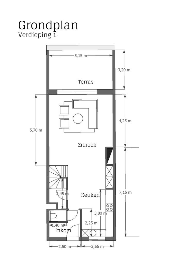
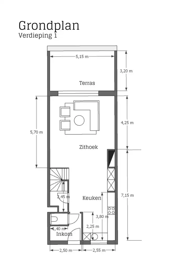
1e verdieping: inkomhal met gastentoilet, praktische berging, ruime leefruimte met veel lichtinval en een volledig uitgeruste open keuken.
Via de leefruimte heeft u toegang tot het grote terras – perfect voor een ontbijt in de zon of een gezellige avond met vrienden.
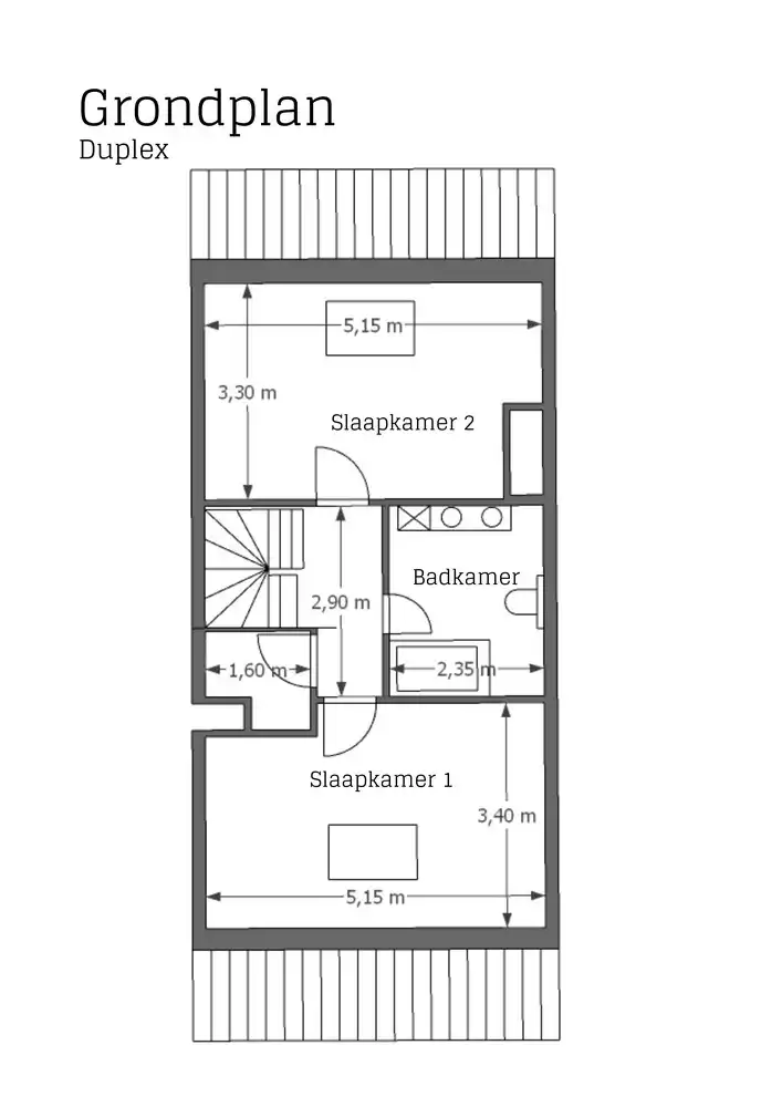
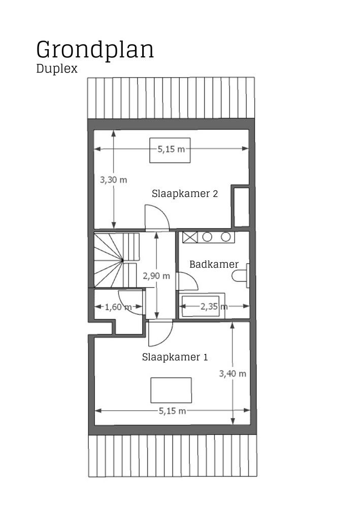
2e verdieping: twee grote slaapkamers, een comfortabele badkamer en een extra berging.
Het appartement wordt momenteel verhuurd aan € 755/maand + € 55/maand gemeenschappelijke kosten.
Op zoek naar een instapklaar appartement of een goede investering op een toplocatie in Heusden? Dan is dit pand absoluut een bezoek waard.
Heeft u interesse in deze duplex?
Contacteer dan Tom op 0468/09.81.97 of mail naar info@immobennysimons.be voor het maken van een vrijblijvende afspraak.
Is dit niet het appartement wat u zocht?
Schrijf u in op onze website zodat u vrijblijvend op de hoogte wordt gebracht van ons aanbod: https://immobennysimons.be/nl/hou-me-op-de-hoogte.
Dit lichtrijke en goed onderhouden duplex-appartement, gebouwd in 2008, bevindt zich op de eerste en tweede verdieping van het gebouw en is zowel via trap als lift bereikbaar vanuit de gemeenschappelijke inkomhal en overloop.
Troeven van dit appartement:
- 117 m² bewoonbare oppervlakte
- Zonnig terras van 19 m²
- Privatieve autostaanplaats in de kelder
- Energiezuinig (EPC-label B)
- Centrale verwarming op aardgas
- PVC-ramen met dubbele beglazing
Indeling:
1e verdieping: inkomhal met gastentoilet, praktische berging, ruime leefruimte met veel lichtinval en een volledig uitgeruste open keuken.
Via de leefruimte heeft u toegang tot het grote terras – perfect voor een ontbijt in de zon of een gezellige avond met vrienden.
2e verdieping: twee grote slaapkamers, een comfortabele badkamer en een extra berging.
Het appartement wordt momenteel verhuurd aan € 755/maand + € 55/maand gemeenschappelijke kosten.
Op zoek naar een instapklaar appartement of een goede investering op een toplocatie in Heusden? Dan is dit pand absoluut een bezoek waard.
Heeft u interesse in deze duplex?
Contacteer dan Tom op 0468/09.81.97 of mail naar info@immobennysimons.be voor het maken van een vrijblijvende afspraak.
Is dit niet het appartement wat u zocht?
Schrijf u in op onze website zodat u vrijblijvend op de hoogte wordt gebracht van ons aanbod: https://immobennysimons.be/nl/hou-me-op-de-hoogte.
Energie
![]() |
- EPC Certificaat: 20230927-0002996435-RES-1
- Energieverbruik: 157 kWh/m²/jaar
- E-peil: E0
- Verwarming: Gas
- Beglazing: Standaard dubbel
Op de kaart

Financieel
| Prijs |
|---|
Berekening kosten
Je aankoopkosten? Die heb je snel berekend via de knop hieronder.
Bijkomende info
Gebouw
| Bouwjaar | 2008 |
|---|---|
| Bewoonbaar (m²) | 117.1 |
| Verdieping | 1 |
| Badkamers | 1 |
| Slaapkamers | 2 |
| Verdiepingen | 0 |
| Garages | 0 |
| Parkeerplaatsen | 1 |
| Toiletten | 1 |
Faciliteiten
| Keuken uitrusting | Goed uitgerust |
|---|---|
| Beglazing | Standaard dubbel |
| Brandstof primaire verwarming | Gas |
| Septische tank | Nee |
Perceel
| Overstromingsgevoelig | Geen |
|---|---|
| P-score | B |
| G-score | A |
| Bebouwde oppervlakte (m²) | 0 |
| Oppervlakte terras (m²) | 19 |
Vergunning
| Verkavelingsvergunning | Geen beschikbaar |
|---|
Uitrusting
| Investeringspand | Nee |
|---|---|
| Parking | Ja |
| Garage | Nee |
| Opslagruimte | Ja |
| Terras | Ja |
| Lift | Ja |
| Rioolaansluiting | Nee |
| Gasaansluiting | Ja |
| Wateraansluiting | Ja |
| Elektriciteitsaansluiting | Ja |
| Internetaansluiting | Ja |
| Telefoonaansluiting | Nee |
| Zonnepanelen | Nee |
| Zonneboiler | Nee |
| Alarm | Nee |
| Videofoon | Nee |
| Grondwaterput | Nee |
Appartementsblok
| Lift | Ja |
|---|---|
| Intercom | Ja |
Een pand van
Immo Benny Simons
Verkoop zonder zorgen met immo Benny Simons
Sinds de opstart 2015 groeide het vastgoedkantoor van Benny Simons uit tot een begrip in Lummen en daarbuiten.
Inmiddels werken we al meer dan 4 jaar vanuit ons mooi kantoor in de Dorpsstraat te Lummen en openden we afgelopen jaar een 2de kantoor aan de Markt in Halen.
Kim is al 6 jaar een vaste waarde als vastgoedbediende.
Daarnaast staat zij verhuurders graag met raad en daad bij.
Sinds vorig jaar versterkt ook Mart het team.
Zij heeft ervaring in projectontwikkeling en staat mee in voor de verkoop van panden.
Graaf de Theuxlaan 1
Leer meer over vastgoed
01 March 2026
Wanneer heb ik een bouwvergunning of omgevingsvergunning nodig?
17 February 2026
Hoe breng ik een bod uit op een woning?
24 November 2025
Uitgezocht voor jouw gemeente: Hoeveel stijgt de waarde van je woning door een renovatie?
22 October 2025
