Nieuw
TE KOOP : instapklaar appartement op centrale ligging met 2 slaapkamers en 2 terrassen
€ 318.000
Een pand van Immo Benny Simons
Overzicht
- 101 m² bewoonbaar
- 2 Slaapkamer(s)
- 1 Badkamer(s)
- 1 Toilet(ten)
- 1 Garage(s)
Beschrijving
Dit ruime en instapklare appartement heeft een aangename indeling waarbij lichtinval centraal staat. De troeven van dit appartement zijn de centrale ligging, de goede staat van onderhoud en 2 terrassen waarvan het achterste terras 51 m² is met een leuke veranda en bergingen.
Bij het appartement horen een inpandige garage en een carport.
Het appartement is gelegen in het centrum van Zolder waar je alles vindt wat het leven gemakkelijk maakt. Scholen, kinderopvang, supermarkt, winkels, post, apotheek, dokters, enz… . In de nabijheid van de autosnelwegen. Dit is een schitterende opportuniteit met het oog op een investering of wanneer u centraal wilt wonen.
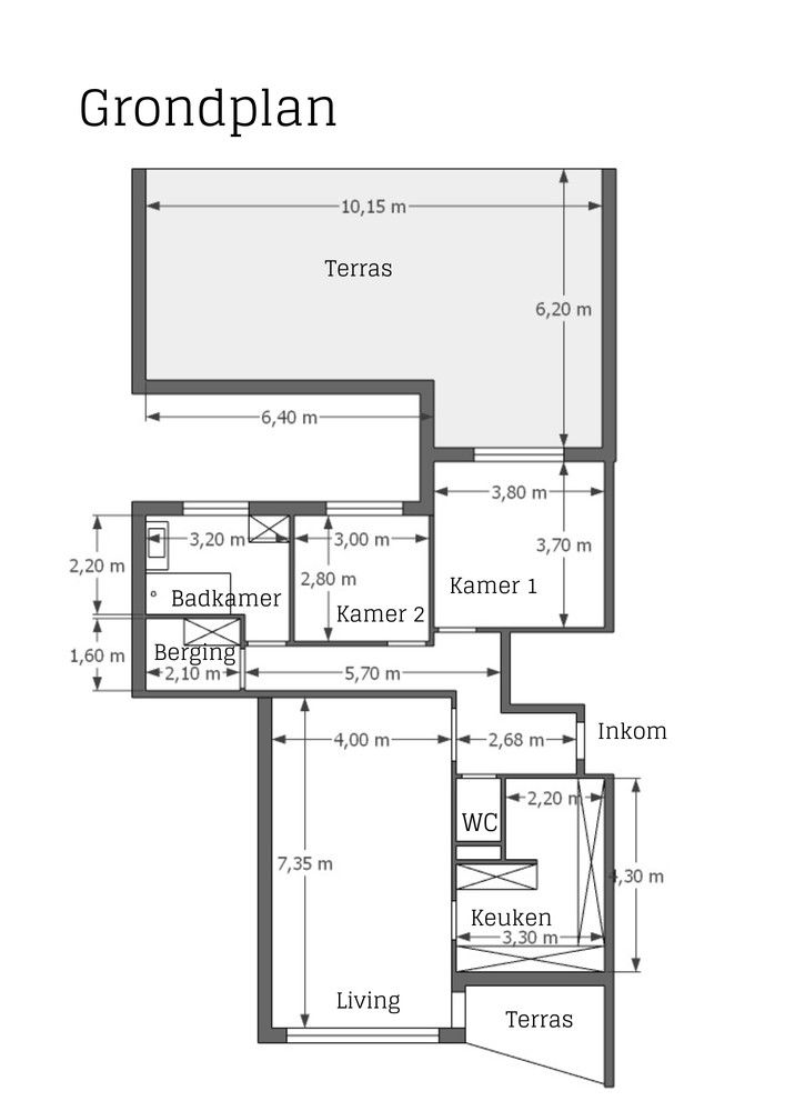
Het appartement gelegen op het 1ste verdiep heeft een oppervlakte van 101 m² en 2 terrassen van samen maar liefst 55 m².
Indeling:
Eerste verdieping: inkomhal, gastentoilet, ruime gezellige living met open keuken, zuid gericht terras, berging, badkamer, 2 slaapkamers en groot terras aan de achterzijde.
Gelijkvloers: berging, garage met aansluitend een overdekte autostaanplaats
Troeven van het appartement:
Dit appartement biedt de ideale combinatie van ruimte, comfort en een toplocatie.
Wenst u een bezoek of meer informatie?
Contacteer Tom op het nummer via 0468 / 09 81 97 of via mail info@immobennysimons.be.
Bij het appartement horen een inpandige garage en een carport.
Het appartement is gelegen in het centrum van Zolder waar je alles vindt wat het leven gemakkelijk maakt. Scholen, kinderopvang, supermarkt, winkels, post, apotheek, dokters, enz… . In de nabijheid van de autosnelwegen. Dit is een schitterende opportuniteit met het oog op een investering of wanneer u centraal wilt wonen.
Het appartement gelegen op het 1ste verdiep heeft een oppervlakte van 101 m² en 2 terrassen van samen maar liefst 55 m².
Indeling:
Eerste verdieping: inkomhal, gastentoilet, ruime gezellige living met open keuken, zuid gericht terras, berging, badkamer, 2 slaapkamers en groot terras aan de achterzijde.
Gelijkvloers: berging, garage met aansluitend een overdekte autostaanplaats
Troeven van het appartement:
- 2 terrassen
- Garage en autostaanplaats
- Centrale ligging in het centrum van Zolder
- Instapklaar, zelfs geen likje verf nodig
Dit appartement biedt de ideale combinatie van ruimte, comfort en een toplocatie.
Wenst u een bezoek of meer informatie?
Contacteer Tom op het nummer via 0468 / 09 81 97 of via mail info@immobennysimons.be.
Energie
![]() |
- EPC Certificaat: 20250603-0003615951-RES-1
- Energieverbruik: 214 kWh/m²/jaar
- E-peil: E0
- Verwarming: Elektriciteit
- Beglazing: Standaard dubbel
Op de kaart

Financieel
| Prijs |
|---|
Berekening kosten
Je aankoopkosten? Die heb je snel berekent via de knop hieronder.
Bijkomende info
Gebouw
| Bouwjaar | 1998 |
|---|---|
| Bewoonbaar (m²) | 101 |
| Verdieping | 1 |
| Badkamers | 1 |
| Slaapkamers | 2 |
| Verdiepingen | 0 |
| Garages | 1 |
| Parkeerplaatsen | 0 |
| Toiletten | 1 |
Faciliteiten
| Keuken uitrusting | Goed uitgerust |
|---|---|
| Beglazing | Standaard dubbel |
| Brandstof primaire verwarming | Elektriciteit |
| Septische tank | Nee |
Perceel
| Overstromingsgevoelig | Geen |
|---|---|
| P-score | C |
| G-score | C |
| Bebouwde oppervlakte (m²) | 0 |
| Oppervlakte terras (m²) | 55 |
| Oriëntatie tuin | Noordwest |
Vergunning
| Verkavelingsvergunning | Geen beschikbaar |
|---|
Uitrusting
| Investeringspand | Nee |
|---|---|
| Parking | Nee |
| Garage | Ja |
| Opslagruimte | Ja |
| Terras | Ja |
| Lift | Ja |
| Rioolaansluiting | Ja |
| Gasaansluiting | Nee |
| Wateraansluiting | Nee |
| Elektriciteitsaansluiting | Nee |
| Internetaansluiting | Ja |
| Telefoonaansluiting | Nee |
| Zonnepanelen | Nee |
| Zonneboiler | Nee |
| Alarm | Nee |
| Videofoon | Ja |
| Grondwaterput | Nee |
Appartementsblok
| Lift | Ja |
|---|---|
| Intercom | Nee |
Een pand van
Immo Benny Simons
Verkoop zonder zorgen met immo Benny Simons
Sinds de opstart 2015 groeide het vastgoedkantoor van Benny Simons uit tot een begrip in Lummen en daarbuiten.
Inmiddels werken we al meer dan 4 jaar vanuit ons mooi kantoor in de Dorpsstraat te Lummen en openden we afgelopen jaar een 2de kantoor aan de Markt in Halen.
Kim is al 6 jaar een vaste waarde als vastgoedbediende.
Daarnaast staat zij verhuurders graag met raad en daad bij.
Sinds vorig jaar versterkt ook Mart het team.
Zij heeft ervaring in projectontwikkeling en staat mee in voor de verkoop van panden.
Ringlaan 34/3
Leer meer over vastgoed
24 November 2025
Uitgezocht voor jouw gemeente: Hoeveel stijgt de waarde van je woning door een renovatie?
22 October 2025
Hoeveel kan ik lenen om een huis te kopen?
11 June 2025
Huis kopen met bouwovertreding? Dit moet je weten
11 May 2025
