Appartement
€ 292.500
Een pand van AnimoVastgoed
Overzicht
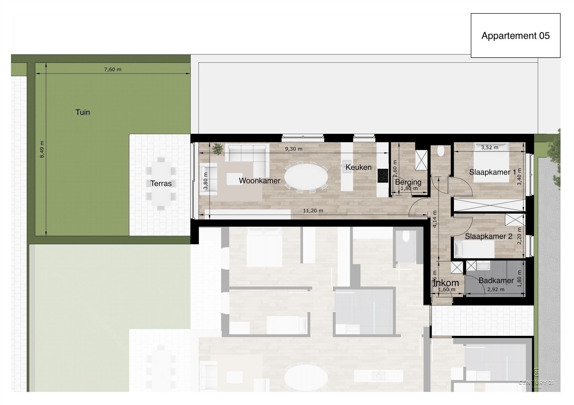
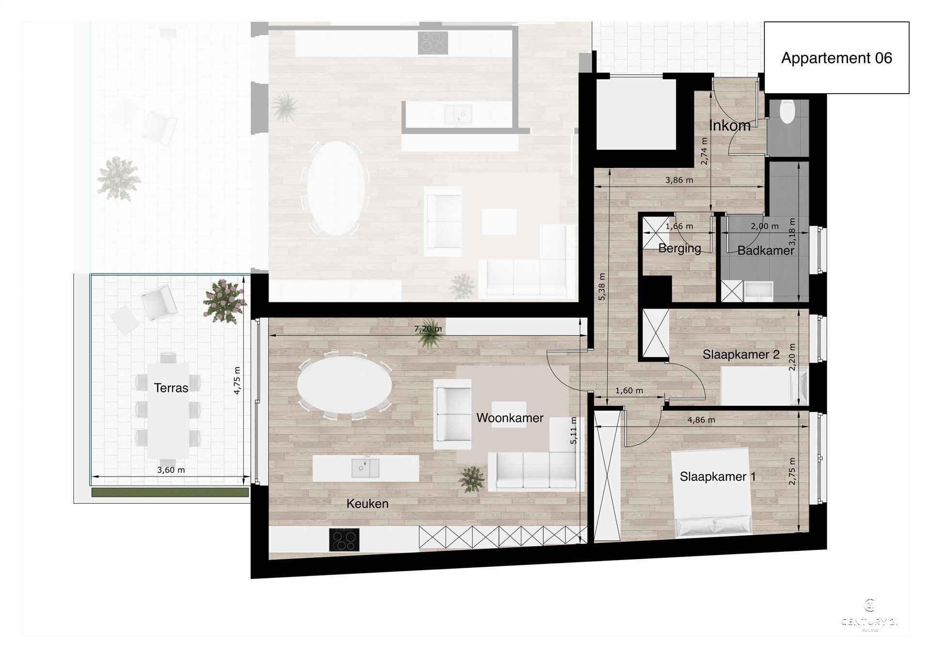
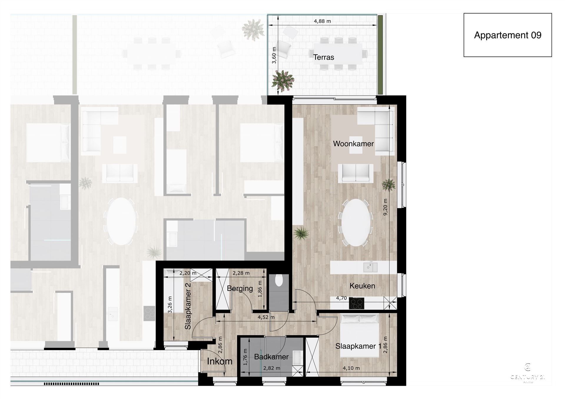
- 110 m² bewoonbaar
- 2 Slaapkamer(s)
- 1 Badkamer(s)
Beschrijving
NIEUW BIJ ANIMOVASTGOED!!! REEDS 45% VERKOCHT !
RESIDENTIE “Poorthoeve” staat voor stijlvol en luxueus wonen in het centrum van Heusden.
In de Poorthoevestraat, midden in het centrum van Heusden, presenteren wij U een exclusief nieuwbouwproject bestaande uit 11 stijlvolle appartementen.
Deze eigentijdse residentie zal bestaan uit 11 luxe appartementen (92.m² tot 110m²) met 2-3 slaapkamers.
Alle appartementen beschikken over mooie ruime terrassen en/of tuin. In de kelder bevinden zich de staanplaatsen met privatieve bergingen.
Op het gelijkvloers aan de achterzijde wordt tevens een gemeenschappelijke fietsenberging voorzien.
Op het gelijkvloers bevinden zich 5 appartementen die elk beschikken over een privéterras en een tuin, ideaal voor wie houdt van buitenruimte en rust. Op de eerste verdieping zijn er 4 appartementen met ruime terrassen waar u heerlijk kunt ontspannen. Allen met de ideale zuid/west oriëntatie.
De tweede verdieping biedt plaats aan 2 luxueuze penthouses, elk voorzien van een royaal terras met prachtig uitzicht.
De appartementen zijn ontworpen met oog voor modern comfort en hoogwaardige afwerking. U geniet van een lichtrijke woonkamer, een volledig uitgeruste keuken met moderne toestellen, en 2 tot 3 comfortabele slaapkamers. Elke badkamer is stijlvol ingericht, en u heeft de beschikking over een eigen berging en ondergrondse parkeerplaats.
REEDS 45% VERKOCHT (app nr 7/8/9/10/11)
Dit energiezuinige project, voorzien van duurzame materialen, biedt extra voorzieningen zoals een ondergrondse parkeergarage, een fietsenstalling en een lift voor vlotte toegang tot elke verdieping. Bovendien is de ligging ideaal: dichtbij winkels, restaurants en het openbaar vervoer ( bus en trein).
Zoekt u een nieuwe thuis of een investering? Dit project combineert luxe, comfort en een uitstekende ligging. Neem snel contact op voor meer informatie of een bezichtiging!
Energie
- E-peil: E0
- Beglazing: Standaard dubbel
Op de kaart

Financieel
| Prijs | |
|---|---|
| Kadastraal inkomen (niet geïndexeerd) | € 0 |
| Kadastraal inkomen (geïndexeerd) | € 0 |
Berekening kosten
Je aankoopkosten? Die heb je snel berekent via de knop hieronder.
Bijkomende info
Gebouw
| Bouwjaar | 2025 |
|---|---|
| Staat | Nieuw |
| Bouwcertificaat | Nee |
| Bewoonbaar (m²) | 110 |
| Verdieping | 2 |
| Badkamers | 1 |
| Slaapkamers | 2 |
| Verdiepingen | 0 |
| Garages | 0 |
| Parkeerplaatsen | 1 |
| Doucheruimtes | 1 |
| Toiletten | 0 |
Faciliteiten
| Keuken uitrusting | Luxueus uitgerust |
|---|---|
| Materiaal ramenomlijstingen | Aluminium |
| Beglazing | Standaard dubbel |
| Elektrisch keuringsattest | Ja |
Perceel
| Overstromingsgevoelig | Geen |
|---|---|
| P-score | A |
| G-score | A |
| Voorkeurrecht | Nee |
| Bebouwde oppervlakte (m²) | 0 |
| Tuin oppervlakte (m²) | 0 |
| Oppervlakte terras (m²) | 0 |
| Oriëntatie tuin | Zuidwest |
Vergunning
| Vergunning | Vergunning beschikbaar |
|---|---|
| Verkavelingsvergunning | Vergunning beschikbaar |
| Type gebied | Stedelijk |
Uitrusting
| Investeringspand | Nee |
|---|---|
| Geschikt voor praktijk | Nee |
| Parking | Ja |
| Garage | Nee |
| Thuiskantoor | Nee |
| Kelder | Ja |
| Zolder | Nee |
| Tuin | Nee |
| Terras | Ja |
| Lift | Ja |
| Rioolaansluiting | Ja |
| Gasaansluiting | Nee |
| Wateraansluiting | Ja |
| Elektriciteitsaansluiting | Ja |
| TV aansluiting | Nee |
| Internetaansluiting | Nee |
| Telefoonaansluiting | Nee |
Appartementsblok
| Lift | Ja |
|---|